東京都板橋区板橋1丁目(新板橋駅)の賃貸:物件詳細
交通 所在地 |
駅徒歩 |
賃料 管理費等 |
敷金/保証金 礼金 |
間取り 面積 |
物件種目 築年月 |
|
都営三田線/新板橋
東京都板橋区板橋1丁目
|
3分
|
7.9万円
7,000円
|
なし / なし
1ヶ月
|
1K
20.01m²
|
賃貸マンション
2008年2月(築17年9ヶ月)
|
ペット相談、分譲タイプ、常時ゴミ出し可能、角部屋、2面採光、24時間換気システム、外観タイル張り、IT重説対応物件、保証人不要
|
|
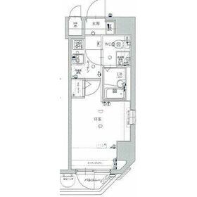
間取図
|
外観
|
<
その他の画像
>
|
| 交通 | 都営三田線 新板橋駅 徒歩3分 |
|---|
| その他の交通 | JR埼京線 板橋駅 徒歩5分 |
| 所在地 |
東京都板橋区板橋1丁目
|
| 物件種目 |
賃貸マンション |
| 賃料 |
7.9万円 |
管理費等 |
7,000円 |
| 敷金 / 保証金 |
なし / なし |
礼金 |
1ヶ月 |
| 敷引 |
- |
保証金償却 |
- |
| その他一時金 |
書類作成代:11,000円、24時間サポート:16,500円、室内抗菌代:16,500円、室内清掃費用:44,000円、鍵交換代等:33,000円~ |
保険等 |
要 2年 20,000円 |
| 維持費等 |
- |
| 間取り |
1K |
専有面積 |
20.01m² |
| 築年月 |
2008年2月(築17年9ヶ月)
|
階建 / 階 |
11階建 / 2階 |
| 建物構造 |
RC |
総戸数 |
- |
| 主要採光面 |
南西 |
駐車場 |
- |
| バイク置き場 |
- |
駐輪場 |
有 |
| 建物名・部屋番号 |
|
ペット |
相談 |
| アピールポイント |
収納はシューズボックス・クロゼットなどが備え付けられているので、衣類や日用品の収納に重宝します。セキュリティ面は、TVインターホン・オートロックなど充実しているので、防犯対策もばっちりです。共用部にはゴミ出し24時間OK・宅配ボックスなど様々な設備やサービスが揃っているので便利です。雨の日など外に干せない時でも部屋干し特有の臭いを防げる、浴室乾燥機を設置しております。お家を移られる日時は私たちにご相談してくださいね。ペットに対する愛情が感じられるペット飼育可能物件です。こちらは1Kの物件です。リーズナブルにお引っ越しをしたいなら、照明付き物件で快適に過ごしませんか。ごみ捨ての煩わしさを軽減するのが、敷地内ごみ置き場です。地上11階建てのマンションをご紹介。大量の洗濯物もバルコニーで解決。 |
| リフォーム履歴 |
- |
| リノベーション履歴 |
- |
| 備考 |
賃貸保証等:加入要(初回保証料:総賃料の50% 月額:総賃料の1%)
管理形態/管理員の勤務形態:-/巡回
バルコニー:2.13m²
IT重説対応物件、管理人巡回
インターネット上で他にも気になるお部屋がございましたら、当社でまとめてご案内可能です。ご不明な点やご質問などございましたら、お気軽に何でもお問い合わせ下さいませ。
収納はシューズボックス・クロゼットなど豊富なので、衣類や履き物の整理がしやすく便利です。浴室乾燥機付きの物件なので、浴室乾燥機をつけて湿気を除去すればカビの発生を予防できます。セキュリティ面は、TVインターホン・オートロックなど充実しているので、防犯対策もばっちりです。共用部には宅配ボックス・ゴミ出し24時間OKなどが揃っております。この物件はバルコニー付きで、用途に合わせて使用できおすすめです。BS、CSはチャンネルが多いので飽きないのが魅力です。駅まで3分と、駅近でアクセスも良好な物件です。共用設備の充実している、楽しく生活できるマンションです。2駅利用できる場所にあり、アクセスが便利です。
|
| エネルギー消費性能 |
- |
| 断熱性能 |
- |
| 目安光熱費 |
- |
| バス・トイレ |
バス・トイレ別、浴室乾燥機、洗面台、シャワー、温水洗浄便座、トイレ |
| キッチン |
システムキッチン、2口コンロ、ガスコンロ可 |
| セキュリティー |
モニター付オートロック、オートロック、モニター付インターホン、ディンプルキー、ダブルロックドア、防犯カメラ |
| 収納 |
全居室収納、収納スペース、クローゼット、シューズボックス |
| 設備・サービス |
室内洗濯機置場、洗濯機置場、都市ガス給湯、給湯、フローリング、都市ガス、エアコン、冷房、人感センサー付照明、照明器具 |
| TV・通信 |
インターネット対応、インターネット使用料無料、光ファイバー、ケーブルTV、CS、BS端子 |
| その他 |
宅配BOX、バルコニー、駐輪場、エレベーター |
| 契約期間 |
2年 |
現況 |
居住中 |
| 条件等 |
- |
入居可能時期 |
相談 |
| 更新料 |
新賃料 1.5ヶ月 |
物件番号 |
1150776716 |
| 情報公開日 |
2025年10月19日 |
次回更新予定日 |
2025年11月2日 |
| ケータイ用バーコード |
- スマートフォンでこの物件を見る
- スマートフォンからもこの物件をご覧になれます。
|
※「-」と表示されている項目については、情報提供会社にご確認ください。
| 周辺施設 |
池袋本町三丁目第2児童遊園 |
| 距離 |
842m |
写真を見る |
| 周辺施設 |
ライフ板橋店 |
| 距離 |
196m |
写真を見る |
| 周辺施設 |
ファミリーマート 新板橋駅前店 |
| 距離 |
263m |
写真を見る |
| 周辺施設 |
ドラッグストア マツモトキヨシ 下板橋店 |
| 距離 |
568m |
写真を見る |
| 周辺施設 |
滝野川六郵便局 |
| 距離 |
614m |
写真を見る |
ここから簡単にお問い合わせをすることができます。
(SSLでの暗号化での送信を希望されるお客さまは
こちら
よりお問い合わせください)
お問い合わせを行う前に
「個人情報の取り扱いについて」を必ずお読みください。
「個人情報の取り扱いについて」に同意いただいた場合は「上記にご同意の上 確認画面へ進む」のボタンをクリックしてください。
個人情報の取り扱いについて
皆さまが送付された個人情報はアットホーム(株)のサーバを経由し、お問い合わせ先の不動産会社にメールまたはFAXにて転送されるためアットホーム(株)にも保管されます。アットホーム(株)で保管された個人情報の取り扱いについては、【こちら】をご覧ください。
また、本画面でご記入いただいた個人情報は、お問い合わせ先の不動産会社でも保管します。 お問い合わせ先の不動産会社が保管する個人情報の取り扱いについては、不動産会社に直接お問い合わせください。
東京都知事免許(1)第111656号 |
|---|
- 交通:
- JR山手線/池袋駅
- 東京都豊島区東池袋1丁目42-14 28山京ビル7階8号室
- TEL:
- 03-6820-4263
- 所属団体:
- (公社)全日本不動産協会会員(公社)首都圏不動産公正取引協議会加盟
取引態様:仲介  - 00278775
|
- スマートフォンで
この不動産会社を見る

|
- 提携サイト等より掲載されている物件情報につきましては、不動産会社詳細情報にリンクされていないものがあります。
- 物件に関するお問合せは、物件詳細ページの「情報提供会社」に表示されている不動産会社へ直接お願いいたします。
- 間取図は、現況を優先させていただきます。
- 映像は物件の一部を撮影したものです。物件の契約にあたっての最終判断はご自身の判断に基づいて行ってください。
- 仲介手数料について

アットホームは物件情報の適正化に努めております。
内容に誤りがある場合にはこちらへご連絡ください。