不動産 賃貸 マンション等の住宅情報:埼玉住まい情報


東京都墨田区立川3丁目(菊川駅)の賃貸:物件詳細

  • 物件詳細
  • 情報の見方
  • 印刷用画面
交通
所在地
駅徒歩 賃料
管理費等
敷金/保証金
礼金
間取り
面積
物件種目
築年月

都営新宿線/菊川 新着

東京都墨田区立川3丁目

4分

24万円

なし

1ヶ月 / なし

1ヶ月

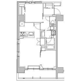
2LDK

55.43m²

賃貸マンション

2019年9月(築6年2ヶ月)

おすすめPOINT分譲タイプ

おすすめコメント

陽の光の移ろいを感じられる2面採光、更に寝ている間も換気が続く24時間換気システム採用なので、生活臭や湿気がこもりにくくなります。またアクセスのいい菊川駅徒歩4分立地の物件で、その上受け取りに心配なし

間取図

間取図

外観

外観

<
その他の画像
  • リビング
  • リビング
  • キッチン
  • キッチン
  • キッチン
  • 室内
  • 室内
  • 玄関
  • 玄関
  • 設備
  • バス/シャワー
  • トイレ
  • 共有部分
  • 共有部分
  • 共有部分
  • 設備
  • 洗面
>
    • とりあえず保存
    • お問い合わせ
    交通

    都営新宿線 菊川駅 徒歩4分

    その他の交通

    都営大江戸線 森下駅 徒歩10分

    東京メトロ半蔵門線 住吉駅 徒歩14分

    所在地 東京都墨田区立川3丁目
    物件種目 賃貸マンション
    賃料 24万円 管理費等 なし
    敷金 / 保証金 1ヶ月 / なし 礼金 1ヶ月
    敷引 保証金償却
    その他一時金 抗菌処理費:22,000円、保証会社登録事務手数料:3,300円、鍵交換代等:55,000円~ 保険等 要 2年 21,000円
    維持費等
    間取り 2LDK(洋5、洋4.2、LDK14) 専有面積 55.43m²
    築年月 2019年9月(築6年2ヶ月) 階建 / 階 11階建 / 6階
    建物構造 RC 総戸数
    主要採光面 駐車場
    バイク置き場 駐輪場
    建物名・部屋番号 603 ペット
    リフォーム履歴
    リノベーション履歴
    備考
    賃貸保証等:加入要(エポスカード 初回40%~60%、月次1.5%、更新10,000円/年)
    管理形態/管理員の勤務形態:-/-
    非喫煙者限定
    ICチップの認証データで解施錠できる非接触型ICカードキー採用、更に365日異変を監視する24時間セキュリティー採用で、万一の対応が素早い点も魅力です。
    陽の光の移ろいを感じられる2面採光、更に寝ている間も換気が続く24時間換気システム採用なので、生活臭や湿気がこもりにくくなります。またアクセスのいい菊川駅徒歩4分立地の物件で、その上受け取りに心配なしの宅配BOX付なので、ネット通販大好き派にはお勧めです。ちなみに転居後のネット接続がスムーズに行えるインターネット使用料無料の物件です。自然に団らんが生まれる2LDK。是非その目でお確かめください。
    エネルギー消費性能
    断熱性能
    目安光熱費
    バス・トイレ バス・トイレ別、浴室乾燥機、洗面所独立、洗面所、洗面台、トイレ
    キッチン カウンターキッチン
    セキュリティー オートロック
    収納 ウォークインクローゼット、収納スペース、シューズインクローゼット、クローゼット
    設備・サービス 室内洗濯機置場、洗濯機置場、都市ガス給湯、給湯、フローリング、都市ガス
    TV・通信 インターネット対応、光ファイバー
    その他 バルコニー、エレベーター
    契約期間 2年 現況 居住中
    条件等 入居可能時期 2025年12月上旬予定
    更新料 新賃料 1ヶ月 物件番号 1150905316
    情報公開日 2025年10月20日 次回更新予定日 2025年11月3日
    ケータイ用バーコード

    QRコード

    スマートフォンでこの物件を見る
    スマートフォンからもこの物件をご覧になれます。
    ※「-」と表示されている項目については、情報提供会社にご確認ください。

    クイックお問い合わせ

    ここから簡単にお問い合わせをすることができます。
    (SSLでの暗号化での送信を希望されるお客さまは こちら よりお問い合わせください)

    お問い合わせ内容(必須)
    お名前(必須) 姓  名 
    メールアドレス(必須)
    ※携帯電話のメールアドレスをご入力される方はこちらをご確認ください
    電話番号(必須)
    - -

    ※入力いただいた電話番号へSMSまたは音声でパスワードをご連絡します。

    携帯電話の番号をご入力の方へ

    携帯電話の番号をご入力の方へ
    確認画面にて送信ボタンをクリックするとSMSが携帯電話に届きます。
    そのSMSに記載のパスワード(認証番号)を入力し、お問い合わせを完了してください。
    尚、SMSの送信者番号は 0005 202 760 となります。
    これはアットホームの固定番号です。

    備考欄 希望条件、物件案内希望日、質問などがございましたらご記入ください。
    お問い合わせを行う前に「個人情報の取り扱いについて」を必ずお読みください。
    「個人情報の取り扱いについて」に同意いただいた場合は「上記にご同意の上 確認画面へ進む」のボタンをクリックしてください。

    個人情報の取り扱いについて

    皆さまが送付された個人情報はアットホーム(株)のサーバを経由し、お問い合わせ先の不動産会社にメールまたはFAXにて転送されるためアットホーム(株)にも保管されます。アットホーム(株)で保管された個人情報の取り扱いについては、【こちら】をご覧ください。
    また、本画面でご記入いただいた個人情報は、お問い合わせ先の不動産会社でも保管します。 お問い合わせ先の不動産会社が保管する個人情報の取り扱いについては、不動産会社に直接お問い合わせください。

    情報提供会社

    情報提供会社

    (株)あなぶきレジデンシャル流通

    国土交通大臣免許(1)第10543号

    交通:
    都営浅草線/大門駅 徒歩2分
    東京都港区芝大門2丁目2-1 ACN芝大門ビルディング4階
    TEL:
    03-6695-0040
    FAX:
    03-6696-0156
    所属団体:
    (一社)不動産流通経営協会会員
    (公社)東京都宅地建物取引業協会会員
    (公社)首都圏不動産公正取引協議会加盟

    取引態様:代理

    • 会社情報
    • 00276434
    スマートフォンで
    この不動産会社を見る
    QRコード
    • とりあえず保存
    • お問い合わせ
    • 提携サイト等より掲載されている物件情報につきましては、不動産会社詳細情報にリンクされていないものがあります。
    • 物件に関するお問合せは、物件詳細ページの「情報提供会社」に表示されている不動産会社へ直接お願いいたします。
    • 間取図は、現況を優先させていただきます。
    • 映像は物件の一部を撮影したものです。物件の契約にあたっての最終判断はご自身の判断に基づいて行ってください。
    • 仲介手数料について仲介手数料

    アットホームは物件情報の適正化に努めております。 内容に誤りがある場合にはこちらへご連絡ください。

    【埼玉住まい情報】では、日本全国の物件から賃貸マンションや賃貸アパート・賃貸一戸建て等の賃貸住宅情報、新築マンション・分譲マンションや中古マンション等の売買マンション情報、新築一戸建てや中古一戸建てなどの戸建住宅、 土地など、総合的な不動産住宅情報検索サービスを提供致します。
    【埼玉住まい情報】から、選りすぐりの不動産物件を探してみましょう。

    【免責事項】
    このコーナーの運営はアットホーム株式会社(https://www.athome.co.jp/)が行っています。
    このコーナーに掲載している物件情報は、「アットホーム不動産情報ネットワーク」に加盟する不動産会社等(情報提供元)から提供されています。信頼性の高い情報提供が行えるよう、最大限の努力をしておりますが、その内容を保証するものではありません。 利用者のみなさまと各情報提供元との取引に起因する損害および情報が掲載されたことに起因する損害等については、株式会社イーシティ埼玉、およびアットホームは一切責任を負いません。
    各物件情報の内容や画像等はすべて現況を優先させていただきます。
    お取引等(お取引の準備、資金調達等を含みます)の際には、内容や契約条件等について、各情報提供元より十分な説明を受け、ご自身でご確認の上、判断してください。
    このコーナーへの物件情報のご掲載、その他不動産業務ソリューション等についての不動産会社様のお問合せはこちらからお願いいたします。

    物件画像: