神奈川県横浜市磯子区氷取沢町(能見台駅)の賃貸:物件詳細
交通 所在地 |
駅徒歩 |
賃料 管理費等 |
敷金/保証金 礼金 |
間取り 面積 |
物件種目 築年月 |
|
京急本線/能見台
神奈川県横浜市磯子区氷取沢町
|
28分
|
16万円
なし
|
1ヶ月 / なし
1ヶ月
|
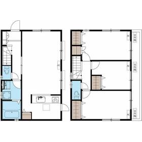
3LDK
89.43m²
|
賃貸一戸建て
2016年2月(築10年2ヶ月)
|
駐車場2台分、24時間換気システム
|
|
間取図
|
外観
|
<
その他の画像
>
|
| 交通 | 京急本線 能見台駅 徒歩28分 |
|---|
| その他の交通 | JR根岸線 洋光台駅 【バス】 19分 氷取沢 停歩6分 |
| 所在地 |
神奈川県横浜市磯子区氷取沢町
|
| 物件種目 |
賃貸一戸建て |
| 賃料 |
16万円 |
管理費等 |
なし |
| 敷金 / 保証金 |
1ヶ月 / なし |
礼金 |
1ヶ月 |
| 敷引 |
- |
保証金償却 |
- |
| その他一時金 |
鍵交換代:33,000円、室内消毒代:16,500円、リブリクラブ会員費(2年間):7,700円 |
保険等 |
要 2年 24,000円 |
| 維持費等 |
- |
| 間取り |
3LDK |
専有面積 |
89.43m² |
| 築年月 |
2016年2月(築10年2ヶ月)
|
階建 / 階 |
2階建 |
| 建物構造 |
木造 |
総戸数 |
- |
| 主要採光面 |
南東 |
駐車場 |
有 無料 |
| バイク置き場 |
無 |
駐輪場 |
有 |
| 建物名・部屋番号 |
グリーンビラB棟 |
ペット |
-
|
| リフォーム履歴 |
- |
| リノベーション履歴 |
- |
| 備考 |
賃貸保証等:加入要(保証人代行会社名:株式会社スマートクレジット(プランS)基本料:月額支払合計の50% 、月額料:月額支払合計の1.1%、口振手数料:330円/月)
管理形態/管理員の勤務形態:-/-
[退去時費用 クリーニング費用:124740円※故意・過失等別途実費] 駐輪場(空有) 〇2/23解約・退去済み・リフォーム中〇申込時に身分証(運転免許証・マイナンバーカード)現住所確認書類のご提出必要 ※マイナンバーカードの裏面は受付不可〇学生契約不可 親族名義での契約(支払口座を含む)になります〇法人契約の場合は礼金 NO:112128538
|
| エネルギー消費性能 |
- |
| 断熱性能 |
- |
| 目安光熱費 |
- |
| バス・トイレ |
バス・トイレ別、浴室乾燥機、追焚機能、洗面所独立、洗面所、洗面台、シャワー、温水洗浄便座、トイレ |
| キッチン |
システムキッチン、3口以上コンロ |
| セキュリティー |
モニター付インターホン、シャッター雨戸 |
| 収納 |
収納スペース、シューズボックス |
| 設備・サービス |
室内洗濯機置場、フローリング、都市ガス、エアコン、照明器具 |
| TV・通信 |
ケーブルTV |
| その他 |
専用庭、庭、駐輪場 |
| 契約期間 |
2年 |
現況 |
空家 |
| 条件等 |
- |
入居可能時期 |
即時 |
| 更新料 |
新賃料 1ヶ月 |
物件番号 |
1150963024 |
| 情報公開日 |
2026年3月4日 |
次回更新予定日 |
2026年3月26日 |
| ケータイ用バーコード |
- スマートフォンでこの物件を見る
- スマートフォンからもこの物件をご覧になれます。
|
※「-」と表示されている項目については、情報提供会社にご確認ください。
| 周辺施設 |
ハックドラッグ京急能見台店 |
| 距離 |
1812m |
写真を見る |
| 周辺施設 |
京急ストア |
| 距離 |
1965m |
写真を見る |
| 周辺施設 |
ファミリーマート |
| 距離 |
2967m |
写真を見る |
| 周辺施設 |
ファミリーマート |
| 距離 |
2360m |
写真を見る |
| 周辺施設 |
(株)マツモトキヨシ/ドラックストアシティ能見台店 |
| 距離 |
2360m |
写真を見る |
| 周辺施設 |
デニーズ港南台店 |
| 距離 |
2665m |
写真を見る |
| 周辺施設 |
バーミヤン釜利谷店 |
| 距離 |
2069m |
写真を見る |
ここから簡単にお問い合わせをすることができます。
(SSLでの暗号化での送信を希望されるお客さまは
こちら
よりお問い合わせください)
お問い合わせを行う前に
「個人情報の取り扱いについて」を必ずお読みください。
「個人情報の取り扱いについて」に同意いただいた場合は「上記にご同意の上 確認画面へ進む」のボタンをクリックしてください。
個人情報の取り扱いについて
皆さまが送付された個人情報はアットホーム(株)のサーバを経由し、お問い合わせ先の不動産会社にメールまたはFAXにて転送されるためアットホーム(株)にも保管されます。アットホーム(株)で保管された個人情報の取り扱いについては、【こちら】をご覧ください。
また、本画面でご記入いただいた個人情報は、お問い合わせ先の不動産会社でも保管します。 お問い合わせ先の不動産会社が保管する個人情報の取り扱いについては、不動産会社に直接お問い合わせください。
神奈川県知事免許(10)第13668号 |
|---|
- 交通:
- JR根岸線/関内駅
- 神奈川県横浜市中区尾上町3丁目46 木村ビル4階
- TEL:
- 045-226-3040
- FAX:
- 045-212-0625
- 所属団体:
- (公社)神奈川県宅地建物取引業協会会員(公社)首都圏不動産公正取引協議会加盟
取引態様:仲介  - 99021171
|
- スマートフォンで
この不動産会社を見る

|
- 提携サイト等より掲載されている物件情報につきましては、不動産会社詳細情報にリンクされていないものがあります。
- 物件に関するお問合せは、物件詳細ページの「情報提供会社」に表示されている不動産会社へ直接お願いいたします。
- 間取図は、現況を優先させていただきます。
- 映像は物件の一部を撮影したものです。物件の契約にあたっての最終判断はご自身の判断に基づいて行ってください。
- 仲介手数料について

アットホームは物件情報の適正化に努めております。
内容に誤りがある場合にはこちらへご連絡ください。