愛知県豊田市土橋町8丁目(土橋駅)の賃貸:物件詳細
交通 所在地 |
駅徒歩 |
賃料 管理費等 |
敷金/保証金 礼金 |
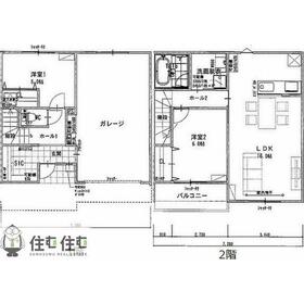
間取り 面積 |
物件種目 築年月 |
|
名鉄三河線/土橋
愛知県豊田市土橋町8丁目
|
3分
|
17万円
3,000円
|
なし / 1ヶ月
1ヶ月
|
2LDK
97.72m²
|
賃貸タウンハウス
2024年1月(築2年3ヶ月)
|
デザイナーズ、駐車場2台分、角部屋、最上階、二人入居可、保証人不要
|
|
間取図
|
外観
|
<
その他の画像
>
|
| 交通 | 名鉄三河線 土橋駅 徒歩3分 |
|---|
| その他の交通 | 愛知環状鉄道 三河豊田駅 徒歩31分 [バス利用可] バス 14分 土橋駅 停歩7分 名鉄三河線 竹村駅 徒歩35分 |
| 所在地 |
愛知県豊田市土橋町8丁目
|
| 物件種目 |
賃貸タウンハウス |
| 賃料 |
17万円 |
管理費等 |
3,000円 |
| 敷金 / 保証金 |
なし / 1ヶ月 |
礼金 |
1ヶ月 |
| 敷引 |
- |
保証金償却 |
解約時100% |
| その他一時金 |
なし、鍵交換代等:22,000円~ |
保険等 |
要 |
| 維持費等 |
利用料 月額:2,090円/月 |
クレジットカード決済 |
初期費用可 |
| 間取り |
2LDK(LDK16、洋6、洋5) |
専有面積 |
97.72m² |
| 築年月 |
2024年1月(築2年3ヶ月)
|
階建 / 階 |
2階建 |
| 建物構造 |
木造 |
総戸数 |
- |
| 主要採光面 |
|
駐車場 |
有 無料 |
| バイク置き場 |
- |
駐輪場 |
- |
| 建物名・部屋番号 |
リュクラージュ土橋 B-1 |
ペット |
-
|
| アピールポイント |
不在時でも安心の、宅配ボックス付き物件です。室内設備は洗面化粧台・浴室乾燥機などが揃っており、とても充実しています。直接会わずにインターホン越しに来訪者を確認できるので、トラブル回避にも防犯対策にも繋がります。多くの方にご好評をいただいている、清潔感のある賃貸物件です。こちらは車2台まで駐車可能な物件です。追い焚き機能は、入浴時間のバラバラなご家族にとって役立つおすすめ設備になっています。初期費用を抑えられる敷金不要のタウンハウスです。2台分の駐車スペースの空きあり。バルコニー付きの物件で、用途に合わせて使用できます。キレイで扱いやすく、お料理がはかどるシステムキッチンがあります(*^^*) |
| リフォーム履歴 |
- |
| リノベーション履歴 |
- |
| 備考 |
賃貸保証等:加入要(全保連 初回50%、月額利用料2090円(継続保証委託料+火災保険料+口座引落手数料)
管理形態/管理員の勤務形態:-/-
店舗前お客様駐車場完備。ご見学希望の建物前集合可。駅まで送迎可。オンライン見学可。遅い時間帯のご対応ご見学可。遠慮なくご相談ください。
共用部には宅配ボックスを備え付けているため、対面で荷物を受け取る必要がありません。通話ボタンを押せば相手の声が聞けるので、会話したうえで直接会うかを決められるインターホンがあります。室内設備は洗面化粧台・浴室乾燥機など充実した設備を備え付けています。こちらの物件は令和8年4月に入居可能予定です。システムキッチンがあり、お料理と後片付けが手早くできます。こちらの物件では初期費用をカードでお支払いいただけます。清掃しやすくニーズの高い全居室フローリングのお住まいです。調理を同時に進めることで忙しい朝でも短い時間で一気に料理ができる、3口コンロの物件です。広さも97.72㎡ありゆったりとした空間があります。この物件は内観も綺麗で設備も充実した、令和6年築です(^o^)
|
| エネルギー消費性能 |
- |
| 断熱性能 |
- |
| 目安光熱費 |
- |
| バス・トイレ |
バス・トイレ別、浴室乾燥機、追焚機能、シャワー付洗面化粧台、洗面台、シャワー、温水洗浄便座、トイレ |
| キッチン |
カウンターキッチン、システムキッチン、3口以上コンロ、ガスコンロ可 |
| セキュリティー |
モニター付インターホン |
| 収納 |
- |
| 設備・サービス |
室内洗濯機置場、洗濯機置場、都市ガス給湯、給湯、全居室フローリング、フローリング、都市ガス |
| TV・通信 |
インターネット対応 |
| その他 |
宅配BOX、バルコニー |
| 契約期間 |
2年 |
現況 |
居住中 |
| 条件等 |
- |
入居可能時期 |
2026年4月中旬予定 |
| 更新料 |
- |
物件番号 |
1151168122 |
| 情報公開日 |
2026年2月23日 |
次回更新予定日 |
2026年4月3日 |
| ケータイ用バーコード |
- スマートフォンでこの物件を見る
- スマートフォンからもこの物件をご覧になれます。
|
※「-」と表示されている項目については、情報提供会社にご確認ください。
| 周辺施設 |
パソコンドック24 豊田店 |
| 距離 |
181m |
写真を見る |
| 周辺施設 |
JAあいち豊田 土橋支店 |
| 距離 |
204m |
写真を見る |
| 周辺施設 |
豊田土橋郵便局 |
| 距離 |
202m |
写真を見る |
| 周辺施設 |
ファミリーマート 豊田土橋駅前店 |
| 距離 |
518m |
写真を見る |
| 周辺施設 |
石川接骨院 土橋 |
| 距離 |
409m |
写真を見る |
| 周辺施設 |
つづき歯科医院 |
| 距離 |
386m |
写真を見る |
| 周辺施設 |
株式会社ツクイ 豊田土橋営業所 |
| 距離 |
600m |
写真を見る |
| 周辺施設 |
セブンイレブン 豊田市鴻ノ巣町店 |
| 距離 |
340m |
写真を見る |
ここから簡単にお問い合わせをすることができます。
(SSLでの暗号化での送信を希望されるお客さまは
こちら
よりお問い合わせください)
お問い合わせを行う前に
「個人情報の取り扱いについて」を必ずお読みください。
「個人情報の取り扱いについて」に同意いただいた場合は「上記にご同意の上 確認画面へ進む」のボタンをクリックしてください。
個人情報の取り扱いについて
皆さまが送付された個人情報はアットホーム(株)のサーバを経由し、お問い合わせ先の不動産会社にメールまたはFAXにて転送されるためアットホーム(株)にも保管されます。アットホーム(株)で保管された個人情報の取り扱いについては、【こちら】をご覧ください。
また、本画面でご記入いただいた個人情報は、お問い合わせ先の不動産会社でも保管します。 お問い合わせ先の不動産会社が保管する個人情報の取り扱いについては、不動産会社に直接お問い合わせください。
愛知県知事免許(1)第25937号 |
|---|
- 交通:
- 愛知環状鉄道/新豊田駅 徒歩29分 【バス】1分 八迫山 停歩1分
- 愛知県豊田市小川町1丁目3-3 コーポ杉浦
- TEL:
- 0565-41-5350
- FAX:
- 0565-41-5351
- 所属団体:
- (公社)愛知県宅地建物取引業協会会員東海不動産公正取引協議会加盟
取引態様:仲介  - 40412049
|
- スマートフォンで
この不動産会社を見る

|
- 提携サイト等より掲載されている物件情報につきましては、不動産会社詳細情報にリンクされていないものがあります。
- 物件に関するお問合せは、物件詳細ページの「情報提供会社」に表示されている不動産会社へ直接お願いいたします。
- 間取図は、現況を優先させていただきます。
- 映像は物件の一部を撮影したものです。物件の契約にあたっての最終判断はご自身の判断に基づいて行ってください。
- 仲介手数料について

アットホームは物件情報の適正化に努めております。
内容に誤りがある場合にはこちらへご連絡ください。