東京都新宿区市谷砂土原町2丁目(市ケ谷駅)の賃貸:物件詳細
交通 所在地 |
駅徒歩 |
賃料 管理費等 |
敷金/保証金 礼金 |
間取り 面積 |
物件種目 築年月 |
|
東京メトロ有楽町線/市ケ谷
東京都新宿区市谷砂土原町2丁目
|
5分
|
16.4万円
10,000円
|
なし / なし
なし
|
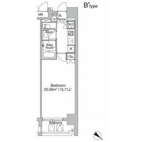
1K
35.19m²
|
賃貸マンション
2007年9月(築18年2ヶ月)
|
ペット相談、常時ゴミ出し可能、24時間換気システム、IT重説対応物件、保証人不要
|
|
間取図
|
外観
落ち着いた雰囲気の外観です
|
<
その他の画像
>
|
| 交通 | 東京メトロ有楽町線 市ケ谷駅 徒歩5分 |
|---|
| その他の交通 | 都営大江戸線 牛込神楽坂駅 徒歩8分 東京メトロ東西線 神楽坂駅 徒歩14分 |
| 所在地 |
東京都新宿区市谷砂土原町2丁目
|
| 物件種目 |
賃貸マンション |
| 賃料 |
16.4万円 |
管理費等 |
10,000円 |
| 敷金 / 保証金 |
なし / なし |
礼金 |
なし |
| 敷引 |
- |
保証金償却 |
- |
| その他一時金 |
入居者限定会員サービス(2年):11,000円、鍵交換代等:22,000円~ |
保険等 |
要 2年 21,500円 |
| 維持費等 |
- |
| 間取り |
1K(洋12.7) |
専有面積 |
35.19m² |
| 築年月 |
2007年9月(築18年2ヶ月)
|
階建 / 階 |
14階建 / 12階 |
| 建物構造 |
RC |
総戸数 |
- |
| 主要採光面 |
北東 |
駐車場 |
近有 40,000円/月 |
| バイク置き場 |
- |
駐輪場 |
有 |
| 建物名・部屋番号 |
レジディア市ヶ谷Ⅱ |
ペット |
相談 |
| アピールポイント |
セキュリティ面は、オートロック・TVインターホンなどを備え付けているので安心して暮らせます。共用部にはゴミ出し24時間OK・宅配ボックスなど様々な設備やサービスが揃っているので便利です。収納はクロゼット・全居室収納などが備え付けられているので、衣類や日用品の収納に重宝します。室内設備は洗面化粧台・浴室乾燥機など豊富に揃っており、過ごしやすいお部屋になっております。犯罪防止効果が期待できる防犯カメラ付き物件です。多くの方にご好評をいただいている、清潔感のある賃貸物件です。BS、CSに加入して、映画やアニメ見放題の生活を送りませんか。たくさん料理を作る時でも同時に進められるため、料理の効率を上げられる2口コンロがあります。ペットと一緒にお引っ越ししたい方にもうれしい、ペット相談可の物件です。システムキッチンは収納性に優れているため、キッチン回り物であふれるのを防げます。暑い日も寒い日も使えるエアコンが付いており、空調管理に便利。 |
| リフォーム履歴 |
- |
| リノベーション履歴 |
- |
| 備考 |
賃貸保証等:加入要(初回 賃料等総額の50%~)
管理形態/管理員の勤務形態:-/-
IT重説対応物件
収納はクロゼット・全居室収納など豊富なので、広々と空間を利用することも可能です。室内設備は洗面化粧台・浴室乾燥機などが揃っており、とても充実しています。セキュリティ面は、オートロック・TVインターホンなど充実しているので、防犯対策もばっちりです。共用部にはゴミ出し24時間OK・宅配ボックスなど様々な設備やサービスが揃っているので便利です。犯罪を未然に防止して安全に暮らせるように、共用部に防犯カメラが付いています。ニーズが高いからこその令和7年12月の入居期日指定。こちらは1Kの物件です。専有面積も35.19平米あるので魅力的。駐輪場付きの物件です。インターネット付きの物件です。2口コンロが付いているので複数の料理を作る時でも同時にサッと料理出来ます。
|
| エネルギー消費性能 |
- |
| 断熱性能 |
- |
| 目安光熱費 |
- |
| バス・トイレ |
バス・トイレ別、浴室乾燥機、オートバス、追焚機能、洗面所独立、洗面所、温水洗浄便座、トイレ |
| キッチン |
システムキッチン、独立型キッチン、2口コンロ、ガスコンロ可、グリル |
| セキュリティー |
モニター付オートロック、オートロック、モニター付インターホン、ディンプルキー、ダブルロックドア、防犯カメラ |
| 収納 |
全居室収納、収納スペース、クローゼット |
| 設備・サービス |
室内洗濯機置場、洗濯機置場、全居室フローリング、フローリング、都市ガス、エアコン、冷房 |
| TV・通信 |
インターネット対応、CATVインターネット、ケーブルTV、CS、BS端子 |
| その他 |
宅配BOX、バルコニー、駐輪場、エレベーター |
| 契約期間 |
2年 |
現況 |
居住中 |
| 条件等 |
- |
入居可能時期 |
2025年12月上旬予定 |
| 更新料 |
新賃料 1ヶ月 |
物件番号 |
1151410816 |
| 情報公開日 |
2025年10月20日 |
次回更新予定日 |
2025年11月3日 |
| ケータイ用バーコード |
- スマートフォンでこの物件を見る
- スマートフォンからもこの物件をご覧になれます。
|
※「-」と表示されている項目については、情報提供会社にご確認ください。
| 周辺施設 |
中国酒家味仙楼 |
| 距離 |
1674m |
写真を見る |
| 周辺施設 |
めん屋桔梗 |
| 距離 |
1256m |
写真を見る |
| 周辺施設 |
ドトールコーヒーショップ 曙橋店 |
| 距離 |
1729m |
写真を見る |
| 周辺施設 |
食品スーパーマーケット三徳 牛込神楽坂店 |
| 距離 |
418m |
写真を見る |
| 周辺施設 |
セブンイレブン 九段北4丁目店 |
| 距離 |
979m |
写真を見る |
ここから簡単にお問い合わせをすることができます。
(SSLでの暗号化での送信を希望されるお客さまは
こちら
よりお問い合わせください)
お問い合わせを行う前に
「個人情報の取り扱いについて」を必ずお読みください。
「個人情報の取り扱いについて」に同意いただいた場合は「上記にご同意の上 確認画面へ進む」のボタンをクリックしてください。
個人情報の取り扱いについて
皆さまが送付された個人情報はアットホーム(株)のサーバを経由し、お問い合わせ先の不動産会社にメールまたはFAXにて転送されるためアットホーム(株)にも保管されます。アットホーム(株)で保管された個人情報の取り扱いについては、【こちら】をご覧ください。
また、本画面でご記入いただいた個人情報は、お問い合わせ先の不動産会社でも保管します。 お問い合わせ先の不動産会社が保管する個人情報の取り扱いについては、不動産会社に直接お問い合わせください。
東京都知事免許(1)第107337号 |
|---|
- 交通:
- JR山手線/新宿駅 徒歩1分
- 東京都新宿区西新宿1丁目3-3 品川ステーションビル新宿5F
- TEL:
- 03-6258-0867
- 所属団体:
- (公社)東京都宅地建物取引業協会会員(公社)首都圏不動産公正取引協議会加盟
取引態様:仲介  - 00278932
|
- スマートフォンで
この不動産会社を見る

|
- 提携サイト等より掲載されている物件情報につきましては、不動産会社詳細情報にリンクされていないものがあります。
- 物件に関するお問合せは、物件詳細ページの「情報提供会社」に表示されている不動産会社へ直接お願いいたします。
- 間取図は、現況を優先させていただきます。
- 映像は物件の一部を撮影したものです。物件の契約にあたっての最終判断はご自身の判断に基づいて行ってください。
- 仲介手数料について

アットホームは物件情報の適正化に努めております。
内容に誤りがある場合にはこちらへご連絡ください。