千葉県市川市田尻4丁目(原木中山駅)の賃貸:物件詳細
交通 所在地 |
駅徒歩 |
賃料 管理費等 |
敷金/保証金 礼金 |
間取り 面積 |
物件種目 築年月 |
|
東京メトロ東西線/原木中山
千葉県市川市田尻4丁目
|
9分
|
7.8万円
10,000円
|
なし / なし
なし
|
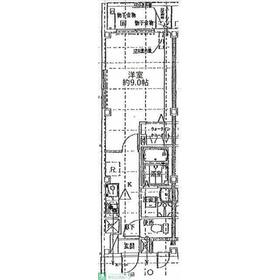
1K
30.13m²
|
賃貸マンション
2011年7月(築14年4ヶ月)
|
ペット相談、角部屋、高齢者相談、24時間換気システム、IT重説対応物件、保証人不要
|
|
間取図
|
外観
|
<
その他の画像
>
|
| 交通 | 東京メトロ東西線 原木中山駅 徒歩9分 |
|---|
| その他の交通 | JR総武線 下総中山駅 徒歩20分 京成本線 京成中山駅 徒歩24分 |
| 所在地 |
千葉県市川市田尻4丁目
|
| 物件種目 |
賃貸マンション |
| 賃料 |
7.8万円 |
管理費等 |
10,000円 |
| 敷金 / 保証金 |
なし / なし |
礼金 |
なし |
| 敷引 |
- |
保証金償却 |
- |
| その他一時金 |
契約事務手数料:11,000円、外国籍サポートプラン:10,800円、消臭抗菌サービス:11,000円、エアコン内部洗浄(1台あたり):16,500円、鍵交換代等:27,500円~ |
保険等 |
要 |
| 維持費等 |
- |
クレジットカード決済 |
初期費用可 |
| 間取り |
1K(洋室9.0帖) |
専有面積 |
30.13m² |
| 築年月 |
2011年7月(築14年4ヶ月)
|
階建 / 階 |
4階建 / 1階 |
| 建物構造 |
鉄骨造 |
総戸数 |
- |
| 主要採光面 |
東 |
駐車場 |
- |
| バイク置き場 |
無 |
駐輪場 |
- |
| 建物名・部屋番号 |
GENOVIA原木中山 117 |
ペット |
小型犬可・ 大型犬可・ 猫可 |
| アピールポイント |
創業45周年、首都圏で直営130店舗以上を展開するタウングループへお部屋探しをお任せ下さい♪グループ会社に引越会社もございますのでお部屋探しからお引越し会社の選定までワンストップで対応させて頂きます♪ |
| リフォーム履歴 |
- |
| リノベーション履歴 |
- |
| 備考 |
賃貸保証等:加入要(ルームバンクインシュア 一番手「RBI」初回保証料:40%(ペット飼育時60%) 外国籍:100%+外国籍サポート年間10,800円 (※審査により変更有・要確認) 外国籍家賃:クレカQR決済)
管理形態/管理員の勤務形態:-/-
IT重説対応物件
当社では、初期費用のお支払いにクレジット決済を導入しております!首都圏直営130店舗以上を展開する独自のネットワークで、様々な条件でのお部屋探しに対応させて頂きます。契約時ご来店頂かなくても契約可能!当社はIT重説対応店舗です。一緒に楽しくお部屋探しをしましょう!
|
| エネルギー消費性能 |
- |
| 断熱性能 |
- |
| 目安光熱費 |
- |
| バス・トイレ |
バス・トイレ別、浴室乾燥機、洗面所独立、洗面所、洗面台、シャワー、温水洗浄便座、トイレ |
| キッチン |
システムキッチン、独立型キッチン、2口コンロ、ガスコンロ可 |
| セキュリティー |
モニター付オートロック、オートロック、モニター付インターホン、ダブルロックドア、防犯カメラ |
| 収納 |
全居室収納、ウォークインクローゼット、収納スペース、クローゼット、シューズボックス |
| 設備・サービス |
全居室エアコン、室内洗濯機置場、プロパンガス給湯、給湯、全居室フローリング、フローリング、プロパンガス、エアコン、暖房、冷房 |
| TV・通信 |
インターネット対応 |
| その他 |
バルコニー |
| 契約期間 |
2年 |
現況 |
居住中 |
| 条件等 |
- |
入居可能時期 |
2025年11月下旬予定 |
| 更新料 |
新賃料 1ヶ月 |
物件番号 |
1151412315 |
| 情報公開日 |
2025年10月25日 |
次回更新予定日 |
2025年10月26日 |
| ケータイ用バーコード |
- スマートフォンでこの物件を見る
- スマートフォンからもこの物件をご覧になれます。
|
※「-」と表示されている項目については、情報提供会社にご確認ください。
| 周辺施設 |
ミニストップ |
| 距離 |
334m |
写真を見る |
| 周辺施設 |
ケーズデンキ |
| 距離 |
417m |
写真を見る |
ここから簡単にお問い合わせをすることができます。
(SSLでの暗号化での送信を希望されるお客さまは
こちら
よりお問い合わせください)
お問い合わせを行う前に
「個人情報の取り扱いについて」を必ずお読みください。
「個人情報の取り扱いについて」に同意いただいた場合は「上記にご同意の上 確認画面へ進む」のボタンをクリックしてください。
個人情報の取り扱いについて
皆さまが送付された個人情報はアットホーム(株)のサーバを経由し、お問い合わせ先の不動産会社にメールまたはFAXにて転送されるためアットホーム(株)にも保管されます。アットホーム(株)で保管された個人情報の取り扱いについては、【こちら】をご覧ください。
また、本画面でご記入いただいた個人情報は、お問い合わせ先の不動産会社でも保管します。 お問い合わせ先の不動産会社が保管する個人情報の取り扱いについては、不動産会社に直接お問い合わせください。
国土交通大臣免許(1)第9927号 |
|---|
- 交通:
- JR総武線/市川駅 徒歩1分
- 千葉県市川市市川1丁目8-13 市川ファイブビル2F
- TEL:
- 047-326-1811
- FAX:
- 047-326-1812
- 所属団体:
- 所属団体未加入会員
取引態様:仲介  - 00271129
|
- スマートフォンで
この不動産会社を見る

|
- 提携サイト等より掲載されている物件情報につきましては、不動産会社詳細情報にリンクされていないものがあります。
- 物件に関するお問合せは、物件詳細ページの「情報提供会社」に表示されている不動産会社へ直接お願いいたします。
- 間取図は、現況を優先させていただきます。
- 映像は物件の一部を撮影したものです。物件の契約にあたっての最終判断はご自身の判断に基づいて行ってください。
- 仲介手数料について

アットホームは物件情報の適正化に努めております。
内容に誤りがある場合にはこちらへご連絡ください。