大阪府大阪市浪速区稲荷1丁目(JR難波駅)の賃貸:物件詳細
交通 所在地 |
駅徒歩 |
賃料 管理費等 |
敷金/保証金 礼金 |
間取り 面積 |
物件種目 築年月 |
JR関西本線/JR難波
大阪府大阪市浪速区稲荷1丁目
|
3分
|
6万円
8,000円
|
なし / なし
なし
|
ワンルーム
26.40m²
|
賃貸マンション
1967年8月(築58年3ヶ月)
|
常時ゴミ出し可能、高齢者相談、2面採光、24時間換気システム、閑静な住宅街、外観タイル張り、IT重説対応物件
|
間取図
|
外観
|
<
その他の画像
>
|
|
交通 | JR関西本線 JR難波駅 徒歩3分 |
---|
その他の交通 | 地下鉄千日前線 桜川駅 徒歩10分 JR大阪環状線 芦原橋駅 徒歩10分 |
所在地 |
大阪府大阪市浪速区稲荷1丁目
|
物件種目 |
賃貸マンション |
賃料 |
6万円 |
管理費等 |
8,000円 |
敷金 / 保証金 |
なし / なし |
礼金 |
なし |
敷引 |
- |
保証金償却 |
- |
その他一時金 |
室内清掃費用:55,000円、鍵交換代等:22,000円~ |
保険等 |
要 2年 18,000円 |
維持費等 |
水道基本料:1,100円/月、電気基本料:1,100円/月 |
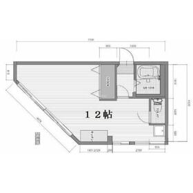
間取り |
ワンルーム(洋12) |
専有面積 |
26.40m² |
築年月 |
1967年8月(築58年3ヶ月)
|
階建 / 階 |
11階建 / 7階 |
建物構造 |
RC |
総戸数 |
- |
主要採光面 |
南東 |
駐車場 |
近有 25,000円/月 |
バイク置き場 |
- |
駐輪場 |
有 |
建物名・部屋番号 |
|
ペット |
-
|
アピールポイント |
室内設備はエアコン・システムキッチン・BS・CSなどが揃っており、とても充実しています。共用部には宅配ボックス・ゴミ出し24時間OKなどが揃っております。セキュリティ面は、オートロック・TVインターホンなどを設置しているので安全面でも優れております。防犯対策もバッチリなマンションタイプの物件です。物件は通風良好な空間です。お早めのご案内が可能な物件となっておりますので、内見のご予約お待ちしております。お仕事でパソコンを使う方に好評の光回線導入の物件です。バルコニー付きの物件で、用途に合わせて利用できおすすめです。不審者対策として心強い防犯カメラが備えられています。駐輪場付きの物件です。 |
リフォーム履歴 |
- |
リノベーション履歴 |
- |
備考 |
賃貸保証等:加入要(50%~)
管理形態/管理員の勤務形態:-/巡回
IT重説対応物件、管理人巡回
物件のお問い合わせはSumoSumoまで♪♪
共用部にはゴミ出し24時間OK・宅配ボックスなどが揃っております。セキュリティ面は、オートロック・TVインターホンなど充実しているので、防犯対策もばっちりです。室内設備はネット使用料不要・システムキッチン・BS・CSなど大変充実しております。あると使い勝手がよく利便性が高いのが敷地内ごみ置き場です。現在空家の物件です。新しい日々を送るにふさわしい、きれいな室内です。11階建ての物件を是非ご覧ください。こちらの物件は閑静な住宅地にあります。快適な生活を送ることのできる、エアコン付きの物件です。近くの駐車場を利用すると暗い夜道を歩かなくても大丈夫です。
|
エネルギー消費性能 |
- |
断熱性能 |
- |
目安光熱費 |
- |
バス・トイレ |
バス・トイレ別、シャワー、温水洗浄便座、トイレ |
キッチン |
システムキッチン、2口コンロ、ガスコンロ可 |
セキュリティー |
モニター付オートロック、オートロック、モニター付インターホン、防犯カメラ |
収納 |
収納スペース、クローゼット |
設備・サービス |
室内洗濯機置場、洗濯機置場、都市ガス給湯、給湯、フローリング、都市ガス、エアコン、冷房 |
TV・通信 |
インターネット対応、インターネット使用料無料、光ファイバー、CATVインターネット、ケーブルTV、CS、BS端子 |
その他 |
宅配BOX、駐輪場、エレベーター |
契約期間 |
2年 |
現況 |
空家 |
条件等 |
- |
入居可能時期 |
即時 |
更新料 |
- |
物件番号 |
1151488416 |
情報公開日 |
2025年10月20日 |
次回更新予定日 |
2025年11月5日 |
ケータイ用バーコード |
- スマートフォンでこの物件を見る
- スマートフォンからもこの物件をご覧になれます。
|
※「-」と表示されている項目については、情報提供会社にご確認ください。
周辺施設 |
ファミリーマート 小浦桜川一丁目店 |
距離 |
160m |
写真を見る |
周辺施設 |
KOHYO(コーヨー) 難波湊町店 |
距離 |
427m |
写真を見る |
周辺施設 |
浪速稲荷郵便局 |
距離 |
346m |
写真を見る |
周辺施設 |
セブンイレブン 大阪難波サンケイビル店 |
距離 |
296m |
写真を見る |
周辺施設 |
株式会社コクミン オーキャット店 |
距離 |
388m |
写真を見る |
周辺施設 |
ライフ塩草店 |
距離 |
438m |
写真を見る |
ここから簡単にお問い合わせをすることができます。
(SSLでの暗号化での送信を希望されるお客さまは
こちら
よりお問い合わせください)
お問い合わせを行う前に
「個人情報の取り扱いについて」を必ずお読みください。
「個人情報の取り扱いについて」に同意いただいた場合は「上記にご同意の上 確認画面へ進む」のボタンをクリックしてください。
個人情報の取り扱いについて
皆さまが送付された個人情報はアットホーム(株)のサーバを経由し、お問い合わせ先の不動産会社にメールまたはFAXにて転送されるためアットホーム(株)にも保管されます。アットホーム(株)で保管された個人情報の取り扱いについては、【こちら】をご覧ください。
また、本画面でご記入いただいた個人情報は、お問い合わせ先の不動産会社でも保管します。 お問い合わせ先の不動産会社が保管する個人情報の取り扱いについては、不動産会社に直接お問い合わせください。
大阪府知事免許(1)第62697号 |
---|
- 交通:
- 地下鉄御堂筋線/心斎橋駅 徒歩3分
- 大阪府大阪市中央区南船場3丁目3-23 中和船場ビル102号
- TEL:
- 06-4400-6315
- FAX:
- 06-6258-3116
- 所属団体:
- (公社)全日本不動産協会会員(公社)近畿地区不動産公正取引協議会加盟
取引態様:仲介  - 50105934
|
- スマートフォンで
この不動産会社を見る

|
- 提携サイト等より掲載されている物件情報につきましては、不動産会社詳細情報にリンクされていないものがあります。
- 物件に関するお問合せは、物件詳細ページの「情報提供会社」に表示されている不動産会社へ直接お願いいたします。
- 間取図は、現況を優先させていただきます。
- 映像は物件の一部を撮影したものです。物件の契約にあたっての最終判断はご自身の判断に基づいて行ってください。
- 仲介手数料について

アットホームは物件情報の適正化に努めております。
内容に誤りがある場合にはこちらへご連絡ください。