大阪府大阪市浪速区大国1丁目(大国町駅)の賃貸:物件詳細
交通 所在地 |
駅徒歩 |
賃料 管理費等 |
敷金/保証金 礼金 |
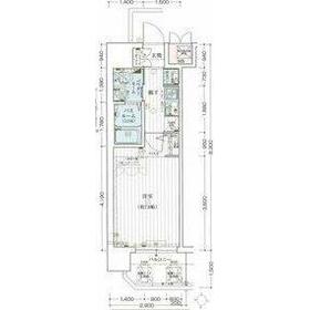
間取り 面積 |
物件種目 築年月 |
地下鉄御堂筋線/大国町
大阪府大阪市浪速区大国1丁目
|
4分
|
6.2万円
10,000円
|
なし / なし
なし
|
1K
24.53m²
|
賃貸マンション
2014年8月(築11年3ヶ月)
|
ペット相談、デザイナーズ、分譲タイプ、角部屋、二人入居可、24時間換気システム、IT重説対応物件
|
間取図
|
外観
|
<
その他の画像
>
|
交通 | 地下鉄御堂筋線 大国町駅 徒歩4分 |
---|
その他の交通 | JR大阪環状線 今宮駅 徒歩5分 南海高野線 今宮戎駅 徒歩9分 |
所在地 |
大阪府大阪市浪速区大国1丁目
|
物件種目 |
賃貸マンション |
賃料 |
6.2万円 |
管理費等 |
10,000円 |
敷金 / 保証金 |
なし / なし |
礼金 |
なし |
敷引 |
- |
保証金償却 |
- |
その他一時金 |
契約事務手数料 契約時:11,000円、室内清掃費用:38,500円、鍵交換代等:44,000円~ |
保険等 |
要 2年 17,000円 |
維持費等 |
24時間駆けつけサービス:990円/月 |
クレジットカード決済 |
初期費用可 |
間取り |
1K |
専有面積 |
24.53m² |
築年月 |
2014年8月(築11年3ヶ月)
|
階建 / 階 |
地上11階地下9階建 / 9階 |
建物構造 |
RC |
総戸数 |
- |
主要採光面 |
西 |
駐車場 |
近有 25,000円/月 |
バイク置き場 |
有 |
駐輪場 |
有 |
建物名・部屋番号 |
エステムコート難波サウスプレイスⅤエレージュ |
ペット |
猫可 |
アピールポイント |
当社にてご契約の際は初期費用分割払い可能です!お客様のご都合に合わせて、無理なく新生活をスタートできるようサポートいたします♪お気軽にお問い合わせください! |
リフォーム履歴 |
- |
リノベーション履歴 |
- |
備考 |
賃貸保証等:加入要(保証料30% 月額2,200円 年10,000円)
管理形態/管理員の勤務形態:-/-
IT重説対応物件
お届け指定時間に間に合わないとき、直接受け取れないかわりに荷物が届けられる宅配ボックスがあれば急いで帰る必要はありません。セキュリティ面は、TVインターホン・オートロックなどを設置しているので安全面でも優れております。室内設備は浴室乾燥機・洗面化粧台など大変充実しております。収納はシューズボックス・クロゼットなどが備え付けられているので、衣類や日用品の収納に重宝します。角部屋は片面しか隣接しないためお互いの生活音が響きにくく、騒音トラブル防止につながります。駅から徒歩4分というアクセス良好な駅近物件はいかがですか。照明付きなので、住んだその日から明るい暮らしを送れます。毎日のごみ捨てが楽になる敷地内ごみ置き場。駐車スペースプライス月25000円。エレベーター付き物件です。駐車場まで300mのマンション、いかがでしょうか。
|
エネルギー消費性能 |
- |
断熱性能 |
- |
目安光熱費 |
- |
バス・トイレ |
バス・トイレ別、浴室乾燥機、シャワー付洗面化粧台、洗面台、シャワー、温水洗浄便座、トイレ |
キッチン |
システムキッチン、2口コンロ、ガスコンロ可 |
セキュリティー |
モニター付オートロック、オートロック、モニター付インターホン、防犯カメラ |
収納 |
収納スペース、クローゼット、シューズボックス |
設備・サービス |
室内洗濯機置場、洗濯機置場、全居室フローリング、フローリング、都市ガス、エアコン、照明器具 |
TV・通信 |
インターネット対応、CS、BS端子 |
その他 |
宅配BOX、バイク置き場、バルコニー、駐輪場、エレベーター |
契約期間 |
2年 |
現況 |
空家 |
条件等 |
- |
入居可能時期 |
2025年11月上旬予定 |
更新料 |
- |
物件番号 |
1151648316 |
情報公開日 |
2025年10月21日 |
次回更新予定日 |
2025年11月4日 |
ケータイ用バーコード |
- スマートフォンでこの物件を見る
- スマートフォンからもこの物件をご覧になれます。
|
※「-」と表示されている項目については、情報提供会社にご確認ください。
周辺施設 |
スーパー玉出 大国町店 |
距離 |
435m |
写真を見る |
周辺施設 |
ライフ大国町店 |
距離 |
538m |
写真を見る |
周辺施設 |
MEGAドン・キホーテ新世界店 |
距離 |
1120m |
写真を見る |
周辺施設 |
セブンイレブン 大阪大国町駅南店 |
距離 |
34m |
写真を見る |
周辺施設 |
コーナン JR今宮駅前店 |
距離 |
450m |
写真を見る |
周辺施設 |
ダイソー 新今宮店 |
距離 |
1109m |
写真を見る |
周辺施設 |
ニトリ 西成店 |
距離 |
544m |
写真を見る |
周辺施設 |
ヤマダデンキ なんば |
距離 |
1200m |
写真を見る |
ここから簡単にお問い合わせをすることができます。
(SSLでの暗号化での送信を希望されるお客さまは
こちら
よりお問い合わせください)
お問い合わせを行う前に
「個人情報の取り扱いについて」を必ずお読みください。
「個人情報の取り扱いについて」に同意いただいた場合は「上記にご同意の上 確認画面へ進む」のボタンをクリックしてください。
個人情報の取り扱いについて
皆さまが送付された個人情報はアットホーム(株)のサーバを経由し、お問い合わせ先の不動産会社にメールまたはFAXにて転送されるためアットホーム(株)にも保管されます。アットホーム(株)で保管された個人情報の取り扱いについては、【こちら】をご覧ください。
また、本画面でご記入いただいた個人情報は、お問い合わせ先の不動産会社でも保管します。 お問い合わせ先の不動産会社が保管する個人情報の取り扱いについては、不動産会社に直接お問い合わせください。
国土交通大臣免許(8)第4288号 |
---|
- 交通:
- 南海高野線/難波駅 徒歩3分
- 大阪府大阪市中央区日本橋2丁目7-12
- TEL:
- 06-6644-5573
- FAX:
- 06-6644-4173
- 所属団体:
- (一社)大阪府宅地建物取引業協会会員不動産公正取引協議会加盟
取引態様:仲介  - 50019585
|
- スマートフォンで
この不動産会社を見る

|
- 提携サイト等より掲載されている物件情報につきましては、不動産会社詳細情報にリンクされていないものがあります。
- 物件に関するお問合せは、物件詳細ページの「情報提供会社」に表示されている不動産会社へ直接お願いいたします。
- 間取図は、現況を優先させていただきます。
- 映像は物件の一部を撮影したものです。物件の契約にあたっての最終判断はご自身の判断に基づいて行ってください。
- 仲介手数料について

アットホームは物件情報の適正化に努めております。
内容に誤りがある場合にはこちらへご連絡ください。