神奈川県横浜市中区羽衣町2丁目(伊勢佐木長者町駅)の賃貸:物件詳細
交通 所在地 |
駅徒歩 |
賃料 管理費等 |
敷金/保証金 礼金 |
間取り 面積 |
物件種目 築年月 |
|
ブルーライン/伊勢佐木長者町
神奈川県横浜市中区羽衣町2丁目
|
6分
|
13.5万円
10,000円
|
1ヶ月 / なし
1ヶ月
|
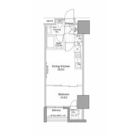
1DK
30.53m²
|
賃貸マンション
2017年10月(築8年2ヶ月)
|
ペット相談、楽器相談、外観タイル張り
|
|
間取図
|
外観
|
<
その他の画像
>
|
| 交通 | ブルーライン 伊勢佐木長者町駅 徒歩6分 |
|---|
| その他の交通 | JR京浜東北線 関内駅 徒歩7分 ブルーライン 関内駅 徒歩7分 |
| 所在地 |
神奈川県横浜市中区羽衣町2丁目
|
| 物件種目 |
賃貸マンション |
| 賃料 |
13.5万円 |
管理費等 |
10,000円 |
| 敷金 / 保証金 |
1ヶ月 / なし |
礼金 |
1ヶ月 |
| 敷引 |
- |
保証金償却 |
- |
| その他一時金 |
なし、鍵交換代等:33,000円~ |
保険等 |
要 |
| 維持費等 |
- |
| 間取り |
1DK(DK8、洋4.5) |
専有面積 |
30.53m² |
| 築年月 |
2017年10月(築8年2ヶ月)
|
階建 / 階 |
地上15階地下1階建 / 4階 |
| 建物構造 |
RC |
総戸数 |
- |
| 主要採光面 |
南東 |
駐車場 |
近有 22,000円/月 |
| バイク置き場 |
- |
駐輪場 |
- |
| 建物名・部屋番号 |
ザ・パークハビオ横浜関内 |
ペット |
相談 |
| アピールポイント |
来訪者の顔が見えるTVインターホン付き。共用部には宅配ボックスが備え付けられているため、忙しくて在宅時間が少なくても荷物を受け取れます。湿気を残さずしっかりと衣類を乾燥させられるので生乾き臭も軽減される浴室乾燥機があります。BSアンテナ設置済みなので、工事費要らずでBS加入できます。こちらの物件にはエレベーターがあります。防犯対策もバッチリなマンションタイプの物件です。近隣には駐車場もあり、近くに駐車できる安心感があります。室温を一定に保つ、断熱性のあるフローリングの物件です。服を畳まずに掛けるだけでいいウォークインクローゼットがついているので、家事の時短につながります。築8年の物件です。 |
| リフォーム履歴 |
- |
| リノベーション履歴 |
- |
| 備考 |
賃貸保証等:加入要(日本セーフティー 日本セーフティー 初年度保証料:賃料等合計額の30%(最低保証料1.2万円)2年目以降:1年毎1万円)
管理形態/管理員の勤務形態:-/-
バルコニー:2.6m²
お部屋探しは横浜駅徒歩5分のみらい不動産にお任せください。
SOHO使用・ペット飼育時敷金1か月積増民泊不可 保証会社未使用時敷金2か月 鍵交換必須/退去時:室内清掃・エアコン洗浄費借主負担
|
| エネルギー消費性能 |
- |
| 断熱性能 |
- |
| 目安光熱費 |
- |
| バス・トイレ |
バス・トイレ別、浴室乾燥機、追焚機能、シャワー、温水洗浄便座、トイレ |
| キッチン |
2口コンロ、ガスコンロ可 |
| セキュリティー |
モニター付インターホン、防犯カメラ |
| 収納 |
ウォークインクローゼット、収納スペース、クローゼット |
| 設備・サービス |
室内洗濯機置場、洗濯機置場、給湯、フローリング、エアコン、照明器具 |
| TV・通信 |
インターネット対応、光ファイバー、CS、BS端子 |
| その他 |
宅配BOX、バルコニー、エレベーター |
| 契約期間 |
2年 |
現況 |
居住中 |
| 条件等 |
- |
入居可能時期 |
2025年11月20日予定 |
| 更新料 |
新賃料 1ヶ月 |
物件番号 |
1151698616 |
| 情報公開日 |
2025年10月21日 |
次回更新予定日 |
2025年11月17日 |
| ケータイ用バーコード |
- スマートフォンでこの物件を見る
- スマートフォンからもこの物件をご覧になれます。
|
※「-」と表示されている項目については、情報提供会社にご確認ください。
| 周辺施設 |
横浜・伊勢佐木町商店街(イセザキ・モール) |
| 距離 |
320m |
写真を見る |
| 周辺施設 |
サイゼリヤ 日ノ出町駅前店 |
| 距離 |
884m |
写真を見る |
| 周辺施設 |
ローソン 石川町店 |
| 距離 |
1051m |
写真を見る |
| 周辺施設 |
横浜ワールドポーターズ |
| 距離 |
1482m |
写真を見る |
| 周辺施設 |
横浜ランドマークタワー |
| 距離 |
1816m |
写真を見る |
| 周辺施設 |
マックスバリュ エクスプレス 横浜吉野町店 |
| 距離 |
1442m |
写真を見る |
ここから簡単にお問い合わせをすることができます。
(SSLでの暗号化での送信を希望されるお客さまは
こちら
よりお問い合わせください)
お問い合わせを行う前に
「個人情報の取り扱いについて」を必ずお読みください。
「個人情報の取り扱いについて」に同意いただいた場合は「上記にご同意の上 確認画面へ進む」のボタンをクリックしてください。
個人情報の取り扱いについて
皆さまが送付された個人情報はアットホーム(株)のサーバを経由し、お問い合わせ先の不動産会社にメールまたはFAXにて転送されるためアットホーム(株)にも保管されます。アットホーム(株)で保管された個人情報の取り扱いについては、【こちら】をご覧ください。
また、本画面でご記入いただいた個人情報は、お問い合わせ先の不動産会社でも保管します。 お問い合わせ先の不動産会社が保管する個人情報の取り扱いについては、不動産会社に直接お問い合わせください。
神奈川県知事免許(1)第31847号 |
|---|
- 交通:
- 東急東横線/横浜駅
- 神奈川県横浜市西区北幸2丁目10-42 寺内ビル9F
- TEL:
- 045-322-2552
- FAX:
- 045-322-2553
- 所属団体:
- (公社)神奈川県宅地建物取引業協会会員(公社)首都圏不動産公正取引協議会加盟
取引態様:仲介  - 00273956
|
- スマートフォンで
この不動産会社を見る

|
- 提携サイト等より掲載されている物件情報につきましては、不動産会社詳細情報にリンクされていないものがあります。
- 物件に関するお問合せは、物件詳細ページの「情報提供会社」に表示されている不動産会社へ直接お願いいたします。
- 間取図は、現況を優先させていただきます。
- 映像は物件の一部を撮影したものです。物件の契約にあたっての最終判断はご自身の判断に基づいて行ってください。
- 仲介手数料について

アットホームは物件情報の適正化に努めております。
内容に誤りがある場合にはこちらへご連絡ください。