東京都台東区松が谷2丁目(稲荷町駅)の賃貸:物件詳細
交通 所在地 |
駅徒歩 |
賃料 管理費等 |
敷金/保証金 礼金 |
間取り 面積 |
物件種目 築年月 |
東京メトロ銀座線/稲荷町
東京都台東区松が谷2丁目
|
8分
|
18.3万円
10,000円
|
なし / なし
1ヶ月
|
2LDK
52.47m²
|
賃貸マンション
2019年7月(築6年4ヶ月)
|
ペット相談、分譲タイプ、常時ゴミ出し可能、角部屋、二人入居可、2面採光、24時間換気システム、閑静な住宅街、外観タイル張り、IT重説対応物件、保証人不要
|
間取図
|
外観
|
<
その他の画像
>
|
|
交通 | 東京メトロ銀座線 稲荷町駅 徒歩8分 |
---|
その他の交通 | JR山手線 上野駅 徒歩13分 つくばエクスプレス 浅草駅 徒歩7分 |
所在地 |
東京都台東区松が谷2丁目
|
物件種目 |
賃貸マンション |
賃料 |
18.3万円 |
管理費等 |
10,000円 |
敷金 / 保証金 |
なし / なし |
礼金 |
1ヶ月 |
敷引 |
- |
保証金償却 |
- |
その他一時金 |
契約事務手数料:5,500円、くらしあんしんサポート24(1年間):16,500円、消臭除菌代:8,800円、鍵交換代等:27,500円~ |
保険等 |
要 1年 10,000円 |
維持費等 |
- |
クレジットカード決済 |
初期費用可 |
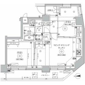
間取り |
2LDK(LDK11.6、洋5.9、洋5.3) |
専有面積 |
52.47m² |
築年月 |
2019年7月(築6年4ヶ月)
|
階建 / 階 |
13階建 / 11階 |
建物構造 |
RC |
総戸数 |
- |
主要採光面 |
西 |
駐車場 |
- |
バイク置き場 |
- |
駐輪場 |
有 無料 |
建物名・部屋番号 |
レアライズ浅草Ⅳ 1101 |
ペット |
相談 |
リフォーム履歴 |
- |
リノベーション履歴 |
- |
備考 |
賃貸保証等:加入要(下記よりプランを選択できます ①初回+月額プラン:初回=賃料総額の50%、月額=賃料総額の1%(年間保証料なし) ②月額プラン:初回=なし、月額=賃料総額の3%(年間保証料なし))
管理形態/管理員の勤務形態:-/-
IT重説対応物件
退去時のルームクリーニング費用は借主様負担
ペット飼育:敷金1ヶ月積み増し(償却)
解約通知:2ヶ月前
短期解約違約金:1年未満の解約の場合、賃料等の1ヶ月分
更新事務手数料:0.275ヶ月
共用部分の付随設備の詳細(空き状況・料金等)は要確認
ご入居される方のご内容によって保証会社等の契約条件に変動あり
借主様の瑕疵による汚れ・キズ等は別途ご負担いただきます。
|
エネルギー消費性能 |
- |
断熱性能 |
- |
目安光熱費 |
- |
バス・トイレ |
バス・トイレ別、浴室乾燥機、オートバス、追焚機能、洗面所独立、洗面所、シャワー、温水洗浄便座、トイレ |
キッチン |
システムキッチン、3口以上コンロ、ガスコンロ可、グリル |
セキュリティー |
モニター付オートロック、オートロック、モニター付インターホン、防犯カメラ |
収納 |
全居室収納、収納スペース、クローゼット、シューズボックス |
設備・サービス |
室内洗濯機置場、洗濯機置場、都市ガス給湯、給湯、全居室フローリング、フローリング、都市ガス、エアコン、冷房、人感センサー付照明、間接照明、複層ガラス |
TV・通信 |
インターネット対応、インターネット使用料無料、ケーブルTV、CS、BS端子 |
その他 |
宅配BOX、ワイドバルコニー、バルコニー、駐輪場、エレベーター |
契約期間 |
1年 |
現況 |
居住中 |
条件等 |
- |
入居可能時期 |
2025年12月下旬予定 |
仲介手数料 |
1.1ヶ月 |
|
|
更新料 |
新賃料 0.5ヶ月 |
物件番号 |
1151733716 |
情報公開日 |
2025年10月21日 |
次回更新予定日 |
2025年11月4日 |
ケータイ用バーコード |
- スマートフォンでこの物件を見る
- スマートフォンからもこの物件をご覧になれます。
|
※「-」と表示されている項目については、情報提供会社にご確認ください。
周辺施設 |
まいばすけっと 合羽橋南店 |
距離 |
70m |
写真を見る |
周辺施設 |
ファミリーマート 台東松が谷店 |
距離 |
232m |
写真を見る |
周辺施設 |
マツモトキヨシ 新御徒町店 |
距離 |
927m |
写真を見る |
周辺施設 |
台東区立松葉小学校 |
距離 |
107m |
写真を見る |
周辺施設 |
台東区立駒形中学校 |
距離 |
802m |
写真を見る |
周辺施設 |
ドン・キホーテ 浅草店 |
距離 |
695m |
写真を見る |
周辺施設 |
佐竹商店街 |
距離 |
1302m |
写真を見る |
ここから簡単にお問い合わせをすることができます。
(SSLでの暗号化での送信を希望されるお客さまは
こちら
よりお問い合わせください)
お問い合わせを行う前に
「個人情報の取り扱いについて」を必ずお読みください。
「個人情報の取り扱いについて」に同意いただいた場合は「上記にご同意の上 確認画面へ進む」のボタンをクリックしてください。
個人情報の取り扱いについて
皆さまが送付された個人情報はアットホーム(株)のサーバを経由し、お問い合わせ先の不動産会社にメールまたはFAXにて転送されるためアットホーム(株)にも保管されます。アットホーム(株)で保管された個人情報の取り扱いについては、【こちら】をご覧ください。
また、本画面でご記入いただいた個人情報は、お問い合わせ先の不動産会社でも保管します。 お問い合わせ先の不動産会社が保管する個人情報の取り扱いについては、不動産会社に直接お問い合わせください。
東京都知事免許(4)第88642号 |
---|
- 交通:
- JR山手線/御徒町駅 徒歩2分
- 東京都台東区上野6丁目5-1 羽山ビル2F
- TEL:
- 03-5818-8387
- FAX:
- 03-5818-8386
- 所属団体:
- (公社)全日本不動産協会会員(公社)首都圏不動産公正取引協議会加盟
取引態様:仲介  - 00018394
|
- スマートフォンで
この不動産会社を見る

|
- 提携サイト等より掲載されている物件情報につきましては、不動産会社詳細情報にリンクされていないものがあります。
- 物件に関するお問合せは、物件詳細ページの「情報提供会社」に表示されている不動産会社へ直接お願いいたします。
- 間取図は、現況を優先させていただきます。
- 映像は物件の一部を撮影したものです。物件の契約にあたっての最終判断はご自身の判断に基づいて行ってください。
- 仲介手数料について

アットホームは物件情報の適正化に努めております。
内容に誤りがある場合にはこちらへご連絡ください。