大阪府大阪市西区立売堀1丁目(西大橋駅)の賃貸:物件詳細
交通 所在地 |
駅徒歩 |
賃料 管理費等 |
敷金/保証金 礼金 |
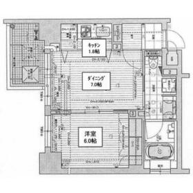
間取り 面積 |
物件種目 築年月 |
|
地下鉄長堀鶴見緑地線/西大橋
大阪府大阪市西区立売堀1丁目
|
5分
|
10.2万円
7,900円
|
なし / なし
1ヶ月
|
1LDK
37.99m²
|
賃貸マンション
2017年11月(築8年)
|
デザイナーズ、分譲タイプ、常時ゴミ出し可能、二人入居可、24時間換気システム、閑静な住宅街、外観タイル張り、IT重説対応物件
|
|
間取図
|
外観
|
<
その他の画像
>
|
| 交通 | 地下鉄長堀鶴見緑地線 西大橋駅 徒歩5分 |
|---|
| その他の交通 | 地下鉄四つ橋線 本町駅 徒歩6分 地下鉄御堂筋線 心斎橋駅 徒歩10分 |
| 所在地 |
大阪府大阪市西区立売堀1丁目
|
| 物件種目 |
賃貸マンション |
| 賃料 |
10.2万円 |
管理費等 |
7,900円 |
| 敷金 / 保証金 |
なし / なし |
礼金 |
1ヶ月 |
| 敷引 |
- |
保証金償却 |
- |
| その他一時金 |
なし |
保険等 |
要 |
| 維持費等 |
- |
クレジットカード決済 |
初期費用可 |
| 間取り |
1LDK(LDK8.8、洋6) |
専有面積 |
37.99m² |
| 築年月 |
2017年11月(築8年)
|
階建 / 階 |
15階建 / 9階 |
| 建物構造 |
RC |
総戸数 |
- |
| 主要採光面 |
|
駐車場 |
近有 28,000円/月 |
| バイク置き場 |
有 |
駐輪場 |
有 |
| 建物名・部屋番号 |
|
ペット |
-
|
| アピールポイント |
当店ではおとり広告は一切ございません!皆様がお部屋探しで失敗しないよう、経歴10年以上のベテランスタッフがお客様にピッタリな物件をご紹介いたします。皆様からのお問合せお待ちしております♪ |
| リフォーム履歴 |
- |
| リノベーション履歴 |
- |
| 備考 |
管理形態/管理員の勤務形態:-/巡回
IT重説対応物件、管理人巡回
物件現地集合・オンライン内覧・その他物件のお探しも可能でございます!掲載元が当店でない物件もまとめてご案内可能でございます。初期費用のクレジット決済・郵送でのご契約も承っておりますのでご相談ください。
お問い合わせ:アスモ不動産上本町店【06-6795-4535】
|
| エネルギー消費性能 |
- |
| 断熱性能 |
- |
| 目安光熱費 |
- |
| バス・トイレ |
ミストサウナ、バス・トイレ別、浴室乾燥機、追焚機能、シャワー付洗面化粧台、洗面所独立、洗面所、温水洗浄便座、トイレ |
| キッチン |
システムキッチン、独立型キッチン、2口コンロ、ガスコンロ可 |
| セキュリティー |
モニター付オートロック、オートロック、モニター付インターホン、ディンプルキー、ダブルロックドア、防犯カメラ |
| 収納 |
収納スペース、クローゼット、シューズボックス |
| 設備・サービス |
室内洗濯機置場、洗濯機置場、出窓、全居室フローリング、都市ガス、人感センサー付照明、間接照明 |
| TV・通信 |
インターネット対応、光ファイバー、ケーブルTV、CS、BS端子 |
| その他 |
宅配BOX、バイク置き場、バルコニー、駐輪場、エレベーター |
| 契約期間 |
2年 |
現況 |
空家 |
| 条件等 |
- |
入居可能時期 |
即時 |
| 更新料 |
- |
物件番号 |
1151788916 |
| 情報公開日 |
2025年10月21日 |
次回更新予定日 |
2025年11月4日 |
| ケータイ用バーコード |
- スマートフォンでこの物件を見る
- スマートフォンからもこの物件をご覧になれます。
|
※「-」と表示されている項目については、情報提供会社にご確認ください。
| 周辺施設 |
ライフ 阿波座駅前店 |
| 距離 |
1047m |
写真を見る |
| 周辺施設 |
mandai(万代) フレスポ阿波座店 |
| 距離 |
1102m |
写真を見る |
| 周辺施設 |
セブンイレブン 大阪靱本町2丁目店 |
| 距離 |
609m |
写真を見る |
| 周辺施設 |
三菱UFJ銀行船場支店 |
| 距離 |
1476m |
写真を見る |
| 周辺施設 |
やなぎ屋クリーニング 京町堀店 |
| 距離 |
1057m |
写真を見る |
| 周辺施設 |
株式会社グローバルライフ |
| 距離 |
1227m |
写真を見る |
ここから簡単にお問い合わせをすることができます。
(SSLでの暗号化での送信を希望されるお客さまは
こちら
よりお問い合わせください)
お問い合わせを行う前に
「個人情報の取り扱いについて」を必ずお読みください。
「個人情報の取り扱いについて」に同意いただいた場合は「上記にご同意の上 確認画面へ進む」のボタンをクリックしてください。
個人情報の取り扱いについて
皆さまが送付された個人情報はアットホーム(株)のサーバを経由し、お問い合わせ先の不動産会社にメールまたはFAXにて転送されるためアットホーム(株)にも保管されます。アットホーム(株)で保管された個人情報の取り扱いについては、【こちら】をご覧ください。
また、本画面でご記入いただいた個人情報は、お問い合わせ先の不動産会社でも保管します。 お問い合わせ先の不動産会社が保管する個人情報の取り扱いについては、不動産会社に直接お問い合わせください。
大阪府知事免許(1)第62969号 |
|---|
- 交通:
- 近鉄奈良線/大阪上本町駅 徒歩2分
- 大阪府大阪市天王寺区上汐3丁目3-23 ライオンズマンション上六第二
- TEL:
- 06-6795-4535
- FAX:
- 06-6795-4536
- 所属団体:
- (一社)大阪府宅地建物取引業協会会員(公社)近畿地区不動産公正取引協議会加盟
取引態様:仲介  - 50110539
|
- スマートフォンで
この不動産会社を見る

|
- 提携サイト等より掲載されている物件情報につきましては、不動産会社詳細情報にリンクされていないものがあります。
- 物件に関するお問合せは、物件詳細ページの「情報提供会社」に表示されている不動産会社へ直接お願いいたします。
- 間取図は、現況を優先させていただきます。
- 映像は物件の一部を撮影したものです。物件の契約にあたっての最終判断はご自身の判断に基づいて行ってください。
- 仲介手数料について

アットホームは物件情報の適正化に努めております。
内容に誤りがある場合にはこちらへご連絡ください。