不動産 賃貸 マンション等の住宅情報:埼玉住まい情報


東京都大田区山王3丁目(大森駅)の賃貸:物件詳細

  • 物件詳細
  • 情報の見方
  • 印刷用画面
交通
所在地
駅徒歩 賃料
管理費等
敷金/保証金
礼金
間取り
面積
物件種目
築年月

JR京浜東北線/大森 新着

東京都大田区山王3丁目

9分

7.95万円

8,500円

なし / なし

1ヶ月

1K

20.52m²

賃貸マンション

2007年8月(築18年3ヶ月)

おすすめPOINTデザイナーズ、分譲タイプ、常時ゴミ出し可能、二人入居可、24時間セキュリティー、24時間換気システム、IT重説対応物件、保証人不要

おすすめコメント  スタッフ: 市川 陽華

【当社専任/分譲賃貸マンション】商店街沿いの住みやすい住環境/都心エリアや羽田空港への快適アクセス★シンプルな上質空間/IHコンロのシステムキッチン・浴室乾燥機・オートロック&Wロックの玄関錠★

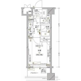
間取図

間取図

敷金ゼロで初期費用がお得/温水洗浄便座・浴室乾燥機能付き

外観

外観

当社専任/分譲賃貸マンション

<
その他の画像
  • リビング
  • 室内
  • キッチン
  • バス/シャワー
  • トイレ
  • 収納
  • 設備
  • 玄関
  • バルコニー
  • エントランス
  • その他
  • 共有部分
  • 共有部分
  • その他
  • その他
  • その他
  • 外観
  • リビング
  • 室内
  • 設備
  • 販売店
  • 販売店
  • コンビニ
  • 販売店
  • 役所
  • ショッピング施設
>
    • とりあえず保存
    • お問い合わせ
    交通

    JR京浜東北線 大森駅 徒歩9分

    その他の交通

    京急本線 平和島駅 徒歩17分

    京急本線 大森海岸駅 徒歩19分

    所在地 東京都大田区山王3丁目
    物件種目 賃貸マンション
    賃料 7.95万円 管理費等 8,500円
    敷金 / 保証金 なし / なし 礼金 1ヶ月
    敷引 保証金償却
    その他一時金 口座振替サービス料:5,280円、室内抗菌代:16,500円、鍵交換代等:32,450円~ 保険等
    維持費等 クレジットカード決済 初期費用可
    間取り 1K(K1.5、洋6) 専有面積 20.52m²
    築年月 2007年8月(築18年3ヶ月) 階建 / 階 8階建 / 6階
    建物構造 RC 総戸数
    主要採光面 南西 駐車場
    バイク置き場 駐輪場
    建物名・部屋番号 コンシェリア大森山王 ペット
    アピールポイント ☆敷金ゼロで初期費用がお得/温水洗浄便座・浴室乾燥機能付き☆まずはお気軽にお問い合わせください
    リフォーム履歴
    リノベーション履歴
    備考
    賃貸保証等:加入要(アーバンプライム 初回保証委託料総賃料70%年間保証委託料1万円)
    管理形態/管理員の勤務形態:-/-
    バルコニー:4.27m²
    IT重説対応物件、二重床・二重天井
    テレワークにもおすすめ
    退去時クリーニング費49500円。安心入居パック39600円。2名入居時賃料5000円増額(1年未満解約違約金1か月)ファストドクターの入居者サポート付、仕様・図面・写真等に相違があった場合は現況優先
    エネルギー消費性能
    断熱性能
    目安光熱費
    バス・トイレ バス・トイレ別、浴室乾燥機、シャワー、温水洗浄便座、トイレ
    キッチン システムキッチン、IHクッキングヒーター、2口コンロ
    セキュリティー モニター付オートロック、オートロック、モニター付インターホン、ディンプルキー、ダブルロックドア、防犯カメラ
    収納 収納スペース、クローゼット、シューズボックス
    設備・サービス 室内洗濯機置場、二重床、洗濯機置場、都市ガス給湯、給湯、フローリング、都市ガス、エアコン、人感センサー付照明、照明器具
    TV・通信 インターネット対応、CS、BS端子
    その他 宅配BOX、エレベーター2基以上、バルコニー、エレベーター
    契約期間 2年 現況 居住中
    条件等 入居可能時期 2025年12月下旬予定
    更新料 新賃料 1.5ヶ月 物件番号 1151794716
    情報公開日 2025年10月21日 次回更新予定日 2025年11月4日
    ケータイ用バーコード

    QRコード

    スマートフォンでこの物件を見る
    スマートフォンからもこの物件をご覧になれます。
    ※「-」と表示されている項目については、情報提供会社にご確認ください。

    この物件の周辺情報

    周辺施設 まいばすけっと 大森山王3丁目店
    距離 98m
    周辺施設 MEGAドン・キホーテ大森山王店
    距離 67m
    周辺施設 セブンイレブン 大田区山王春日橋店
    距離 239m
    周辺施設 キッチンオリジン 大森山王店
    距離 85m
    周辺施設 大田文化の森
    距離 470m
    周辺施設 Luz(ラズ)大森
    距離 729m

    クイックお問い合わせ

    ここから簡単にお問い合わせをすることができます。
    (SSLでの暗号化での送信を希望されるお客さまは こちら よりお問い合わせください)

    お問い合わせ内容(必須)
    お名前(必須) 姓  名 
    メールアドレス(必須)
    ※携帯電話のメールアドレスをご入力される方はこちらをご確認ください
    電話番号(必須)
    - -

    ※入力いただいた電話番号へSMSまたは音声でパスワードをご連絡します。

    携帯電話の番号をご入力の方へ

    携帯電話の番号をご入力の方へ
    確認画面にて送信ボタンをクリックするとSMSが携帯電話に届きます。
    そのSMSに記載のパスワード(認証番号)を入力し、お問い合わせを完了してください。
    尚、SMSの送信者番号は 0005 202 760 となります。
    これはアットホームの固定番号です。

    備考欄 希望条件、物件案内希望日、質問などがございましたらご記入ください。
    お問い合わせを行う前に「個人情報の取り扱いについて」を必ずお読みください。
    「個人情報の取り扱いについて」に同意いただいた場合は「上記にご同意の上 確認画面へ進む」のボタンをクリックしてください。

    個人情報の取り扱いについて

    皆さまが送付された個人情報はアットホーム(株)のサーバを経由し、お問い合わせ先の不動産会社にメールまたはFAXにて転送されるためアットホーム(株)にも保管されます。アットホーム(株)で保管された個人情報の取り扱いについては、【こちら】をご覧ください。
    また、本画面でご記入いただいた個人情報は、お問い合わせ先の不動産会社でも保管します。 お問い合わせ先の不動産会社が保管する個人情報の取り扱いについては、不動産会社に直接お問い合わせください。

    情報提供会社

    情報提供会社

    (株)クレアスレント 五反田店

    国土交通大臣免許(1)第10473号

    交通:
    JR山手線/五反田駅 徒歩4分
    東京都品川区西五反田1丁目32-11 オークラビル8F
    TEL:
    03-6824-9514
    FAX:
    03-6431-8530
    所属団体:
    (公社)東京都宅地建物取引業協会会員
    (公社)首都圏不動産公正取引協議会加盟

    取引態様:仲介

    • 会社情報
    • 00261464
    スマートフォンで
    この不動産会社を見る
    QRコード
    • とりあえず保存
    • お問い合わせ
    • 提携サイト等より掲載されている物件情報につきましては、不動産会社詳細情報にリンクされていないものがあります。
    • 物件に関するお問合せは、物件詳細ページの「情報提供会社」に表示されている不動産会社へ直接お願いいたします。
    • 間取図は、現況を優先させていただきます。
    • 映像は物件の一部を撮影したものです。物件の契約にあたっての最終判断はご自身の判断に基づいて行ってください。
    • 仲介手数料について仲介手数料

    アットホームは物件情報の適正化に努めております。 内容に誤りがある場合にはこちらへご連絡ください。

    【埼玉住まい情報】では、日本全国の物件から賃貸マンションや賃貸アパート・賃貸一戸建て等の賃貸住宅情報、新築マンション・分譲マンションや中古マンション等の売買マンション情報、新築一戸建てや中古一戸建てなどの戸建住宅、 土地など、総合的な不動産住宅情報検索サービスを提供致します。
    【埼玉住まい情報】から、選りすぐりの不動産物件を探してみましょう。

    【免責事項】
    このコーナーの運営はアットホーム株式会社(https://www.athome.co.jp/)が行っています。
    このコーナーに掲載している物件情報は、「アットホーム不動産情報ネットワーク」に加盟する不動産会社等(情報提供元)から提供されています。信頼性の高い情報提供が行えるよう、最大限の努力をしておりますが、その内容を保証するものではありません。 利用者のみなさまと各情報提供元との取引に起因する損害および情報が掲載されたことに起因する損害等については、株式会社イーシティ埼玉、およびアットホームは一切責任を負いません。
    各物件情報の内容や画像等はすべて現況を優先させていただきます。
    お取引等(お取引の準備、資金調達等を含みます)の際には、内容や契約条件等について、各情報提供元より十分な説明を受け、ご自身でご確認の上、判断してください。
    このコーナーへの物件情報のご掲載、その他不動産業務ソリューション等についての不動産会社様のお問合せはこちらからお願いいたします。

    物件画像: