東京都世田谷区尾山台3丁目(尾山台駅)の賃貸:物件詳細
交通 所在地 |
駅徒歩 |
賃料 管理費等 |
敷金/保証金 礼金 |
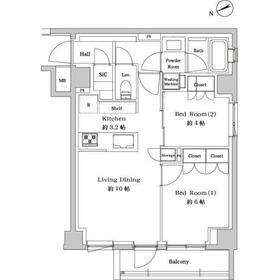
間取り 面積 |
物件種目 築年月 |
|
東急大井町線/尾山台
東京都世田谷区尾山台3丁目
|
4分
|
24.5万円
20,000円
|
1ヶ月 / なし
1ヶ月
|
2LDK
54.29m²
|
賃貸マンション
2024年8月(築1年8ヶ月)
|
分譲タイプ、角部屋、2面採光
|
|
間取図
|
外観
|
<
その他の画像
>
|
| 交通 | 東急大井町線 尾山台駅 徒歩4分 |
|---|
| その他の交通 | 東急大井町線 等々力駅 徒歩11分 東急大井町線 九品仏駅 徒歩13分 |
| 所在地 |
東京都世田谷区尾山台3丁目
|
| 物件種目 |
賃貸マンション |
| 賃料 |
24.5万円 |
管理費等 |
20,000円 |
| 敷金 / 保証金 |
1ヶ月 / なし |
礼金 |
1ヶ月 |
| 敷引 |
- |
保証金償却 |
- |
| その他一時金 |
なし、鍵交換代等:17,600円~ |
保険等 |
要 |
| 維持費等 |
24時間サポート:880円/月、保険月額:950円/月 |
| 間取り |
2LDK(LDK13.2、洋6、洋4) |
専有面積 |
54.29m² |
| 築年月 |
2024年8月(築1年8ヶ月)
|
階建 / 階 |
6階建 / 4階 |
| 建物構造 |
RC |
総戸数 |
- |
| 主要採光面 |
西 |
駐車場 |
- |
| バイク置き場 |
- |
駐輪場 |
- |
| 建物名・部屋番号 |
オープンレジデンシア尾山台 |
ペット |
-
|
| リフォーム履歴 |
- |
| リノベーション履歴 |
- |
| 備考 |
賃貸保証等:加入要(初回保証料総賃料1か月分、1年毎に14,000円の保証委託料)
管理形態/管理員の勤務形態:-/-
◆初期費用・web内見・入居日交渉等なんでもご相談ください◆
【お部屋探しはクレアスレント】★日常生活に便利なコンビニ・スーパーも近く生活環境良好★インターネットで紹介していない類似物件も多数ご案内!お客様の要望にお応えし、快適で素敵なお部屋をご紹介いたします!仕様・図面・写真等に相違があった場合は現況を優先します。期解約違約金あり。
|
| エネルギー消費性能 |
- |
| 断熱性能 |
- |
| 目安光熱費 |
- |
| バス・トイレ |
バス・トイレ別、浴室乾燥機、追焚機能、シャワー付洗面化粧台、洗面所独立、洗面所、洗面台、シャワー、温水洗浄便座、トイレ |
| キッチン |
システムキッチン、食器洗浄乾燥機、浄水器、3口以上コンロ、ガスコンロ可、グリル |
| セキュリティー |
モニター付オートロック、オートロック、モニター付インターホン |
| 収納 |
収納スペース、シューズインクローゼット、クローゼット |
| 設備・サービス |
床暖房、室内洗濯機置場、洗濯機置場、エアコン、暖房、人感センサー付照明、照明器具 |
| TV・通信 |
インターネット対応、インターネット使用料無料 |
| その他 |
宅配BOX、バルコニー、エレベーター |
| 契約期間 |
2年 |
現況 |
居住中 |
| 条件等 |
- |
入居可能時期 |
相談 |
| 更新料 |
新賃料 1ヶ月 |
物件番号 |
1151856122 |
| 情報公開日 |
2026年3月6日 |
次回更新予定日 |
2026年3月20日 |
| ケータイ用バーコード |
- スマートフォンでこの物件を見る
- スマートフォンからもこの物件をご覧になれます。
|
※「-」と表示されている項目については、情報提供会社にご確認ください。
| 周辺施設 |
ハッピーロード尾山台 |
| 距離 |
246m |
写真を見る |
| 周辺施設 |
ピアースカフェ |
| 距離 |
805m |
写真を見る |
| 周辺施設 |
成城石井 等々力店 |
| 距離 |
756m |
写真を見る |
| 周辺施設 |
ベーカリーハンスローゼン 九品仏店 |
| 距離 |
835m |
写真を見る |
| 周辺施設 |
Comme'N(コム・ン) |
| 距離 |
1175m |
写真を見る |
| 周辺施設 |
等々力渓谷 |
| 距離 |
1030m |
写真を見る |
ここから簡単にお問い合わせをすることができます。
(SSLでの暗号化での送信を希望されるお客さまは
こちら
よりお問い合わせください)
お問い合わせを行う前に
「個人情報の取り扱いについて」を必ずお読みください。
「個人情報の取り扱いについて」に同意いただいた場合は「上記にご同意の上 確認画面へ進む」のボタンをクリックしてください。
個人情報の取り扱いについて
皆さまが送付された個人情報はアットホーム(株)のサーバを経由し、お問い合わせ先の不動産会社にメールまたはFAXにて転送されるためアットホーム(株)にも保管されます。アットホーム(株)で保管された個人情報の取り扱いについては、【こちら】をご覧ください。
また、本画面でご記入いただいた個人情報は、お問い合わせ先の不動産会社でも保管します。 お問い合わせ先の不動産会社が保管する個人情報の取り扱いについては、不動産会社に直接お問い合わせください。
国土交通大臣免許(1)第10473号 |
|---|
- 交通:
- JR山手線/五反田駅 徒歩4分
- 東京都品川区西五反田1丁目32-11 オークラビル8F
- TEL:
- 03-6824-9514
- FAX:
- 03-6431-8530
- 所属団体:
- (公社)東京都宅地建物取引業協会会員(公社)首都圏不動産公正取引協議会加盟
取引態様:仲介  - 00261464
|
- スマートフォンで
この不動産会社を見る

|
- 提携サイト等より掲載されている物件情報につきましては、不動産会社詳細情報にリンクされていないものがあります。
- 物件に関するお問合せは、物件詳細ページの「情報提供会社」に表示されている不動産会社へ直接お願いいたします。
- 間取図は、現況を優先させていただきます。
- 映像は物件の一部を撮影したものです。物件の契約にあたっての最終判断はご自身の判断に基づいて行ってください。
- 仲介手数料について

アットホームは物件情報の適正化に努めております。
内容に誤りがある場合にはこちらへご連絡ください。