神奈川県横浜市西区宮崎町(桜木町駅)の賃貸:物件詳細
交通 所在地 |
駅徒歩 |
賃料 管理費等 |
敷金/保証金 礼金 |
間取り 面積 |
物件種目 築年月 |
|
JR京浜東北線/桜木町
神奈川県横浜市西区宮崎町
|
7分
|
10.75万円
12,000円
|
1ヶ月 / なし
1ヶ月
|
1K
25.67m²
|
賃貸マンション
2026年2月
|
ペット相談、楽器相談、角部屋、24時間換気システム、IT重説対応物件、保証人不要
|
|
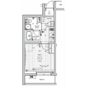
間取図
|
外観
|
その他の画像
|
| 交通 | JR京浜東北線 桜木町駅 徒歩7分 |
|---|
| その他の交通 | 京急本線 日ノ出町駅 徒歩8分 横浜高速鉄道みなとみらい線 馬車道駅 徒歩14分 |
| 所在地 |
神奈川県横浜市西区宮崎町
|
| 物件種目 |
賃貸マンション |
| 賃料 |
10.75万円 |
管理費等 |
12,000円 |
| 敷金 / 保証金 |
1ヶ月 / なし |
礼金 |
1ヶ月 |
| 敷引 |
- |
保証金償却 |
- |
| その他一時金 |
なし |
保険等 |
要 |
| 維持費等 |
安心入居サポート:2,200円/月 |
クレジットカード決済 |
初期費用可 |
| 間取り |
1K(洋7.4、K2) |
専有面積 |
25.67m² |
| 築年月 |
2026年2月
|
階建 / 階 |
5階建 / 3階 |
| 建物構造 |
RC |
総戸数 |
- |
| 主要採光面 |
|
駐車場 |
近有 26,000円/月 |
| バイク置き場 |
- |
駐輪場 |
- |
| 建物名・部屋番号 |
メイクスアート桜木町 |
ペット |
相談 |
| アピールポイント |
桜木町駅徒歩圏内の新築物件☆ペット飼育・楽器使用相談可能☆
室内・共用部ともに充実の設備・仕様となっており、新築ならではの快適空間!
|
| リフォーム履歴 |
- |
| リノベーション履歴 |
- |
| 備考 |
賃貸保証等:加入要(初回保証料:総賃料の80% 月額保証料:総賃料の1% 手数料:550円/月)
管理形態/管理員の勤務形態:-/-
IT重説対応物件
【オンライン内見・オンライン相談可】【初期費用カード決済可】諸条件のご相談は当店へお気軽にお問い合わせください☆
退去時:室内清掃費費用44000円・エアコン内部洗浄費16500円、短期解約違約金:総賃料1.5ヶ月分/1年未満、更新時事務手数料:16500円、ペット相談可:小型犬または猫2匹まで(1匹につき敷金1ヶ月追加)、楽器相談可:消音機能付きのもの(苦情等が寄せられた場合には即時使用中止)、法人契約:礼金1.5ヶ月、初期費用分割可能(スムーズ・クレジット決済)
|
| エネルギー消費性能 |
- |
| 断熱性能 |
- |
| 目安光熱費 |
- |
| バス・トイレ |
バス・トイレ別、浴室乾燥機、洗面所独立、洗面所、洗面台、シャワー、温水洗浄便座、トイレ |
| キッチン |
システムキッチン、2口コンロ、ガスコンロ可 |
| セキュリティー |
モニター付オートロック、オートロック、モニター付インターホン、ダブルロックドア、防犯カメラ |
| 収納 |
収納スペース、クローゼット、シューズボックス |
| 設備・サービス |
室内洗濯機置場、洗濯機置場、フローリング、都市ガス、エアコン |
| TV・通信 |
インターネット対応、インターネット使用料無料、CS、BS端子 |
| その他 |
宅配BOX、エレベーター |
| 契約期間 |
2年 |
現況 |
空家 |
| 条件等 |
- |
入居可能時期 |
即時 |
| 更新料 |
新賃料 1.5ヶ月 |
物件番号 |
1152147422 |
| 情報公開日 |
2026年3月9日 |
次回更新予定日 |
2026年3月23日 |
| ケータイ用バーコード |
- スマートフォンでこの物件を見る
- スマートフォンからもこの物件をご覧になれます。
|
※「-」と表示されている項目については、情報提供会社にご確認ください。
| 周辺施設 |
神奈川大学 みなとみらいキャンパス |
| 距離 |
1179m |
写真を見る |
| 周辺施設 |
関東学院大学 横浜・関内キャンパス |
| 距離 |
1434m |
写真を見る |
| 周辺施設 |
サイゼリヤ 日ノ出町駅前店 |
| 距離 |
759m |
写真を見る |
| 周辺施設 |
スターバックスコーヒー CIAL桜木町店 |
| 距離 |
632m |
写真を見る |
| 周辺施設 |
モスバーガー 横浜桜木町店 |
| 距離 |
466m |
写真を見る |
| 周辺施設 |
コレットマーレ |
| 距離 |
515m |
写真を見る |
| 周辺施設 |
食品館あおば・野毛店 |
| 距離 |
569m |
写真を見る |
| 周辺施設 |
FUJI 伊勢町店 |
| 距離 |
674m |
写真を見る |
ここから簡単にお問い合わせをすることができます。
(SSLでの暗号化での送信を希望されるお客さまは
こちら
よりお問い合わせください)
お問い合わせを行う前に
「個人情報の取り扱いについて」を必ずお読みください。
「個人情報の取り扱いについて」に同意いただいた場合は「上記にご同意の上 確認画面へ進む」のボタンをクリックしてください。
個人情報の取り扱いについて
皆さまが送付された個人情報はアットホーム(株)のサーバを経由し、お問い合わせ先の不動産会社にメールまたはFAXにて転送されるためアットホーム(株)にも保管されます。アットホーム(株)で保管された個人情報の取り扱いについては、【こちら】をご覧ください。
また、本画面でご記入いただいた個人情報は、お問い合わせ先の不動産会社でも保管します。 お問い合わせ先の不動産会社が保管する個人情報の取り扱いについては、不動産会社に直接お問い合わせください。
神奈川県知事免許(10)第14677号 |
|---|
- 交通:
- JR京浜東北線/関内駅 徒歩3分
- 神奈川県横浜市中区翁町1丁目1-6 産友パークビル2F
- TEL:
- 045-227-5755
- FAX:
- 045-227-5756
- 所属団体:
- (公社)神奈川県宅地建物取引業協会会員(公社)首都圏不動産公正取引協議会加盟
取引態様:仲介  - 00105631
|
- スマートフォンで
この不動産会社を見る

|
- 提携サイト等より掲載されている物件情報につきましては、不動産会社詳細情報にリンクされていないものがあります。
- 物件に関するお問合せは、物件詳細ページの「情報提供会社」に表示されている不動産会社へ直接お願いいたします。
- 間取図は、現況を優先させていただきます。
- 映像は物件の一部を撮影したものです。物件の契約にあたっての最終判断はご自身の判断に基づいて行ってください。
- 仲介手数料について

アットホームは物件情報の適正化に努めております。
内容に誤りがある場合にはこちらへご連絡ください。