東京都墨田区東向島4丁目(東向島駅)の賃貸:物件詳細
交通 所在地 |
駅徒歩 |
賃料 管理費等 |
敷金/保証金 礼金 |
間取り 面積 |
物件種目 築年月 |
東武伊勢崎線/東向島
東京都墨田区東向島4丁目
|
5分
|
18万円
20,000円
|
なし / なし
なし
|
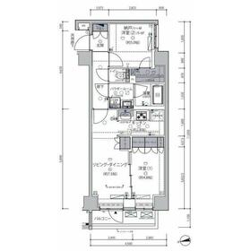
1SLDK
48.93m²
|
賃貸マンション
2025年2月
|
ペット相談、分譲タイプ、角部屋、二人入居可、24時間換気システム、外観タイル張り、IT重説対応物件、保証人不要
|
間取図
|
外観
|
<
その他の画像
>
|
交通 | 東武伊勢崎線 東向島駅 徒歩5分 |
---|
その他の交通 | 京成押上線 京成曳舟駅 徒歩13分 東武伊勢崎線 曳舟駅 徒歩13分 |
所在地 |
東京都墨田区東向島4丁目
|
物件種目 |
賃貸マンション |
賃料 |
18万円 |
管理費等 |
20,000円 |
敷金 / 保証金 |
なし / なし |
礼金 |
なし |
敷引 |
- |
保証金償却 |
- |
その他一時金 |
なし |
保険等 |
要 |
維持費等 |
- |
クレジットカード決済 |
初期費用可 |
間取り |
1SLDK(LDK10.3帖 洋室4.8帖 S5.0帖) |
専有面積 |
48.93m² |
築年月 |
2025年2月
|
階建 / 階 |
6階建 / 5階 |
建物構造 |
RC |
総戸数 |
51戸 |
主要採光面 |
西 |
駐車場 |
- |
バイク置き場 |
有 |
駐輪場 |
有 無料 |
建物名・部屋番号 |
セジョリ東向島 509 |
ペット |
小型犬可・ 猫可 |
アピールポイント |
☆初期費用・設備の詳細情報、ご来店予約をお急ぎのお客様は03-6859-2555までお気軽にお電話下さいませ♪ご提案、内見手配、ご契約まで女性専任スタッフによる安心安全のお部屋探しも実施しております☆ |
リフォーム履歴 |
- |
リノベーション履歴 |
- |
備考 |
賃貸保証等:加入要(初回総賃料の50% 1年毎に15000円)
管理形態/管理員の勤務形態:-/-
IT重説対応物件
保険18000円/2年。安心入居サポート16500円/2年。室内クリーニング代66000円、エアコン内部洗浄代16500円/基。ペット飼育時保証金1ヶ月積増/償却。1年未満解約時、違約金総賃料の1ヶ月分。
|
エネルギー消費性能 |
- |
断熱性能 |
- |
目安光熱費 |
- |
バス・トイレ |
TV付浴室、バス・トイレ別、浴室乾燥機、オートバス、追焚機能、洗面所独立、温水洗浄便座 |
キッチン |
システムキッチン、3口以上コンロ、ガスコンロ付、ガスコンロ可 |
セキュリティー |
モニター付オートロック、オートロック、モニター付インターホン、ディンプルキー、防犯カメラ |
収納 |
全居室収納、ウォークインクローゼット、収納スペース、クローゼット、シューズボックス |
設備・サービス |
全居室エアコン、エアコン2台以上、室内洗濯機置場、全居室フローリング、フローリング、都市ガス、エアコン |
TV・通信 |
インターネット対応、インターネット使用料無料、光ファイバー |
その他 |
宅配BOX、バイク置き場、バルコニー、駐輪場、エレベーター |
契約期間 |
2年 |
現況 |
空家 |
条件等 |
- |
入居可能時期 |
即時 |
更新料 |
新賃料 1ヶ月 |
物件番号 |
1152207515 |
情報公開日 |
2025年10月12日 |
次回更新予定日 |
2025年10月26日 |
ケータイ用バーコード |
- スマートフォンでこの物件を見る
- スマートフォンからもこの物件をご覧になれます。
|
※「-」と表示されている項目については、情報提供会社にご確認ください。
周辺施設 |
業務スーパー墨田店 |
距離 |
220m |
写真を見る |
周辺施設 |
セブンイレブン墨田1丁目大正通り店 |
距離 |
170m |
写真を見る |
周辺施設 |
サーティワンアイスクリーム曳舟イトーヨーカドー店 |
距離 |
1280m |
写真を見る |
周辺施設 |
墨田区立/あおやぎ保育園 |
距離 |
370m |
写真を見る |
周辺施設 |
墨田区立第二寺島小学校 |
距離 |
440m |
写真を見る |
周辺施設 |
東白鬚公園 |
距離 |
1050m |
写真を見る |
ここから簡単にお問い合わせをすることができます。
(SSLでの暗号化での送信を希望されるお客さまは
こちら
よりお問い合わせください)
お問い合わせを行う前に
「個人情報の取り扱いについて」を必ずお読みください。
「個人情報の取り扱いについて」に同意いただいた場合は「上記にご同意の上 確認画面へ進む」のボタンをクリックしてください。
個人情報の取り扱いについて
皆さまが送付された個人情報はアットホーム(株)のサーバを経由し、お問い合わせ先の不動産会社にメールまたはFAXにて転送されるためアットホーム(株)にも保管されます。アットホーム(株)で保管された個人情報の取り扱いについては、【こちら】をご覧ください。
また、本画面でご記入いただいた個人情報は、お問い合わせ先の不動産会社でも保管します。 お問い合わせ先の不動産会社が保管する個人情報の取り扱いについては、不動産会社に直接お問い合わせください。
国土交通大臣免許(2)第9556号 |
---|
- 交通:
- 東京メトロ半蔵門線/押上駅 徒歩1分
- 東京都墨田区押上1丁目23-2 ForestVillage1階
- TEL:
- 03-6859-2555
- FAX:
- 03-6859-2556
- 所属団体:
- (公財)日本賃貸住宅管理協会会員(公社)全日本不動産協会会員(公社)首都圏不動産公正取引協議会加盟
取引態様:仲介  - 00275928
|
- スマートフォンで
この不動産会社を見る

|
- 提携サイト等より掲載されている物件情報につきましては、不動産会社詳細情報にリンクされていないものがあります。
- 物件に関するお問合せは、物件詳細ページの「情報提供会社」に表示されている不動産会社へ直接お願いいたします。
- 間取図は、現況を優先させていただきます。
- 映像は物件の一部を撮影したものです。物件の契約にあたっての最終判断はご自身の判断に基づいて行ってください。
- 仲介手数料について

アットホームは物件情報の適正化に努めております。
内容に誤りがある場合にはこちらへご連絡ください。