神奈川県横浜市西区宮崎町(桜木町駅)の賃貸:物件詳細
交通 所在地 |
駅徒歩 |
賃料 管理費等 |
敷金/保証金 礼金 |
間取り 面積 |
物件種目 築年月 |
|
JR京浜東北線/桜木町
神奈川県横浜市西区宮崎町
|
7分
|
10.2万円
12,000円
|
1ヶ月 / なし
1ヶ月
|
1K
24.78m²
|
賃貸マンション
2026年2月
|
ペット相談、デザイナーズ、二人入居可、24時間換気システム、保証人不要
|
|
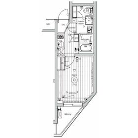
間取図
|
外観
|
<
その他の画像
>
|
| 交通 | JR京浜東北線 桜木町駅 徒歩7分 |
|---|
| その他の交通 | 京急本線 日ノ出町駅 徒歩8分 横浜高速鉄道みなとみらい線 馬車道駅 徒歩17分 |
| 所在地 |
神奈川県横浜市西区宮崎町
|
| 物件種目 |
賃貸マンション |
| 賃料 |
10.2万円 |
管理費等 |
12,000円 |
| 敷金 / 保証金 |
1ヶ月 / なし |
礼金 |
1ヶ月 |
| 敷引 |
- |
保証金償却 |
- |
| その他一時金 |
なし、鍵交換代等:33,000円~ |
保険等 |
要 |
| 維持費等 |
安心入居サポート(税込・必須):2,200円/月 |
| 間取り |
1K(洋7.1、K1.5) |
専有面積 |
24.78m² |
| 築年月 |
2026年2月
|
階建 / 階 |
5階建 / 2階 |
| 建物構造 |
RC |
総戸数 |
- |
| 主要採光面 |
北 |
駐車場 |
- |
| バイク置き場 |
- |
駐輪場 |
- |
| 建物名・部屋番号 |
メイクスアート桜木町 205 |
ペット |
相談 |
| リフォーム履歴 |
- |
| リノベーション履歴 |
- |
| 備考 |
賃貸保証等:加入要(①月額保証料:家賃(賃料+管理費)の1%②初回保証料:家賃の80%③手数料:月550円(税込))
管理形態/管理員の勤務形態:-/-
◆初期費用・web内見・入居日交渉等なんでもご相談ください◆
【チャットで気軽にご相談可能】都心にアクセス良好でON/OFF充実♪女性も安心できるオートロック・こだわり設備のお部屋★日常生活に便利なロケーション★オンライン相談や現地待ち合わせなどもご相談下さい!保証会社利用必須、短期解約違約金有、退去時清掃費&エアコン清掃費有、更新事務手数料16500円※仕様・図面・写真等に相違があった場合は現況を優先します
|
| エネルギー消費性能 |
- |
| 断熱性能 |
- |
| 目安光熱費 |
- |
| バス・トイレ |
バス・トイレ別、浴室乾燥機、洗面所独立、洗面所、洗面台、シャワー、温水洗浄便座、トイレ |
| キッチン |
システムキッチン、2口コンロ、ガスコンロ可 |
| セキュリティー |
モニター付オートロック、オートロック、モニター付インターホン、ディンプルキー、ダブルロックドア、防犯カメラ |
| 収納 |
収納スペース、クローゼット、シューズボックス |
| 設備・サービス |
室内洗濯機置場、洗濯機置場、都市ガス給湯、給湯、フローリング、都市ガス、エアコン、人感センサー付照明 |
| TV・通信 |
インターネット対応、インターネット使用料無料、CS、BS端子 |
| その他 |
宅配BOX、バルコニー、エレベーター |
| 契約期間 |
2年 |
現況 |
空家 |
| 条件等 |
- |
入居可能時期 |
即時 |
| 更新料 |
新賃料 1.5ヶ月 |
物件番号 |
1152273322 |
| 情報公開日 |
2026年3月10日 |
次回更新予定日 |
2026年3月24日 |
| ケータイ用バーコード |
- スマートフォンでこの物件を見る
- スマートフォンからもこの物件をご覧になれます。
|
※「-」と表示されている項目については、情報提供会社にご確認ください。
| 周辺施設 |
横浜にぎわい座 |
| 距離 |
546m |
写真を見る |
| 周辺施設 |
桜木町ぴおシティ |
| 距離 |
692m |
写真を見る |
| 周辺施設 |
食品館あおば 野毛店 |
| 距離 |
554m |
写真を見る |
| 周辺施設 |
ちぇるる野毛 |
| 距離 |
510m |
写真を見る |
| 周辺施設 |
ローソン 野毛坂店 |
| 距離 |
402m |
写真を見る |
| 周辺施設 |
ザ・ダイソー ぴおシティー桜木町店 |
| 距離 |
707m |
写真を見る |
ここから簡単にお問い合わせをすることができます。
(SSLでの暗号化での送信を希望されるお客さまは
こちら
よりお問い合わせください)
お問い合わせを行う前に
「個人情報の取り扱いについて」を必ずお読みください。
「個人情報の取り扱いについて」に同意いただいた場合は「上記にご同意の上 確認画面へ進む」のボタンをクリックしてください。
個人情報の取り扱いについて
皆さまが送付された個人情報はアットホーム(株)のサーバを経由し、お問い合わせ先の不動産会社にメールまたはFAXにて転送されるためアットホーム(株)にも保管されます。アットホーム(株)で保管された個人情報の取り扱いについては、【こちら】をご覧ください。
また、本画面でご記入いただいた個人情報は、お問い合わせ先の不動産会社でも保管します。 お問い合わせ先の不動産会社が保管する個人情報の取り扱いについては、不動産会社に直接お問い合わせください。
国土交通大臣免許(1)第10473号 |
|---|
- 交通:
- JR京浜東北線/横浜駅 徒歩8分
- 神奈川県横浜市神奈川区台町17-1 マストビル7階
- TEL:
- 045-412-3530
- 所属団体:
- (公社)神奈川県宅地建物取引業協会会員(公社)首都圏不動産公正取引協議会加盟
取引態様:仲介  - 00275825
|
- スマートフォンで
この不動産会社を見る

|
- 提携サイト等より掲載されている物件情報につきましては、不動産会社詳細情報にリンクされていないものがあります。
- 物件に関するお問合せは、物件詳細ページの「情報提供会社」に表示されている不動産会社へ直接お願いいたします。
- 間取図は、現況を優先させていただきます。
- 映像は物件の一部を撮影したものです。物件の契約にあたっての最終判断はご自身の判断に基づいて行ってください。
- 仲介手数料について

アットホームは物件情報の適正化に努めております。
内容に誤りがある場合にはこちらへご連絡ください。