東京都渋谷区代々木3丁目(南新宿駅)の賃貸:物件詳細
交通 所在地 |
駅徒歩 |
賃料 管理費等 |
敷金/保証金 礼金 |
間取り 面積 |
物件種目 築年月 |
|
小田急小田原線/南新宿
東京都渋谷区代々木3丁目
|
6分
|
57万円
30,000円
|
1ヶ月 / なし
1ヶ月
|
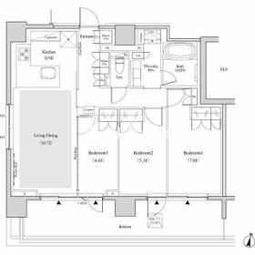
3LDK
75.14m²
|
賃貸マンション
2025年11月
|
ペット相談、楽器相談、角部屋、南向き、二人入居可、事務所使用可、2面採光、保証人不要
|
|
間取図
|
外観
外観
|
その他の画像
|
| 交通 | 小田急小田原線 南新宿駅 徒歩6分 |
|---|
| その他の交通 | 小田急小田原線 参宮橋駅 徒歩6分 都営大江戸線 代々木駅 徒歩9分 |
| 所在地 |
東京都渋谷区代々木3丁目
|
| 物件種目 |
賃貸マンション |
| 賃料 |
57万円 |
管理費等 |
30,000円 |
| 敷金 / 保証金 |
1ヶ月 / なし |
礼金 |
1ヶ月 |
| 敷引 |
- |
保証金償却 |
- |
| その他一時金 |
24時間緊急対応費:16,500円 |
保険等 |
要 |
| 維持費等 |
- |
| 間取り |
3LDK(LDK15.6帖 洋室4.4帖 洋室5.3帖 洋室7.0帖) |
専有面積 |
75.14m² |
| 築年月 |
2025年11月
|
階建 / 階 |
地上9階地下1階建 / 7階 |
| 建物構造 |
RC |
総戸数 |
- |
| 主要採光面 |
南 |
駐車場 |
無 |
| バイク置き場 |
有 13,200円/月 |
駐輪場 |
- |
| 建物名・部屋番号 |
ザ・パークハビオ代々木 801 |
ペット |
相談 |
| アピールポイント |
新築 JR山手線 代々木駅 徒歩8分 角部屋二面採光 ペット相談 楽器相談 温水洗浄便座 WIC |
| リフォーム履歴 |
- |
| リノベーション履歴 |
- |
| 備考 |
賃貸保証等:加入要(初年度保証料:賃料等合計額の50%(最低保証料2万円)2年目以降:1年毎1万円)
管理形態/管理員の勤務形態:-/-
事務所使用可 ペット相談:小型犬または猫二匹まで/敷金一ヶ月積み増し 楽器相談可:詳細あり 解約予告二ヶ月前 退去時室内及びエアコンクリーニング費用借主負担 事務所使用可能
|
| エネルギー消費性能 |
- |
| 断熱性能 |
- |
| 目安光熱費 |
- |
| バス・トイレ |
ミストサウナ、バス・トイレ別、浴室乾燥機、オートバス、追焚機能、洗面所独立、洗面所、洗面台、シャワー、温水洗浄便座、トイレ |
| キッチン |
カウンターキッチン、システムキッチン、3口以上コンロ、ガスコンロ付 |
| セキュリティー |
モニター付オートロック、オートロック、防犯カメラ、火災警報器(報知機) |
| 収納 |
ウォークインクローゼット、収納スペース、クローゼット、シューズボックス |
| 設備・サービス |
エアコン2台以上、室内洗濯機置場、フローリング、都市ガス、エアコン、暖房、冷房 |
| TV・通信 |
インターネット対応、インターネット使用料無料、光ファイバー |
| その他 |
宅配BOX、バイク置き場、バルコニー、エレベーター |
| 契約期間 |
2年 |
現況 |
未完成 |
| 条件等 |
- |
入居可能時期 |
2025年11月中旬予定 |
| 更新料 |
新賃料 1ヶ月 |
物件番号 |
1152337115 |
| 情報公開日 |
2025年10月12日 |
次回更新予定日 |
2025年11月10日 |
| ケータイ用バーコード |
- スマートフォンでこの物件を見る
- スマートフォンからもこの物件をご覧になれます。
|
※「-」と表示されている項目については、情報提供会社にご確認ください。
| 周辺施設 |
南新宿駅(小田急 小田原線) |
| 距離 |
430m |
写真を見る |
| 周辺施設 |
まいばすけっと代々木駅西店 |
| 距離 |
360m |
| 周辺施設 |
東海大学医学部附属東京病院 |
| 距離 |
560m |
写真を見る |
| 周辺施設 |
渋谷区立代々木山谷小学校 |
| 距離 |
120m |
写真を見る |
ここから簡単にお問い合わせをすることができます。
(SSLでの暗号化での送信を希望されるお客さまは
こちら
よりお問い合わせください)
お問い合わせを行う前に
「個人情報の取り扱いについて」を必ずお読みください。
「個人情報の取り扱いについて」に同意いただいた場合は「上記にご同意の上 確認画面へ進む」のボタンをクリックしてください。
個人情報の取り扱いについて
皆さまが送付された個人情報はアットホーム(株)のサーバを経由し、お問い合わせ先の不動産会社にメールまたはFAXにて転送されるためアットホーム(株)にも保管されます。アットホーム(株)で保管された個人情報の取り扱いについては、【こちら】をご覧ください。
また、本画面でご記入いただいた個人情報は、お問い合わせ先の不動産会社でも保管します。 お問い合わせ先の不動産会社が保管する個人情報の取り扱いについては、不動産会社に直接お問い合わせください。
東京都知事免許(6)第76891号 |
|---|
- 交通:
- JR総武線/四ツ谷駅 徒歩2分
- 東京都新宿区四谷1丁目18-3 フランセビル2F
- TEL:
- 03-6228-4882
- FAX:
- 03-6736-0222
- 所属団体:
- (公社)全日本不動産協会会員(公社)首都圏不動産公正取引協議会加盟
取引態様:仲介  - 00277100
|
- スマートフォンで
この不動産会社を見る

|
- 提携サイト等より掲載されている物件情報につきましては、不動産会社詳細情報にリンクされていないものがあります。
- 物件に関するお問合せは、物件詳細ページの「情報提供会社」に表示されている不動産会社へ直接お願いいたします。
- 間取図は、現況を優先させていただきます。
- 映像は物件の一部を撮影したものです。物件の契約にあたっての最終判断はご自身の判断に基づいて行ってください。
- 仲介手数料について

アットホームは物件情報の適正化に努めております。
内容に誤りがある場合にはこちらへご連絡ください。