東京都豊島区雑司が谷2丁目(雑司が谷駅)の賃貸:物件詳細
交通 所在地 |
駅徒歩 |
賃料 管理費等 |
敷金/保証金 礼金 |
間取り 面積 |
物件種目 築年月 |
|
東京メトロ副都心線/雑司が谷
東京都豊島区雑司が谷2丁目
|
2分
|
14.7万円
15,000円
|
なし / なし
1ヶ月
|
2LDK
40.62m²
|
賃貸マンション
2026年3月
|
デザイナーズ、最上階、24時間換気システム、メゾネット、IT重説対応物件、保証人不要
|
|
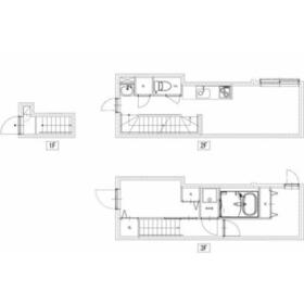
間取図
|
|
その他の画像
|
| 交通 | 東京メトロ副都心線 雑司が谷駅 徒歩2分 |
|---|
| その他の交通 | JR山手線 目白駅 徒歩13分 都電荒川線 学習院下駅 徒歩8分 |
| 所在地 |
東京都豊島区雑司が谷2丁目
|
| 物件種目 |
賃貸マンション |
| 賃料 |
14.7万円 |
管理費等 |
15,000円 |
| 敷金 / 保証金 |
なし / なし |
礼金 |
1ヶ月 |
| 敷引 |
- |
保証金償却 |
- |
| その他一時金 |
24時間メンテナンスサービス:16,500円、室内清掃費用:66,000円 |
保険等 |
要 2年 26,000円 |
| 維持費等 |
- |
クレジットカード決済 |
初期費用可 |
| 間取り |
2LDK |
専有面積 |
40.62m² |
| 築年月 |
2026年3月
|
階建 / 階 |
3階建 / メゾネット2階~3階部分 |
| 建物構造 |
鉄骨造 |
総戸数 |
- |
| 主要採光面 |
|
駐車場 |
- |
| バイク置き場 |
- |
駐輪場 |
- |
| 建物名・部屋番号 |
SOLUNA CRACIA ZOSHIGAYA 203 |
ペット |
-
|
| アピールポイント |
☆当社では下記サービスをおこなっております☆
・「費用面での交渉をお願いしたい」「審査が難しいかもしれない」「保証人がいない…」など、
どのようなご条件でも、ご相談可能です。
・クレジットカードでの初期費用分割払い可能です。
・お問合せいただいたお部屋以外もご条件をお伺いして漏れなくご紹介いたします。
・他不動産業者様がインターネットに掲載されている物件は、全てお調べし、好条件・最新情報でご紹介いたします。
・すでにお申込み手続きをされた物件でも、さらに良い条件でご紹介できる場合がございます。お気軽にお申し付け下さい。
こちらのお部屋以外でも気になるお部屋がございましたらお気軽にご相談ください
お客様のご来店を心よりお待ちしております |
| リフォーム履歴 |
- |
| リノベーション履歴 |
- |
| 備考 |
賃貸保証等:加入要(初回保証料:賃料+管理費(共益費)の60%~ 一年毎に更新料1.3万円 口座振替手数料330円)
管理形態/管理員の勤務形態:-/-
IT重説対応物件
☆☆部屋コレ新宿店では来店無しでもオンライン契約可能です☆☆
収納はシューズボックス・クロゼットなどが備え付けられているので、衣類や日用品の収納に重宝します。独立洗面台を採用しているので、歯ブラシやドライヤーなどをまとめて収納できます。知らない人が来た時でも玄関を開ける必要がなくなるモニター付きインターホンがあります。電流を流すことで鍋自体を発熱させるIHを備えているので、キッチン全体が熱くなりにくいです。追い焚き機能のついた浴室なので翌日でも暖かいお風呂に入れます。駅から徒歩2分というアクセス良好な駅近物件はいかがですか。お部屋の広さも41.28平米あり、快適な暮らしができます。利便性が高くお問い合わせの多い敷地内ゴミ置き場です。機能や設備でお住まいを選ぶなら、ぜひ新築の物件をどうぞ。こちらの物件はマンションです。1年未満解約の場合違約金1ヶ月有
|
| エネルギー消費性能 |
- |
| 断熱性能 |
- |
| 目安光熱費 |
- |
| バス・トイレ |
バス・トイレ別、追焚機能、洗面所独立、洗面所、洗面台、シャワー、温水洗浄便座、トイレ |
| キッチン |
システムキッチン、IHクッキングヒーター、2口コンロ |
| セキュリティー |
モニター付インターホン、ダブルロックドア |
| 収納 |
収納スペース、クローゼット、シューズボックス |
| 設備・サービス |
室内洗濯機置場、洗濯機置場、都市ガス給湯、給湯、全居室フローリング、フローリング、室内物干し、都市ガス、エアコン、冷房、ダウンライト、照明器具 |
| TV・通信 |
インターネット対応、インターネット使用料無料、BS端子 |
| その他 |
- |
| 契約期間 |
2年 |
現況 |
未完成 |
| 条件等 |
- |
入居可能時期 |
相談 |
| 更新料 |
新賃料 1ヶ月 |
物件番号 |
1152573822 |
| 情報公開日 |
2026年2月25日 |
次回更新予定日 |
2026年3月24日 |
| ケータイ用バーコード |
- スマートフォンでこの物件を見る
- スマートフォンからもこの物件をご覧になれます。
|
※「-」と表示されている項目については、情報提供会社にご確認ください。
| 周辺施設 |
私立学習院大学 |
| 距離 |
942m |
写真を見る |
| 周辺施設 |
みんなのイチバ豊島雑司が谷2丁目店 |
| 距離 |
119m |
写真を見る |
| 周辺施設 |
マルエツ プチ 雑司が谷二丁目店 |
| 距離 |
97m |
写真を見る |
| 周辺施設 |
よしや 目白高田店 |
| 距離 |
670m |
写真を見る |
| 周辺施設 |
セブンイレブン 豊島雑司が谷2丁目店 |
| 距離 |
482m |
写真を見る |
| 周辺施設 |
ファミリーマート 豊島南池袋三丁目店 |
| 距離 |
480m |
写真を見る |
| 周辺施設 |
ドラッグストアいわい早稲田店 |
| 距離 |
792m |
写真を見る |
ここから簡単にお問い合わせをすることができます。
(SSLでの暗号化での送信を希望されるお客さまは
こちら
よりお問い合わせください)
お問い合わせを行う前に
「個人情報の取り扱いについて」を必ずお読みください。
「個人情報の取り扱いについて」に同意いただいた場合は「上記にご同意の上 確認画面へ進む」のボタンをクリックしてください。
個人情報の取り扱いについて
皆さまが送付された個人情報はアットホーム(株)のサーバを経由し、お問い合わせ先の不動産会社にメールまたはFAXにて転送されるためアットホーム(株)にも保管されます。アットホーム(株)で保管された個人情報の取り扱いについては、【こちら】をご覧ください。
また、本画面でご記入いただいた個人情報は、お問い合わせ先の不動産会社でも保管します。 お問い合わせ先の不動産会社が保管する個人情報の取り扱いについては、不動産会社に直接お問い合わせください。
東京都知事免許(2)第102065号 |
|---|
- 交通:
- JR山手線/新宿駅 徒歩1分
- 東京都新宿区新宿3丁目35-6 新宿アウンビル 9階
- TEL:
- 03-6709-8205
- FAX:
- 03-6709-8206
- 所属団体:
- (公社)東京都宅地建物取引業協会会員(公社)首都圏不動産公正取引協議会加盟
取引態様:仲介  - 00265108
|
- スマートフォンで
この不動産会社を見る

|
- 提携サイト等より掲載されている物件情報につきましては、不動産会社詳細情報にリンクされていないものがあります。
- 物件に関するお問合せは、物件詳細ページの「情報提供会社」に表示されている不動産会社へ直接お願いいたします。
- 間取図は、現況を優先させていただきます。
- 映像は物件の一部を撮影したものです。物件の契約にあたっての最終判断はご自身の判断に基づいて行ってください。
- 仲介手数料について

アットホームは物件情報の適正化に努めております。
内容に誤りがある場合にはこちらへご連絡ください。