東京都杉並区高円寺南1丁目(中野駅)の賃貸:物件詳細
交通 所在地 |
駅徒歩 |
賃料 管理費等 |
敷金/保証金 礼金 |
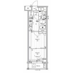
間取り 面積 |
物件種目 築年月 |
JR中央線/中野
東京都杉並区高円寺南1丁目
|
13分
|
13.45万円
15,000円
|
なし / なし
1ヶ月
|
2K
27.00m²
|
賃貸マンション
2022年5月(築3年6ヶ月)
|
ペット相談、南向き、二人入居可、24時間換気システム、保証人不要
|
間取図
|
外観
|
<
その他の画像
>
|
交通 | JR中央線 中野駅 徒歩13分 |
---|
その他の交通 | 東京メトロ丸ノ内線 東高円寺駅 徒歩6分 JR中央線 高円寺駅 徒歩15分 |
所在地 |
東京都杉並区高円寺南1丁目
|
物件種目 |
賃貸マンション |
賃料 |
13.45万円 |
管理費等 |
15,000円 |
敷金 / 保証金 |
なし / なし |
礼金 |
1ヶ月 |
敷引 |
- |
保証金償却 |
- |
その他一時金 |
入居中サポート:21,450円、室内抗菌代:17,600円、事務手数料:11,000円、鍵交換代等:22,000円~ |
保険等 |
要 2年 23,000円 |
維持費等 |
- |
間取り |
2K |
専有面積 |
27.00m² |
築年月 |
2022年5月(築3年6ヶ月)
|
階建 / 階 |
地上5階地下1階建 / 4階 |
建物構造 |
RC |
総戸数 |
- |
主要採光面 |
南 |
駐車場 |
無 |
バイク置き場 |
- |
駐輪場 |
- |
建物名・部屋番号 |
PREMIUM CUBE 東高円寺 402 |
ペット |
相談 |
リフォーム履歴 |
- |
リノベーション履歴 |
- |
備考 |
賃貸保証等:加入要(賃料総合計の50%)
管理形態/管理員の勤務形態:-/巡回
管理人巡回
荷物を注文する時に時間を気にしなくてよくなる宅配ボックスを共用部に備え付けております。室内設備は浴室乾燥機・洗面所独立など充実した設備を備え付けています。収納はクロゼット・シューズボックスなど豊富なので、衣類や履き物の整理がしやすく便利です。杉並区にある中央線中野周辺でお住まいをお探しなら、当社にお任せ下さい。当社はお客様に満足していただけるようしっかりとサポート致します。
こだわりポイント満載のPREMIUM CUBE 東高円寺。防犯対策もバッチリな管理人が巡回しているマンション。駐輪場付きのマンションです。暮らし快適物件、ネット回線有り、お家でパソコンが使えます。利便性の高い暮らしをするなら杉並区へのお引越をご検討してみてはいかがでしょうか?住み良い環境が整っているので、生活に困ることはありません。賃貸情報のことなら、当社にお任せ下さい。
|
エネルギー消費性能 |
- |
断熱性能 |
- |
目安光熱費 |
- |
バス・トイレ |
バス・トイレ別、浴室乾燥機、洗面所独立、洗面所、シャワー、温水洗浄便座、トイレ |
キッチン |
システムキッチン、2口コンロ、ガスコンロ可 |
セキュリティー |
モニター付オートロック、オートロック、モニター付インターホン |
収納 |
収納スペース、トランクルーム、クローゼット、シューズボックス |
設備・サービス |
室内洗濯機置場、洗濯機置場、都市ガス給湯、給湯、フローリング、都市ガス、エアコン |
TV・通信 |
インターネット対応、インターネット使用料無料、CS、BS端子 |
その他 |
宅配BOX、バルコニー、エレベーター |
契約期間 |
2年 |
現況 |
空家 |
条件等 |
- |
入居可能時期 |
相談 |
更新料 |
旧賃料 1.5ヶ月 |
物件番号 |
1152915216 |
情報公開日 |
2025年10月23日 |
次回更新予定日 |
2025年11月6日 |
ケータイ用バーコード |
- スマートフォンでこの物件を見る
- スマートフォンからもこの物件をご覧になれます。
|
※「-」と表示されている項目については、情報提供会社にご確認ください。
周辺施設 |
ファミリーマート 東高円寺駅北口店 |
距離 |
377m |
写真を見る |
周辺施設 |
miniピアゴ高円寺南1丁目店 |
距離 |
546m |
写真を見る |
周辺施設 |
ザ・ポケット |
距離 |
539m |
写真を見る |
周辺施設 |
まいばすけっと 中野3丁目店 |
距離 |
555m |
写真を見る |
周辺施設 |
ファミリーマート 中野中央五丁目店 |
距離 |
735m |
写真を見る |
周辺施設 |
セブンイレブン 中野桃園店 |
距離 |
644m |
写真を見る |
周辺施設 |
三徳新中野店 |
距離 |
870m |
写真を見る |
周辺施設 |
ANETIME FITNESS |
距離 |
885m |
写真を見る |
ここから簡単にお問い合わせをすることができます。
(SSLでの暗号化での送信を希望されるお客さまは
こちら
よりお問い合わせください)
お問い合わせを行う前に
「個人情報の取り扱いについて」を必ずお読みください。
「個人情報の取り扱いについて」に同意いただいた場合は「上記にご同意の上 確認画面へ進む」のボタンをクリックしてください。
個人情報の取り扱いについて
皆さまが送付された個人情報はアットホーム(株)のサーバを経由し、お問い合わせ先の不動産会社にメールまたはFAXにて転送されるためアットホーム(株)にも保管されます。アットホーム(株)で保管された個人情報の取り扱いについては、【こちら】をご覧ください。
また、本画面でご記入いただいた個人情報は、お問い合わせ先の不動産会社でも保管します。 お問い合わせ先の不動産会社が保管する個人情報の取り扱いについては、不動産会社に直接お問い合わせください。
東京都知事免許(2)第102526号 |
---|
- 交通:
- JR中央線/中野駅 徒歩1分
- 東京都中野区中野2丁目30-8 立川ビル2階
- TEL:
- 03-6454-1961
- FAX:
- 03-6454-1962
- 所属団体:
- (公社)東京都宅地建物取引業協会会員(公社)首都圏不動産公正取引協議会加盟
取引態様:仲介  - 00274171
|
- スマートフォンで
この不動産会社を見る

|
- 提携サイト等より掲載されている物件情報につきましては、不動産会社詳細情報にリンクされていないものがあります。
- 物件に関するお問合せは、物件詳細ページの「情報提供会社」に表示されている不動産会社へ直接お願いいたします。
- 間取図は、現況を優先させていただきます。
- 映像は物件の一部を撮影したものです。物件の契約にあたっての最終判断はご自身の判断に基づいて行ってください。
- 仲介手数料について

アットホームは物件情報の適正化に努めております。
内容に誤りがある場合にはこちらへご連絡ください。