東京都杉並区高円寺北2丁目(高円寺駅)の賃貸:物件詳細
交通 所在地 |
駅徒歩 |
賃料 管理費等 |
敷金/保証金 礼金 |
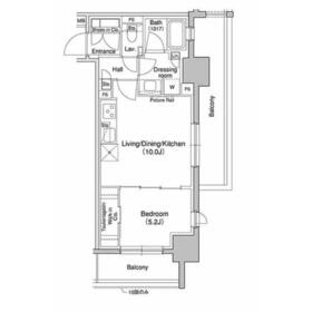
間取り 面積 |
物件種目 築年月 |
|
JR中央線/高円寺
東京都杉並区高円寺北2丁目
|
2分
|
22.1万円
15,000円
|
1ヶ月 / なし
1ヶ月
|
1LDK
40.56m²
|
賃貸マンション
2023年7月(築2年4ヶ月)
|
ペット相談、角部屋、最上階、南向き、二人入居可、保証人不要
|
|
間取図
|
外観
|
<
その他の画像
>
|
| 交通 | JR中央線 高円寺駅 徒歩2分 |
|---|
| その他の交通 | 東京メトロ丸ノ内線 新高円寺駅 徒歩15分 JR中央線 中野駅 徒歩20分 |
| 所在地 |
東京都杉並区高円寺北2丁目
|
| 物件種目 |
賃貸マンション |
| 賃料 |
22.1万円 |
管理費等 |
15,000円 |
| 敷金 / 保証金 |
1ヶ月 / なし |
礼金 |
1ヶ月 |
| 敷引 |
- |
保証金償却 |
- |
| その他一時金 |
24時間サポート:16,500円、鍵交換代等:33,000円~ |
保険等 |
要 |
| 維持費等 |
- |
| 間取り |
1LDK(LDK10、洋5.2) |
専有面積 |
40.56m² |
| 築年月 |
2023年7月(築2年4ヶ月)
|
階建 / 階 |
13階建 / 13階 |
| 建物構造 |
RC |
総戸数 |
- |
| 主要採光面 |
南 |
駐車場 |
- |
| バイク置き場 |
- |
駐輪場 |
- |
| 建物名・部屋番号 |
ブリリアンクラス高円寺 1304 |
ペット |
小型犬可・ 猫可 |
| リフォーム履歴 |
- |
| リノベーション履歴 |
- |
| 備考 |
賃貸保証等:加入要(初回保証料総賃料40%)
管理形態/管理員の勤務形態:-/-
収納はシューズボックス・ウォークインクロゼットなど豊富なので、衣類や履き物の整理がしやすく便利です。セキュリティ面は、オートロック・TVインターホンなど充実しているので、防犯対策もばっちりです。室内設備は浴室乾燥機・洗面所独立など大変充実しております。1LDKの物件です。お部屋探しをするなら、当社にご連絡下さい。注目を集めている杉並区エリアや中央線高円寺付近の賃貸情報を多数取り揃えております。
新生活を失敗せず、スタートさせたいならこちらの「ブリリアンクラス高円寺」はいかがでしょうか。杉並区エリアと中央線高円寺付近のお部屋探しなら当社へ。あなたからのお問い合せをスタッフ一同お待ちしております。
|
| エネルギー消費性能 |
- |
| 断熱性能 |
- |
| 目安光熱費 |
- |
| バス・トイレ |
バス・トイレ別、浴室乾燥機、追焚機能、洗面所独立、洗面所、洗面台、シャワー、温水洗浄便座、トイレ |
| キッチン |
システムキッチン、3口以上コンロ、ガスコンロ可 |
| セキュリティー |
モニター付オートロック、オートロック、モニター付インターホン |
| 収納 |
ウォークインクローゼット、収納スペース、クローゼット、シューズボックス |
| 設備・サービス |
室内洗濯機置場、洗濯機置場、フローリング、都市ガス、エアコン |
| TV・通信 |
インターネット対応 |
| その他 |
宅配BOX、バルコニー、エレベーター |
| 契約期間 |
2年 |
現況 |
居住中 |
| 条件等 |
- |
入居可能時期 |
相談 |
| 更新料 |
新賃料 1ヶ月 |
物件番号 |
1152947016 |
| 情報公開日 |
2025年10月23日 |
次回更新予定日 |
2025年11月6日 |
| ケータイ用バーコード |
- スマートフォンでこの物件を見る
- スマートフォンからもこの物件をご覧になれます。
|
※「-」と表示されている項目については、情報提供会社にご確認ください。
| 周辺施設 |
高円寺東急ストア |
| 距離 |
205m |
写真を見る |
| 周辺施設 |
マルエツ プチ 大和町店 |
| 距離 |
527m |
写真を見る |
| 周辺施設 |
まいばすけっと高円寺大和陸橋店 |
| 距離 |
702m |
写真を見る |
| 周辺施設 |
セブンイレブン 杉並高円寺北2丁目店 |
| 距離 |
125m |
写真を見る |
| 周辺施設 |
セブンイレブン 高円寺駅東店 |
| 距離 |
219m |
写真を見る |
| 周辺施設 |
ファミリーマート 高円寺南店 |
| 距離 |
233m |
写真を見る |
ここから簡単にお問い合わせをすることができます。
(SSLでの暗号化での送信を希望されるお客さまは
こちら
よりお問い合わせください)
お問い合わせを行う前に
「個人情報の取り扱いについて」を必ずお読みください。
「個人情報の取り扱いについて」に同意いただいた場合は「上記にご同意の上 確認画面へ進む」のボタンをクリックしてください。
個人情報の取り扱いについて
皆さまが送付された個人情報はアットホーム(株)のサーバを経由し、お問い合わせ先の不動産会社にメールまたはFAXにて転送されるためアットホーム(株)にも保管されます。アットホーム(株)で保管された個人情報の取り扱いについては、【こちら】をご覧ください。
また、本画面でご記入いただいた個人情報は、お問い合わせ先の不動産会社でも保管します。 お問い合わせ先の不動産会社が保管する個人情報の取り扱いについては、不動産会社に直接お問い合わせください。
東京都知事免許(2)第102526号 |
|---|
- 交通:
- JR中央線/中野駅 徒歩1分
- 東京都中野区中野2丁目30-8 立川ビル2階
- TEL:
- 03-6454-1961
- FAX:
- 03-6454-1962
- 所属団体:
- (公社)東京都宅地建物取引業協会会員(公社)首都圏不動産公正取引協議会加盟
取引態様:仲介  - 00274171
|
- スマートフォンで
この不動産会社を見る

|
- 提携サイト等より掲載されている物件情報につきましては、不動産会社詳細情報にリンクされていないものがあります。
- 物件に関するお問合せは、物件詳細ページの「情報提供会社」に表示されている不動産会社へ直接お願いいたします。
- 間取図は、現況を優先させていただきます。
- 映像は物件の一部を撮影したものです。物件の契約にあたっての最終判断はご自身の判断に基づいて行ってください。
- 仲介手数料について

アットホームは物件情報の適正化に努めております。
内容に誤りがある場合にはこちらへご連絡ください。