大阪府大阪市中央区内淡路町1丁目(天満橋駅)の賃貸:物件詳細
交通 所在地 |
駅徒歩 |
賃料 管理費等 |
敷金/保証金 礼金 |
間取り 面積 |
物件種目 築年月 |
地下鉄谷町線/天満橋
大阪府大阪市中央区内淡路町1丁目
|
5分
|
7.36万円
8,490円
|
なし / なし
10万円
|
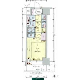
1K
22.33m²
|
賃貸マンション
2020年3月(築5年8ヶ月)
|
デザイナーズ、最上階、24時間換気システム、IT重説対応物件
|
間取図
|
外観
|
<
その他の画像
>
|
交通 | 地下鉄谷町線 天満橋駅 徒歩5分 |
---|
その他の交通 | 地下鉄中央線 堺筋本町駅 徒歩16分 地下鉄堺筋線 北浜駅 徒歩17分 |
所在地 |
大阪府大阪市中央区内淡路町1丁目
|
物件種目 |
賃貸マンション |
賃料 |
7.36万円 |
管理費等 |
8,490円 |
敷金 / 保証金 |
なし / なし |
礼金 |
10万円 |
敷引 |
- |
保証金償却 |
- |
その他一時金 |
室内清掃費用:35,000円、鍵交換代等:29,700円~ |
保険等 |
要 |
維持費等 |
プレサポ安心24:990円/月 |
クレジットカード決済 |
初期費用可 |
間取り |
1K(洋6.3) |
専有面積 |
22.33m² |
築年月 |
2020年3月(築5年8ヶ月)
|
階建 / 階 |
15階建 / 11階 |
建物構造 |
RC |
総戸数 |
- |
主要採光面 |
東 |
駐車場 |
近有 35,000円/月 |
バイク置き場 |
- |
駐輪場 |
- |
建物名・部屋番号 |
プレサンス大手前ピリオド |
ペット |
-
|
アピールポイント |
当社にてご契約の際は初期費用分割払い可能です!お客様のご都合に合わせて、無理なく新生活をスタートできるようサポートいたします♪お気軽にお問い合わせください! |
リフォーム履歴 |
- |
リノベーション履歴 |
- |
備考 |
賃貸保証等:加入要(ギャランティ 初回 50% 月 1.5% セーフティ 初回 50% 年 10,000円)
管理形態/管理員の勤務形態:-/-
IT重説対応物件
○ 退去時
ルームクリーニング代 退去時 44,000円(税込)
エアコン洗浄代 退去時 11,000円(税込)
・1年未満の解約は違約金1か月
室内設備は洗面化粧台・浴室乾燥機など大変充実しております。宅配ボックスがあればいつでも荷物を受け取ることができるので、配達時間に拘束されることなく生活することができます。セキュリティ面は、TVインターホン・オートロックなど充実しているので、防犯対策もばっちりです。収納はクロゼット・シューズボックスなど豊富なので、衣類や履き物の整理がしやすく便利です。駐車場料金が月額35000円のマンションです。動画配信サービスで映画やドラマ・アニメを視聴するのが趣味な方、インターネットの使用料を気にする必要がないので思う存分楽しんでいただけます。2口コンロが付いているので、異なる工程も同時に進められて時間の短縮になります。防犯カメラが設置されているため犯罪への抑止力となり、安全性が高くなります。駅まで歩いてアクセスできる、徒歩5分の距離に立地する物件です。こちらは賃料7.351万円の物件です。お引越しは荷物が多くて大変ですが、照明付きなら荷物が減りま
|
エネルギー消費性能 |
- |
断熱性能 |
- |
目安光熱費 |
- |
バス・トイレ |
バス・トイレ別、浴室乾燥機、シャワー付洗面化粧台、洗面所独立、洗面所、洗面台、シャワー、温水洗浄便座、トイレ |
キッチン |
システムキッチン、2口コンロ、ガスコンロ可 |
セキュリティー |
モニター付オートロック、オートロック、モニター付インターホン、ディンプルキー、ダブルロックドア、防犯カメラ |
収納 |
収納スペース、クローゼット、シューズボックス |
設備・サービス |
室内洗濯機置場、冷蔵庫、洗濯機置場、全居室フローリング、フローリング、都市ガス、エアコン、家具付き、家電付、照明器具、ベッド |
TV・通信 |
インターネット対応、インターネット使用料無料、ケーブルTV、BS端子 |
その他 |
宅配BOX、エレベーター2基以上、バルコニー、エレベーター |
契約期間 |
2年 |
現況 |
空家 |
条件等 |
- |
入居可能時期 |
指定有り2025年10月28日 |
更新料 |
- |
物件番号 |
1152977016 |
情報公開日 |
2025年10月23日 |
次回更新予定日 |
2025年11月6日 |
ケータイ用バーコード |
- スマートフォンでこの物件を見る
- スマートフォンからもこの物件をご覧になれます。
|
※「-」と表示されている項目については、情報提供会社にご確認ください。
周辺施設 |
KOHYO(コーヨー) 内本町店 |
距離 |
498m |
写真を見る |
周辺施設 |
ライフ 天神橋店 |
距離 |
530m |
写真を見る |
周辺施設 |
成城石井 京阪シティモール店 |
距離 |
612m |
写真を見る |
周辺施設 |
ドン・キホーテ法円坂店 |
距離 |
1257m |
写真を見る |
周辺施設 |
セブンイレブン 大阪大手通1丁目店 |
距離 |
95m |
写真を見る |
周辺施設 |
ファミリーマート 内平野町店 |
距離 |
88m |
写真を見る |
周辺施設 |
ザ・ダイソー DAISO 船場センタービル1号館店 |
距離 |
1111m |
写真を見る |
周辺施設 |
バルーンショップ FLAP |
距離 |
949m |
写真を見る |
ここから簡単にお問い合わせをすることができます。
(SSLでの暗号化での送信を希望されるお客さまは
こちら
よりお問い合わせください)
お問い合わせを行う前に
「個人情報の取り扱いについて」を必ずお読みください。
「個人情報の取り扱いについて」に同意いただいた場合は「上記にご同意の上 確認画面へ進む」のボタンをクリックしてください。
個人情報の取り扱いについて
皆さまが送付された個人情報はアットホーム(株)のサーバを経由し、お問い合わせ先の不動産会社にメールまたはFAXにて転送されるためアットホーム(株)にも保管されます。アットホーム(株)で保管された個人情報の取り扱いについては、【こちら】をご覧ください。
また、本画面でご記入いただいた個人情報は、お問い合わせ先の不動産会社でも保管します。 お問い合わせ先の不動産会社が保管する個人情報の取り扱いについては、不動産会社に直接お問い合わせください。
国土交通大臣免許(8)第4288号 |
---|
- 交通:
- 南海高野線/難波駅 徒歩3分
- 大阪府大阪市中央区日本橋2丁目7-12
- TEL:
- 06-6644-5573
- FAX:
- 06-6644-4173
- 所属団体:
- (一社)大阪府宅地建物取引業協会会員不動産公正取引協議会加盟
取引態様:仲介  - 50019585
|
- スマートフォンで
この不動産会社を見る

|
- 提携サイト等より掲載されている物件情報につきましては、不動産会社詳細情報にリンクされていないものがあります。
- 物件に関するお問合せは、物件詳細ページの「情報提供会社」に表示されている不動産会社へ直接お願いいたします。
- 間取図は、現況を優先させていただきます。
- 映像は物件の一部を撮影したものです。物件の契約にあたっての最終判断はご自身の判断に基づいて行ってください。
- 仲介手数料について

アットホームは物件情報の適正化に努めております。
内容に誤りがある場合にはこちらへご連絡ください。