大阪府大阪市北区菅原町(南森町駅)の賃貸:物件詳細
交通 所在地 |
駅徒歩 |
賃料 管理費等 |
敷金/保証金 礼金 |
間取り 面積 |
物件種目 築年月 |
|
地下鉄谷町線/南森町
大阪府大阪市北区菅原町
|
5分
|
14万円
20,000円
|
なし / なし
32万円
|
1LDK
40.51m²
|
賃貸マンション
2003年10月(築22年6ヶ月)
|
デザイナーズ、分譲タイプ、常時ゴミ出し可能、角部屋、高齢者相談、二人入居可、外観タイル張り、IT重説対応物件、保証人不要
|
|
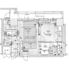
間取図
ジーニス大阪WEST 開放感のある間取り
|
外観
ジーニス大阪WEST 外観
|
<
その他の画像
>
|
| 交通 | 地下鉄谷町線 南森町駅 徒歩5分 |
|---|
| その他の交通 | JR東西線 大阪天満宮駅 徒歩7分 地下鉄堺筋線 北浜駅 徒歩5分 |
| 所在地 |
大阪府大阪市北区菅原町
|
| 物件種目 |
賃貸マンション |
| 賃料 |
14万円 |
管理費等 |
20,000円 |
| 敷金 / 保証金 |
なし / なし |
礼金 |
32万円 |
| 敷引 |
- |
保証金償却 |
- |
| その他一時金 |
なし |
保険等 |
要 |
| 維持費等 |
- |
クレジットカード決済 |
初期費用可 |
| 間取り |
1LDK(LDK11.2、洋4.6) |
専有面積 |
40.51m² |
| 築年月 |
2003年10月(築22年6ヶ月)
|
階建 / 階 |
39階建 / 26階 |
| 建物構造 |
RC |
総戸数 |
- |
| 主要採光面 |
北 |
駐車場 |
近有 33,000円/月 |
| バイク置き場 |
有 |
駐輪場 |
有 |
| 建物名・部屋番号 |
ジーニス大阪WEST |
ペット |
-
|
| アピールポイント |
セキュリティ面は、TVインターホン・オートロックなどを設置しているので安全面でも優れております。収納はクロゼット・シューズボックスなどが備え付けられているので、衣類や日用品の収納に重宝します。室内設備は洗面化粧台・浴室乾燥機などが揃っているので、快適に過ごしやすいお部屋になります。共用部には宅配ボックス・ゴミ出し24時間OKなどが揃っております。角部屋は2面に窓が配置されているため、複数の方角から日光を採り入れることができます。暑い夏、寒い冬には必須のエアコンが付いています。このマンションは駐輪場付きの物件です。お風呂の湯が冷めてしまっても追焚機能があるので安心。敷地内にはごみ置き場も設置されています。徒歩5分に駅がある物件です。こちらの物件はマンションです。 |
| リフォーム履歴 |
- |
| リノベーション履歴 |
- |
| 備考 |
賃貸保証等:加入要(都度お問合せくださいませ。)
管理形態/管理員の勤務形態:-/日勤
IT重説対応物件、外壁コンクリート、管理人日勤
当物件ご案内の際、現地でのお待ち合わせ等も可能です。
お問い合わせ頂いた物件は勿論のこと、インターネットに掲載していないオススメ物件多数ございます。
当店では、PayPayアプリや全物件ポイント・マイルが貯まるクレジットカード決済が可能です。 また、分割支払いも可能です。お気軽にお申し付け下さいませ。
アフログループは大阪市内を中心に9店舗を展開している地域密着の不動産会社です。
弊社ならではの、インターネットに掲載していないおすすめの物件も多数ございます。
大阪府内全域のお部屋探しは、当店にお任せください。
不動産経験の豊富な社員が、責任を持って対応させていただきます。
また、賃貸・売買双方を専門に取り扱っており、幅広い視野でお客様にご提案させて頂きます。
それぞれのメリット・デメリットをご説明させて頂き最良のご提案をさせて頂きます。
お客さまの想像される1歩先を行き、常に感動を与え続けていけるようなサービスに取り組んでおります。
そして、弊社の経営理念でもあります、『アフターフォロー』には特に力を入れております、ご契約後もしっかりとサポートさせて頂きます
|
| エネルギー消費性能 |
- |
| 断熱性能 |
- |
| 目安光熱費 |
- |
| バス・トイレ |
バス・トイレ別、浴室乾燥機、追焚機能、シャワー付洗面化粧台、洗面所独立、洗面所、温水洗浄便座、トイレ |
| キッチン |
システムキッチン、2口コンロ、ガスコンロ可、グリル |
| セキュリティー |
モニター付オートロック、オートロック、モニター付インターホン、ディンプルキー、ダブルロックドア、防犯カメラ |
| 収納 |
全居室収納、収納スペース、クローゼット、シューズボックス |
| 設備・サービス |
床暖房、室内洗濯機置場、洗濯機置場、都市ガス給湯、給湯、全居室フローリング、フローリング、都市ガス、暖房、冷房 |
| TV・通信 |
インターネット対応、光ファイバー、CS、BS端子 |
| その他 |
宅配BOX、バイク置き場、エレベーター2基以上、バルコニー、駐輪場、エレベーター |
| 契約期間 |
2年 |
現況 |
空家 |
| 条件等 |
- |
入居可能時期 |
即時 |
| 更新料 |
- |
物件番号 |
1152995222 |
| 情報公開日 |
2026年2月26日 |
次回更新予定日 |
2026年3月26日 |
| ケータイ用バーコード |
- スマートフォンでこの物件を見る
- スマートフォンからもこの物件をご覧になれます。
|
※「-」と表示されている項目については、情報提供会社にご確認ください。
| 周辺施設 |
セブンイレブン 大阪天神橋1丁目店 |
| 距離 |
220m |
写真を見る |
| 周辺施設 |
ローソン 江戸堀一丁目店 |
| 距離 |
1500m |
写真を見る |
| 周辺施設 |
辻学園栄養専門学校 |
| 距離 |
140m |
写真を見る |
| 周辺施設 |
スギ薬局南森町店 |
| 距離 |
600m |
写真を見る |
| 周辺施設 |
大手前病院 |
| 距離 |
1300m |
写真を見る |
| 周辺施設 |
大阪西天満郵便局 |
| 距離 |
300m |
写真を見る |
ここから簡単にお問い合わせをすることができます。
(SSLでの暗号化での送信を希望されるお客さまは
こちら
よりお問い合わせください)
お問い合わせを行う前に
「個人情報の取り扱いについて」を必ずお読みください。
「個人情報の取り扱いについて」に同意いただいた場合は「上記にご同意の上 確認画面へ進む」のボタンをクリックしてください。
個人情報の取り扱いについて
皆さまが送付された個人情報はアットホーム(株)のサーバを経由し、お問い合わせ先の不動産会社にメールまたはFAXにて転送されるためアットホーム(株)にも保管されます。アットホーム(株)で保管された個人情報の取り扱いについては、【こちら】をご覧ください。
また、本画面でご記入いただいた個人情報は、お問い合わせ先の不動産会社でも保管します。 お問い合わせ先の不動産会社が保管する個人情報の取り扱いについては、不動産会社に直接お問い合わせください。
大阪府知事免許(3)第58557号 |
|---|
- 交通:
- 地下鉄御堂筋線/新大阪駅 徒歩2分
- 大阪府大阪市淀川区西中島7丁目6-12
- TEL:
- 06-6195-4440
- FAX:
- 06-6195-4450
- 所属団体:
- (公社)全日本不動産協会会員(公社)近畿地区不動産公正取引協議会加盟
取引態様:仲介  - 50111451
|
- スマートフォンで
この不動産会社を見る

|
- 提携サイト等より掲載されている物件情報につきましては、不動産会社詳細情報にリンクされていないものがあります。
- 物件に関するお問合せは、物件詳細ページの「情報提供会社」に表示されている不動産会社へ直接お願いいたします。
- 間取図は、現況を優先させていただきます。
- 映像は物件の一部を撮影したものです。物件の契約にあたっての最終判断はご自身の判断に基づいて行ってください。
- 仲介手数料について

アットホームは物件情報の適正化に努めております。
内容に誤りがある場合にはこちらへご連絡ください。