神奈川県小田原市扇町3丁目(足柄駅)の賃貸:物件詳細
交通 所在地 |
駅徒歩 |
賃料 管理費等 |
敷金/保証金 礼金 |
間取り 面積 |
物件種目 築年月 |
|
小田急小田原線/足柄
神奈川県小田原市扇町3丁目
|
2分
|
5.9万円
3,500円
|
なし / なし
なし
|
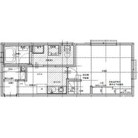
1SK
26.08m²
|
賃貸アパート
2022年3月(築3年10ヶ月)
|
24時間換気システム
|
|
間取図
|
外観
|
<
その他の画像
>
|
| 交通 | 小田急小田原線 足柄駅 徒歩2分 |
|---|
| その他の交通 | JR東海道本線 小田原駅 徒歩25分 |
| 所在地 |
神奈川県小田原市扇町3丁目
|
| 物件種目 |
賃貸アパート |
| 賃料 |
5.9万円 |
管理費等 |
3,500円 |
| 敷金 / 保証金 |
なし / なし |
礼金 |
なし |
| 敷引 |
- |
保証金償却 |
- |
| その他一時金 |
ハウスクリーニング費用:49,500円、エアコンクリーニング代金:13,200円、カギ交換代:24,200円 |
保険等 |
要 2年 18,000円 |
| 維持費等 |
- |
| 間取り |
1SK(洋7 K2 S1.5) |
専有面積 |
26.08m² |
| 築年月 |
2022年3月(築3年10ヶ月)
|
階建 / 階 |
2階建 / 2階 |
| 建物構造 |
木造 |
総戸数 |
8戸 |
| 主要採光面 |
西 |
駐車場 |
近有 6,000円/月 |
| バイク置き場 |
- |
駐輪場 |
- |
| 建物名・部屋番号 |
Base扇町 205 |
ペット |
-
|
| リフォーム履歴 |
- |
| リノベーション履歴 |
- |
| 備考 |
賃貸保証等:加入要(エルズサポート株式会社 初回保証料は月額賃料等の50%)
管理形態/管理員の勤務形態:-/-
2×4工法
小田急線足柄駅より徒歩2分の築浅アパート!
|
| エネルギー消費性能 |
- |
| 断熱性能 |
- |
| 目安光熱費 |
- |
| バス・トイレ |
バス・トイレ別、浴室乾燥機、オートバス、追焚機能、シャワー付洗面化粧台、洗面台 |
| キッチン |
システムキッチン、IHクッキングヒーター、2口コンロ |
| セキュリティー |
モニター付インターホン、ダブルロックドア、防犯カメラ |
| 収納 |
- |
| 設備・サービス |
室内洗濯機置場、全居室フローリング、フローリング、プロパンガス、エアコン |
| TV・通信 |
インターネット使用料無料、光ファイバー |
| その他 |
- |
| 契約期間 |
2年 |
現況 |
空家 |
| 条件等 |
定期借家 |
入居可能時期 |
即時 |
| 仲介手数料 |
6.49万円 |
|
|
| 更新料 |
新賃料 0.5ヶ月 |
物件番号 |
1153352904 |
| 情報公開日 |
2025年6月7日 |
次回更新予定日 |
2025年12月13日 |
| ケータイ用バーコード |
- スマートフォンでこの物件を見る
- スマートフォンからもこの物件をご覧になれます。
|
※「-」と表示されている項目については、情報提供会社にご確認ください。
ここから簡単にお問い合わせをすることができます。
(SSLでの暗号化での送信を希望されるお客さまは
こちら
よりお問い合わせください)
お問い合わせを行う前に
「個人情報の取り扱いについて」を必ずお読みください。
「個人情報の取り扱いについて」に同意いただいた場合は「上記にご同意の上 確認画面へ進む」のボタンをクリックしてください。
個人情報の取り扱いについて
皆さまが送付された個人情報はアットホーム(株)のサーバを経由し、お問い合わせ先の不動産会社にメールまたはFAXにて転送されるためアットホーム(株)にも保管されます。アットホーム(株)で保管された個人情報の取り扱いについては、【こちら】をご覧ください。
また、本画面でご記入いただいた個人情報は、お問い合わせ先の不動産会社でも保管します。 お問い合わせ先の不動産会社が保管する個人情報の取り扱いについては、不動産会社に直接お問い合わせください。
神奈川県知事免許(11)第12904号 |
|---|
- 交通:
- JR東海道本線/小田原駅 徒歩1分
- 神奈川県小田原市栄町1丁目2-1 小田原駅前ビル8F
- TEL:
- 0465-21-0701
- FAX:
- 0465-21-0715
- 所属団体:
- (公社)神奈川県宅地建物取引業協会会員(公社)首都圏不動産公正取引協議会加盟
取引態様:仲介  - 00220840
|
- スマートフォンで
この不動産会社を見る

|
- 提携サイト等より掲載されている物件情報につきましては、不動産会社詳細情報にリンクされていないものがあります。
- 物件に関するお問合せは、物件詳細ページの「情報提供会社」に表示されている不動産会社へ直接お願いいたします。
- 間取図は、現況を優先させていただきます。
- 映像は物件の一部を撮影したものです。物件の契約にあたっての最終判断はご自身の判断に基づいて行ってください。
- 仲介手数料について

アットホームは物件情報の適正化に努めております。
内容に誤りがある場合にはこちらへご連絡ください。