大阪府茨木市三島町(JR総持寺駅)の賃貸:物件詳細
交通 所在地 |
駅徒歩 |
賃料 管理費等 |
敷金/保証金 礼金 |
間取り 面積 |
物件種目 築年月 |
JR東海道本線/JR総持寺
大阪府茨木市三島町
|
7分
|
8.1万円
6,000円
|
なし / なし
2ヶ月
|
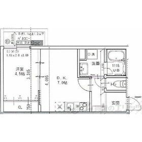
1LDK
31.67m²
|
賃貸アパート
2025年10月
|
角部屋、最上階、二人入居可、保証人不要
|
間取図
|
外観
|
<
その他の画像
>
|
交通 | JR東海道本線 JR総持寺駅 徒歩7分 |
---|
その他の交通 | 阪急京都線 総持寺駅 徒歩13分 阪急京都線 富田駅 徒歩19分 |
所在地 |
大阪府茨木市三島町
|
物件種目 |
賃貸アパート |
賃料 |
8.1万円 |
管理費等 |
6,000円 |
敷金 / 保証金 |
なし / なし |
礼金 |
2ヶ月 |
敷引 |
- |
保証金償却 |
- |
その他一時金 |
室内清掃費用:38,500円、契約事務手数料 契約時:22,000円、鍵交換代等:33,000円~ |
保険等 |
要 2年 18,000円 |
維持費等 |
駐輪場利用料:330円/月、バイク置場利用料:3,300円/月 |
クレジットカード決済 |
初期費用可 |
間取り |
1LDK |
専有面積 |
31.67m² |
築年月 |
2025年10月
|
階建 / 階 |
3階建 / 3階 |
建物構造 |
木造 |
総戸数 |
15戸 |
主要採光面 |
北 |
駐車場 |
有 11,000円/月 |
バイク置き場 |
有 3,300円/月 |
駐輪場 |
有 330円/月 |
建物名・部屋番号 |
エテルナコート総持寺 |
ペット |
-
|
アピールポイント |
駅徒歩10分以内なので、通勤通学やお買い物に大変便利です。 |
リフォーム履歴 |
- |
リノベーション履歴 |
- |
備考 |
賃貸保証等:加入要(初回保証料:総賃料の50% 引落手数料:550円 年間保証料:12,000円)
管理形態/管理員の勤務形態:-/-
駅徒歩10分以内なので、通勤通学やお買い物に大変便利です。
|
エネルギー消費性能 |
- |
断熱性能 |
- |
目安光熱費 |
- |
バス・トイレ |
バス・トイレ別、浴室乾燥機、追焚機能、シャワー付洗面化粧台、洗面所独立、温水洗浄便座、トイレ |
キッチン |
IHクッキングヒーター、2口コンロ |
セキュリティー |
オートロック、モニター付インターホン、防犯カメラ |
収納 |
シューズボックス |
設備・サービス |
室内洗濯機置場、都市ガス給湯、給湯、フローリング、都市ガス、エアコン |
TV・通信 |
インターネット対応、インターネット使用料無料、ケーブルTV |
その他 |
宅配BOX、バイク置き場、バルコニー、駐輪場 |
契約期間 |
2年 |
現況 |
空家 |
条件等 |
- |
入居可能時期 |
即時 |
仲介手数料 |
0.55ヶ月 |
|
|
更新料 |
なし |
物件番号 |
1153401315 |
情報公開日 |
2025年10月16日 |
次回更新予定日 |
2025年11月4日 |
ケータイ用バーコード |
- スマートフォンでこの物件を見る
- スマートフォンからもこの物件をご覧になれます。
|
※「-」と表示されている項目については、情報提供会社にご確認ください。
周辺施設 |
ファミリーマート茨木三島中学校南店 |
距離 |
800m |
写真を見る |
周辺施設 |
関西スーパー 宮田店 |
距離 |
1210m |
写真を見る |
周辺施設 |
総持寺駅(阪急 京都本線) |
距離 |
830m |
写真を見る |
ここから簡単にお問い合わせをすることができます。
(SSLでの暗号化での送信を希望されるお客さまは
こちら
よりお問い合わせください)
お問い合わせを行う前に
「個人情報の取り扱いについて」を必ずお読みください。
「個人情報の取り扱いについて」に同意いただいた場合は「上記にご同意の上 確認画面へ進む」のボタンをクリックしてください。
個人情報の取り扱いについて
皆さまが送付された個人情報はアットホーム(株)のサーバを経由し、お問い合わせ先の不動産会社にメールまたはFAXにて転送されるためアットホーム(株)にも保管されます。アットホーム(株)で保管された個人情報の取り扱いについては、【こちら】をご覧ください。
また、本画面でご記入いただいた個人情報は、お問い合わせ先の不動産会社でも保管します。 お問い合わせ先の不動産会社が保管する個人情報の取り扱いについては、不動産会社に直接お問い合わせください。
国土交通大臣免許(7)第5206号 |
---|
- 交通:
- JR東海道本線/茨木駅 徒歩1分
- 大阪府茨木市西駅前町2番8号
- TEL:
- 0120-958-133
- FAX:
- 072-631-3956
- 所属団体:
- (一社)大阪府宅地建物取引業協会会員(公社)近畿地区不動産公正取引協議会加盟
取引態様:仲介  - 50102800
|
- スマートフォンで
この不動産会社を見る

|
- 提携サイト等より掲載されている物件情報につきましては、不動産会社詳細情報にリンクされていないものがあります。
- 物件に関するお問合せは、物件詳細ページの「情報提供会社」に表示されている不動産会社へ直接お願いいたします。
- 間取図は、現況を優先させていただきます。
- 映像は物件の一部を撮影したものです。物件の契約にあたっての最終判断はご自身の判断に基づいて行ってください。
- 仲介手数料について

アットホームは物件情報の適正化に努めております。
内容に誤りがある場合にはこちらへご連絡ください。