大阪府大阪市住吉区清水丘1丁目(安立町駅)の賃貸:物件詳細
交通 所在地 |
駅徒歩 |
賃料 管理費等 |
敷金/保証金 礼金 |
間取り 面積 |
物件種目 築年月 |
|
阪堺電気軌道阪堺線/安立町
大阪府大阪市住吉区清水丘1丁目
|
2分
|
7.15万円
5,100円
|
なし / なし
7万円
|
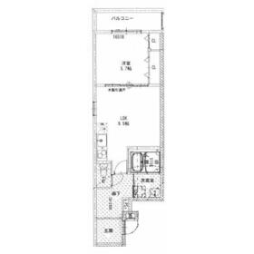
1LDK
40.12m²
|
賃貸アパート
2022年9月(築3年6ヶ月)
|
角部屋、高齢者相談、24時間換気システム、IT重説対応物件
|
|
間取図
|
外観
|
<
その他の画像
>
|
| 交通 | 阪堺電気軌道阪堺線 安立町駅 徒歩2分 |
|---|
| その他の交通 | 南海本線 住ノ江駅 徒歩6分 阪堺電気軌道阪堺線 我孫子道駅 徒歩7分 |
| 所在地 |
大阪府大阪市住吉区清水丘1丁目
|
| 物件種目 |
賃貸アパート |
| 賃料 |
7.15万円 |
管理費等 |
5,100円 |
| 敷金 / 保証金 |
なし / なし |
礼金 |
7万円 |
| 敷引 |
- |
保証金償却 |
- |
| その他一時金 |
室内清掃費用:33,000円、鍵交換代等:11,000円~ |
保険等 |
要 2年 15,000円 |
| 維持費等 |
- |
クレジットカード決済 |
初期費用可 |
| 間取り |
1LDK(LDK9.5、洋5.7) |
専有面積 |
40.12m² |
| 築年月 |
2022年9月(築3年6ヶ月)
|
階建 / 階 |
3階建 / 1階 |
| 建物構造 |
木造 |
総戸数 |
- |
| 主要採光面 |
北 |
駐車場 |
- |
| バイク置き場 |
- |
駐輪場 |
有 |
| 建物名・部屋番号 |
Casa d’oro清水丘 |
ペット |
-
|
| アピールポイント |
はじめまして。「ハウスモ不動産天王寺店」です。当店にご来店いただいたお客様には、各種キャンペーンをご用意しております。天王寺周辺はもちろん大阪府内全域、経験豊富なスタッフがご対応させて頂きます。お部屋探しについて何でもご相談下さい。尚、ライフライン・引越業者も提携しております。お部屋探しはハウスモ不動産天王寺店へお任せ下さい。 |
| リフォーム履歴 |
- |
| リノベーション履歴 |
- |
| 備考 |
賃貸保証等:加入要(管理会社指定)
管理形態/管理員の勤務形態:-/-
IT重説対応物件
☆ネット無料☆独立洗面台☆室内洗濯機置場☆エアコン☆設備充実
|
| エネルギー消費性能 |
- |
| 断熱性能 |
- |
| 目安光熱費 |
- |
| バス・トイレ |
バス・トイレ別、浴室乾燥機、シャワー付洗面化粧台、洗面所独立、洗面所、洗面台、シャワー、温水洗浄便座、トイレ |
| キッチン |
システムキッチン、IHクッキングヒーター、2口コンロ |
| セキュリティー |
オートロック |
| 収納 |
ウォークインクローゼット、収納スペース、クローゼット |
| 設備・サービス |
室内洗濯機置場、洗濯機置場、都市ガス給湯、給湯、全居室フローリング、フローリング、都市ガス、エアコン |
| TV・通信 |
インターネット対応、インターネット使用料無料、光ファイバー、ケーブルTV、CS、BS端子 |
| その他 |
宅配BOX、ワイドバルコニー、バルコニー、駐輪場 |
| 契約期間 |
1年 |
現況 |
居住中 |
| 条件等 |
- |
入居可能時期 |
相談 |
| 更新料 |
7,700円 |
物件番号 |
1153561119 |
| 情報公開日 |
2026年1月9日 |
次回更新予定日 |
2026年2月18日 |
| ケータイ用バーコード |
- スマートフォンでこの物件を見る
- スマートフォンからもこの物件をご覧になれます。
|
※「-」と表示されている項目については、情報提供会社にご確認ください。
| 周辺施設 |
カーブス 安立 |
| 距離 |
235m |
写真を見る |
| 周辺施設 |
セブンイレブン 大阪安立3丁目店 |
| 距離 |
332m |
写真を見る |
| 周辺施設 |
関西スーパー 住ノ江店 |
| 距離 |
342m |
写真を見る |
ここから簡単にお問い合わせをすることができます。
(SSLでの暗号化での送信を希望されるお客さまは
こちら
よりお問い合わせください)
お問い合わせを行う前に
「個人情報の取り扱いについて」を必ずお読みください。
「個人情報の取り扱いについて」に同意いただいた場合は「上記にご同意の上 確認画面へ進む」のボタンをクリックしてください。
個人情報の取り扱いについて
皆さまが送付された個人情報はアットホーム(株)のサーバを経由し、お問い合わせ先の不動産会社にメールまたはFAXにて転送されるためアットホーム(株)にも保管されます。アットホーム(株)で保管された個人情報の取り扱いについては、【こちら】をご覧ください。
また、本画面でご記入いただいた個人情報は、お問い合わせ先の不動産会社でも保管します。 お問い合わせ先の不動産会社が保管する個人情報の取り扱いについては、不動産会社に直接お問い合わせください。
大阪府知事免許(3)第55965号 |
|---|
- 交通:
- 地下鉄谷町線/阿倍野駅 徒歩1分
- 大阪府大阪市阿倍野区阿倍野筋2丁目4-47
- TEL:
- 06-6624-8828
- FAX:
- 06-6624-8827
- 所属団体:
- (公社)全日本不動産協会会員(公社)近畿地区不動産公正取引協議会加盟
取引態様:仲介  - 50023052
|
- スマートフォンで
この不動産会社を見る

|
- 提携サイト等より掲載されている物件情報につきましては、不動産会社詳細情報にリンクされていないものがあります。
- 物件に関するお問合せは、物件詳細ページの「情報提供会社」に表示されている不動産会社へ直接お願いいたします。
- 間取図は、現況を優先させていただきます。
- 映像は物件の一部を撮影したものです。物件の契約にあたっての最終判断はご自身の判断に基づいて行ってください。
- 仲介手数料について

アットホームは物件情報の適正化に努めております。
内容に誤りがある場合にはこちらへご連絡ください。