東京都世田谷区上馬5丁目(三軒茶屋駅)の賃貸:物件詳細
交通 所在地 |
駅徒歩 |
賃料 管理費等 |
敷金/保証金 礼金 |
間取り 面積 |
物件種目 築年月 |
|
東急田園都市線/三軒茶屋
東京都世田谷区上馬5丁目
|
13分
|
8.4万円
5,000円
|
1ヶ月 / なし
1ヶ月
|
ワンルーム
18.20m²
|
賃貸マンション
1992年3月(築33年8ヶ月)
|
|
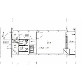
間取図
間取り
|
外観
★外観★
|
その他の画像
|
| 交通 | 東急田園都市線 三軒茶屋駅 徒歩13分 |
|---|
| その他の交通 | 東急世田谷線 松陰神社前駅 徒歩6分 東急世田谷線 若林駅 徒歩7分 |
| 所在地 |
東京都世田谷区上馬5丁目
|
| 物件種目 |
賃貸マンション |
| 賃料 |
8.4万円 |
管理費等 |
5,000円 |
| 敷金 / 保証金 |
1ヶ月 / なし |
礼金 |
1ヶ月 |
| 敷引 |
- |
保証金償却 |
- |
| その他一時金 |
なし、鍵交換代等:36,300円~ |
保険等 |
要 |
| 維持費等 |
- |
| 間取り |
ワンルーム |
専有面積 |
18.20m² |
| 築年月 |
1992年3月(築33年8ヶ月)
|
階建 / 階 |
8階建 / 4階 |
| 建物構造 |
SRC |
総戸数 |
- |
| 主要採光面 |
東 |
駐車場 |
無 |
| バイク置き場 |
無 |
駐輪場 |
有 無料 |
| 建物名・部屋番号 |
レジデンス三軒茶屋スクエア 402 |
ペット |
-
|
| リフォーム履歴 |
- |
| リノベーション履歴 |
- |
| 備考 |
賃貸保証等:加入要(エポスカード 【B】賃料総額40%/月額800円【GTN】賃料総額50%/月額2,000円 「法人」利用できません / 最低保証料:15,000円 【GTN】※外国籍 留学生 【キャンパス】初期費用)
管理形態/管理員の勤務形態:-/-
快適な通学や通勤がおくれる2沿線利用可、3駅以上利用可物件、ビジネスマンや学生さんにもオススメ♪
保証会社利用必須!その他違約金等についてはお問合せ下さい。
※写真は参考です。現況優先となります。
|
| エネルギー消費性能 |
- |
| 断熱性能 |
- |
| 目安光熱費 |
- |
| バス・トイレ |
トイレ |
| キッチン |
IHクッキングヒーター |
| セキュリティー |
オートロック |
| 収納 |
収納スペース、クローゼット、シューズボックス |
| 設備・サービス |
室内洗濯機置場、洗濯機置場、都市ガス、エアコン、冷房 |
| TV・通信 |
- |
| その他 |
宅配BOX、バルコニー、駐輪場、エレベーター |
| 契約期間 |
2年 |
現況 |
居住中 |
| 条件等 |
- |
入居可能時期 |
2025年11月下旬予定 |
| 更新料 |
新賃料 1ヶ月 |
物件番号 |
1153643816 |
| 情報公開日 |
2025年10月24日 |
次回更新予定日 |
2025年11月7日 |
| ケータイ用バーコード |
- スマートフォンでこの物件を見る
- スマートフォンからもこの物件をご覧になれます。
|
※「-」と表示されている項目については、情報提供会社にご確認ください。
ここから簡単にお問い合わせをすることができます。
(SSLでの暗号化での送信を希望されるお客さまは
こちら
よりお問い合わせください)
お問い合わせを行う前に
「個人情報の取り扱いについて」を必ずお読みください。
「個人情報の取り扱いについて」に同意いただいた場合は「上記にご同意の上 確認画面へ進む」のボタンをクリックしてください。
個人情報の取り扱いについて
皆さまが送付された個人情報はアットホーム(株)のサーバを経由し、お問い合わせ先の不動産会社にメールまたはFAXにて転送されるためアットホーム(株)にも保管されます。アットホーム(株)で保管された個人情報の取り扱いについては、【こちら】をご覧ください。
また、本画面でご記入いただいた個人情報は、お問い合わせ先の不動産会社でも保管します。 お問い合わせ先の不動産会社が保管する個人情報の取り扱いについては、不動産会社に直接お問い合わせください。
国土交通大臣免許(11)第3201号 |
|---|
- 交通:
- 東京メトロ丸ノ内線/新宿三丁目駅 徒歩5分
- 東京都新宿区新宿5丁目14-6 長府新宿ビル3F
- TEL:
- 0120-775-561
- FAX:
- 03-5368-7683
- 所属団体:
- (一社)マンション管理業協会会員
取引態様:代理  - 00160558
|
- スマートフォンで
この不動産会社を見る

|
- 提携サイト等より掲載されている物件情報につきましては、不動産会社詳細情報にリンクされていないものがあります。
- 物件に関するお問合せは、物件詳細ページの「情報提供会社」に表示されている不動産会社へ直接お願いいたします。
- 間取図は、現況を優先させていただきます。
- 映像は物件の一部を撮影したものです。物件の契約にあたっての最終判断はご自身の判断に基づいて行ってください。
- 仲介手数料について

アットホームは物件情報の適正化に努めております。
内容に誤りがある場合にはこちらへご連絡ください。