東京都立川市羽衣町1丁目(西国立駅)の賃貸:物件詳細
交通 所在地 |
駅徒歩 |
賃料 管理費等 |
敷金/保証金 礼金 |
間取り 面積 |
物件種目 築年月 |
|
JR南武線/西国立
東京都立川市羽衣町1丁目
|
5分
|
9.3万円
9,000円
|
1ヶ月 / なし
1ヶ月
|
1K
26.58m²
|
賃貸マンション
2023年12月(築1年11ヶ月)
|
デザイナーズ、二人入居可、閑静な住宅街、外観タイル張り、IT重説対応物件、保証人不要
|
|
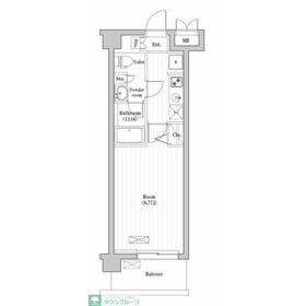
間取図
★お問い合わせはタウンハウジング聖蹟桜ヶ丘店まで★
|
外観
★お問い合わせはタウンハウジング聖蹟桜ヶ丘店まで★
|
<
その他の画像
>
|
| 交通 | JR南武線 西国立駅 徒歩5分 |
|---|
| その他の交通 | JR中央線 立川駅 徒歩16分 多摩モノレール 立川北駅 徒歩20分 |
| 所在地 |
東京都立川市羽衣町1丁目
|
| 物件種目 |
賃貸マンション |
| 賃料 |
9.3万円 |
管理費等 |
9,000円 |
| 敷金 / 保証金 |
1ヶ月 / なし |
礼金 |
1ヶ月 |
| 敷引 |
- |
保証金償却 |
- |
| その他一時金 |
なし、鍵交換代等:16,500円~ |
保険等 |
要 2年 18,000円 |
| 維持費等 |
- |
クレジットカード決済 |
初期費用可 |
| 間取り |
1K(洋室8.5帖) |
専有面積 |
26.58m² |
| 築年月 |
2023年12月(築1年11ヶ月)
|
階建 / 階 |
7階建 / 5階 |
| 建物構造 |
RC |
総戸数 |
49戸 |
| 主要採光面 |
北西 |
駐車場 |
- |
| バイク置き場 |
- |
駐輪場 |
有 |
| 建物名・部屋番号 |
N-stage Nishikunitachi 504 |
ペット |
-
|
| アピールポイント |
★地域の不動産会社との情報共有により、インターネット掲載物件のほぼ全てがご紹介可能です♪学区・スーパーなどの周辺情報もお気軽にお問い合わせ下さい★お問い合わせは地域密着タウンハウジングまで★ |
| リフォーム履歴 |
- |
| リノベーション履歴 |
- |
| 備考 |
賃貸保証等:加入要(エポス初回保証料:賃料総額の40%最低保証料:15,000円)
管理形態/管理員の勤務形態:-/日勤
IT重説対応物件、管理人日勤
★オンライン内見ご相談下さい!★お部屋探しはタウンハウジングまでお任せ下さい♪熟練スタッフ・地元スタッフ在中店です★地元密着型!親切・丁寧・一生懸命を心掛けております★契約金の一部がクレジットカード決済可能です。初期費用のご相談などお気軽にお申し付け下さい!他社の物件もご紹介・ご案内可能です!★
|
| エネルギー消費性能 |
- |
| 断熱性能 |
- |
| 目安光熱費 |
- |
| バス・トイレ |
バス・トイレ別、浴室乾燥機、シャワー付洗面化粧台、洗面所独立、洗面所、洗面台、シャワー、温水洗浄便座、トイレ |
| キッチン |
システムキッチン、2口コンロ、ガスコンロ付 |
| セキュリティー |
モニター付オートロック、オートロック、モニター付インターホン、防犯カメラ |
| 収納 |
収納スペース、クローゼット、シューズボックス |
| 設備・サービス |
全居室エアコン、室内洗濯機置場、都市ガス給湯、給湯、全居室フローリング、フローリング、都市ガス、エアコン |
| TV・通信 |
インターネット対応、インターネット使用料無料、ケーブルTV、CS、BS端子 |
| その他 |
宅配BOX、バルコニー、駐輪場、エレベーター |
| 契約期間 |
2年 |
現況 |
居住中 |
| 条件等 |
- |
入居可能時期 |
相談 |
| 更新料 |
93,000円 |
物件番号 |
1153645015 |
| 情報公開日 |
2025年10月16日 |
次回更新予定日 |
2025年10月30日 |
| ケータイ用バーコード |
- スマートフォンでこの物件を見る
- スマートフォンからもこの物件をご覧になれます。
|
※「-」と表示されている項目については、情報提供会社にご確認ください。
| 周辺施設 |
サミットストア羽衣いちょう通り店 |
| 距離 |
220m |
写真を見る |
| 周辺施設 |
西友西国立店 |
| 距離 |
370m |
写真を見る |
| 周辺施設 |
MEGAドン・キホーテ立川店 |
| 距離 |
740m |
写真を見る |
| 周辺施設 |
サンドラッグ立川羽衣町店 |
| 距離 |
730m |
写真を見る |
| 周辺施設 |
ケーヨーデイツー国立青柳店 |
| 距離 |
1240m |
写真を見る |
| 周辺施設 |
ローソンストア100立川羽衣町店 |
| 距離 |
210m |
写真を見る |
ここから簡単にお問い合わせをすることができます。
(SSLでの暗号化での送信を希望されるお客さまは
こちら
よりお問い合わせください)
お問い合わせを行う前に
「個人情報の取り扱いについて」を必ずお読みください。
「個人情報の取り扱いについて」に同意いただいた場合は「上記にご同意の上 確認画面へ進む」のボタンをクリックしてください。
個人情報の取り扱いについて
皆さまが送付された個人情報はアットホーム(株)のサーバを経由し、お問い合わせ先の不動産会社にメールまたはFAXにて転送されるためアットホーム(株)にも保管されます。アットホーム(株)で保管された個人情報の取り扱いについては、【こちら】をご覧ください。
また、本画面でご記入いただいた個人情報は、お問い合わせ先の不動産会社でも保管します。 お問い合わせ先の不動産会社が保管する個人情報の取り扱いについては、不動産会社に直接お問い合わせください。
国土交通大臣免許(1)第9926号 |
|---|
- 交通:
- 京王線/分倍河原駅 徒歩1分
- 東京都府中市片町2丁目20-6
- TEL:
- 042-360-6371
- FAX:
- 042-360-6372
- 所属団体:
- 所属団体未加入会員
取引態様:仲介  - 00266768
|
- スマートフォンで
この不動産会社を見る

|
- 提携サイト等より掲載されている物件情報につきましては、不動産会社詳細情報にリンクされていないものがあります。
- 物件に関するお問合せは、物件詳細ページの「情報提供会社」に表示されている不動産会社へ直接お願いいたします。
- 間取図は、現況を優先させていただきます。
- 映像は物件の一部を撮影したものです。物件の契約にあたっての最終判断はご自身の判断に基づいて行ってください。
- 仲介手数料について

アットホームは物件情報の適正化に努めております。
内容に誤りがある場合にはこちらへご連絡ください。