東京都世田谷区上野毛1丁目(上野毛駅)の賃貸:物件詳細
交通 所在地 |
駅徒歩 |
賃料 管理費等 |
敷金/保証金 礼金 |
間取り 面積 |
物件種目 築年月 |
東急大井町線/上野毛
東京都世田谷区上野毛1丁目
|
4分
|
10.4万円
5,000円
|
1ヶ月 / なし
2ヶ月
|
1K
26.27m²
|
賃貸マンション
2012年9月(築13年2ヶ月)
|
分譲タイプ、常時ゴミ出し可能、外観タイル張り、IT重説対応物件
|
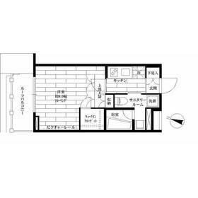
間取図
|
外観
|
<
その他の画像
>
|
交通 | 東急大井町線 上野毛駅 徒歩4分 |
---|
その他の交通 | 東急田園都市線 二子玉川駅 徒歩16分 東急大井町線 等々力駅 徒歩16分 |
所在地 |
東京都世田谷区上野毛1丁目
|
物件種目 |
賃貸マンション |
賃料 |
10.4万円 |
管理費等 |
5,000円 |
敷金 / 保証金 |
1ヶ月 / なし |
礼金 |
2ヶ月 |
敷引 |
1ヶ月 |
保証金償却 |
- |
その他一時金 |
アクト安心ライフ:19,800円、鍵交換代等:22,000円~ |
保険等 |
要 2年 20,000円 |
維持費等 |
- |
クレジットカード決済 |
初期費用可 |
間取り |
1K(K2.5帖 洋室8.0帖) |
専有面積 |
26.27m² |
築年月 |
2012年9月(築13年2ヶ月)
|
階建 / 階 |
5階建 / 4階 |
建物構造 |
RC |
総戸数 |
50戸 |
主要採光面 |
北 |
駐車場 |
近有 25,000円/月 |
バイク置き場 |
- |
駐輪場 |
有 |
建物名・部屋番号 |
ステージグランデ世田谷上野毛AC 404 |
ペット |
-
|
アピールポイント |
★地域の不動産会社との情報共有により、インターネット掲載物件のほぼ全てがご紹介可能です♪お家賃交渉や礼金交渉などもお気軽にご相談ください♪新築物件、デザイナーズ物件、ペット可物件、楽器可物件、UR賃貸住宅などなど★お部屋探しは地域密着のタウンハウジングにお任せ下さい★2023年度全国仲介件数第2位(全国賃貸新聞2024掲載)★毎日新着情報更新中★ |
リフォーム履歴 |
- |
リノベーション履歴 |
- |
備考 |
賃貸保証等:加入要(賃貸保証料:0.40ヶ月 初回保証料:総賃料の40%、月額:800円)
管理形態/管理員の勤務形態:-/巡回
IT重説対応物件、管理人巡回
★タウンハウジングはオンラインでご対応可能!★初期費用・諸条件お気軽にご相談下さい★他社さん掲載物件もまとめてご紹介可能です★小田急線・田園都市線・世田谷線・京王線のお部屋探しは地域密着のタウンハウジングにお任せ下さい★2023年度全国仲介件数第2位(全国賃貸新聞2024掲載)★毎日新着情報更新中★
|
エネルギー消費性能 |
- |
断熱性能 |
- |
目安光熱費 |
- |
バス・トイレ |
バス・トイレ別、浴室乾燥機、シャワー付洗面化粧台、洗面所独立、洗面所、洗面台、シャワー、温水洗浄便座、トイレ |
キッチン |
システムキッチン、2口コンロ、ガスコンロ付 |
セキュリティー |
モニター付オートロック、オートロック、モニター付インターホン、カードキー、防犯カメラ、火災警報器(報知機) |
収納 |
ウォークインクローゼット、収納スペース、クローゼット、シューズボックス |
設備・サービス |
全居室エアコン、室内洗濯機置場、都市ガス給湯、給湯、全居室フローリング、フローリング、都市ガス、エアコン、人感センサー付照明、ダウンライト、照明器具 |
TV・通信 |
インターネット対応、インターネット使用料無料、光ファイバー、CS、BS端子 |
その他 |
宅配BOX、ワイドバルコニー、ルーフバルコニー、バルコニー、駐輪場、エレベーター |
契約期間 |
2年 |
現況 |
空家 |
条件等 |
- |
入居可能時期 |
相談 |
更新料 |
新賃料 1ヶ月 |
物件番号 |
1153807915 |
情報公開日 |
2025年10月17日 |
次回更新予定日 |
2025年10月31日 |
ケータイ用バーコード |
- スマートフォンでこの物件を見る
- スマートフォンからもこの物件をご覧になれます。
|
※「-」と表示されている項目については、情報提供会社にご確認ください。
周辺施設 |
スーパーオオゼキ |
距離 |
380m |
写真を見る |
周辺施設 |
パルケNEW |
距離 |
590m |
写真を見る |
周辺施設 |
セブンイレブン |
距離 |
150m |
写真を見る |
周辺施設 |
ファミリーマート |
距離 |
350m |
写真を見る |
周辺施設 |
ローソン上野毛一丁目店 |
距離 |
330m |
写真を見る |
周辺施設 |
マツモトキヨシ |
距離 |
500m |
写真を見る |
ここから簡単にお問い合わせをすることができます。
(SSLでの暗号化での送信を希望されるお客さまは
こちら
よりお問い合わせください)
お問い合わせを行う前に
「個人情報の取り扱いについて」を必ずお読みください。
「個人情報の取り扱いについて」に同意いただいた場合は「上記にご同意の上 確認画面へ進む」のボタンをクリックしてください。
個人情報の取り扱いについて
皆さまが送付された個人情報はアットホーム(株)のサーバを経由し、お問い合わせ先の不動産会社にメールまたはFAXにて転送されるためアットホーム(株)にも保管されます。アットホーム(株)で保管された個人情報の取り扱いについては、【こちら】をご覧ください。
また、本画面でご記入いただいた個人情報は、お問い合わせ先の不動産会社でも保管します。 お問い合わせ先の不動産会社が保管する個人情報の取り扱いについては、不動産会社に直接お問い合わせください。
国土交通大臣免許(1)第9926号 |
---|
- 交通:
- 小田急小田原線/経堂駅 徒歩3分
- 東京都世田谷区経堂1丁目24-16 コンフォール経堂101
- TEL:
- 03-3425-4888
- FAX:
- 03-3425-4889
- 所属団体:
- 所属団体未加入会員
取引態様:仲介  - 00268567
|
- スマートフォンで
この不動産会社を見る

|
- 提携サイト等より掲載されている物件情報につきましては、不動産会社詳細情報にリンクされていないものがあります。
- 物件に関するお問合せは、物件詳細ページの「情報提供会社」に表示されている不動産会社へ直接お願いいたします。
- 間取図は、現況を優先させていただきます。
- 映像は物件の一部を撮影したものです。物件の契約にあたっての最終判断はご自身の判断に基づいて行ってください。
- 仲介手数料について

アットホームは物件情報の適正化に努めております。
内容に誤りがある場合にはこちらへご連絡ください。