神奈川県川崎市幸区南幸町2丁目(尻手駅)の賃貸:物件詳細
交通 所在地 |
駅徒歩 |
賃料 管理費等 |
敷金/保証金 礼金 |
間取り 面積 |
物件種目 築年月 |
|
JR南武線/尻手
神奈川県川崎市幸区南幸町2丁目
|
8分
|
8.6万円
15,000円
|
なし / なし
1ヶ月
|
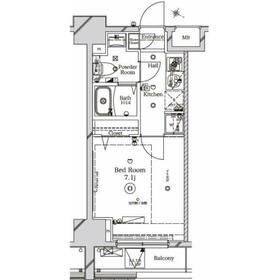
1K
22.80m²
|
賃貸マンション
2015年1月(築11年3ヶ月)
|
分譲タイプ、24時間換気システム、保証人不要
|
|
間取図
|
外観
|
<
その他の画像
>
|
| 交通 | JR南武線 尻手駅 徒歩8分 |
|---|
| その他の交通 | JR京浜東北線 川崎駅 徒歩10分 京急本線 京急川崎駅 徒歩16分 |
| 所在地 |
神奈川県川崎市幸区南幸町2丁目
|
| 物件種目 |
賃貸マンション |
| 賃料 |
8.6万円 |
管理費等 |
15,000円 |
| 敷金 / 保証金 |
なし / なし |
礼金 |
1ヶ月 |
| 敷引 |
- |
保証金償却 |
- |
| その他一時金 |
契約事務手数料:11,000円、アクト安心ライフ24(2年毎更新必須):16,500円、除菌消臭代:11,000円、鍵交換代等:33,000円~ |
保険等 |
要 2年 20,000円 |
| 維持費等 |
- |
| 間取り |
1K |
専有面積 |
22.80m² |
| 築年月 |
2015年1月(築11年3ヶ月)
|
階建 / 階 |
14階建 / 10階 |
| 建物構造 |
RC |
総戸数 |
- |
| 主要採光面 |
|
駐車場 |
近有 22,000円/月 |
| バイク置き場 |
有 |
駐輪場 |
有 無料 |
| 建物名・部屋番号 |
ラフィスタ川崎 |
ペット |
-
|
| アピールポイント |
ぜひ一度見ていただきたい、「ラフィスタ川崎」です。室内設備は浴室乾燥機・洗面所独立などが揃っているので、快適に過ごしやすいお部屋になります。収納はシューズボックス・クロゼットなどが備え付けられているので、衣類や日用品の収納に重宝します。セキュリティ面は、TVインターホン・オートロックなどを設置しているので安全面でも優れております。共用部には宅配ボックスが備え付けられているため、非対面での荷物の受け取りが可能です。お料理好きにはたまらない、システムキッチン付きのマンションです。駐輪場付きの物件です。管理人が巡回しているので、安心して生活できます。幅広い層に好評な、駅から徒歩8分に立地する物件です。景色が綺麗で住み心地の良い14階建て物件。2026年4月入居可能予定です。ご注意ください。 |
| リフォーム履歴 |
- |
| リノベーション履歴 |
- |
| 備考 |
賃貸保証等:加入要(ジェイリース 初回契約時:50%、月額:1.2%、外国籍の方(ジェイリースの場合):初回保証料100%・月額保証料1.2%)
管理形態/管理員の勤務形態:-/巡回
管理人巡回
お部屋探しは横浜駅徒歩5分のみらい不動産にお任せください。
退去前先行契約、解約予告2ヶ月前、1年未満解約違約金(賃料+管理費1ヶ月分)、更新事務手数料(個人2万円+税/法人0.5ヶ月+税)、退去時:室内清掃費・原状回復費・ACクリーニング代、鍵交換代は1シリンダー交換の場合の料金、鍵のお渡しは1本のみの場合あり、海外審査不可、駐車場・バイク置場・駐輪場:空き状況・費用等要確認
|
| エネルギー消費性能 |
- |
| 断熱性能 |
- |
| 目安光熱費 |
- |
| バス・トイレ |
バス・トイレ別、浴室乾燥機、洗面所独立、洗面所、シャワー、温水洗浄便座、トイレ |
| キッチン |
システムキッチン、2口コンロ |
| セキュリティー |
モニター付オートロック、オートロック、モニター付インターホン |
| 収納 |
収納スペース、クローゼット、シューズボックス |
| 設備・サービス |
室内洗濯機置場、洗濯機置場、フローリング、都市ガス、エアコン |
| TV・通信 |
CS、BS端子 |
| その他 |
宅配BOX、バイク置き場、バルコニー、駐輪場、エレベーター |
| 契約期間 |
2年 |
現況 |
居住中 |
| 条件等 |
- |
入居可能時期 |
2026年4月中旬予定 |
| 更新料 |
新賃料 1ヶ月 |
物件番号 |
1153955622 |
| 情報公開日 |
2026年3月2日 |
次回更新予定日 |
2026年3月16日 |
| ケータイ用バーコード |
- スマートフォンでこの物件を見る
- スマートフォンからもこの物件をご覧になれます。
|
※「-」と表示されている項目については、情報提供会社にご確認ください。
| 周辺施設 |
サミットストア 尻手駅前店 |
| 距離 |
583m |
写真を見る |
| 周辺施設 |
セブン-イレブン 横浜矢向店 |
| 距離 |
907m |
写真を見る |
| 周辺施設 |
業務スーパー 鶴見店 |
| 距離 |
1308m |
写真を見る |
| 周辺施設 |
CIAL(シァル)鶴見 |
| 距離 |
3407m |
写真を見る |
| 周辺施設 |
ノジマ 西友鶴見店 |
| 距離 |
3495m |
写真を見る |
ここから簡単にお問い合わせをすることができます。
(SSLでの暗号化での送信を希望されるお客さまは
こちら
よりお問い合わせください)
お問い合わせを行う前に
「個人情報の取り扱いについて」を必ずお読みください。
「個人情報の取り扱いについて」に同意いただいた場合は「上記にご同意の上 確認画面へ進む」のボタンをクリックしてください。
個人情報の取り扱いについて
皆さまが送付された個人情報はアットホーム(株)のサーバを経由し、お問い合わせ先の不動産会社にメールまたはFAXにて転送されるためアットホーム(株)にも保管されます。アットホーム(株)で保管された個人情報の取り扱いについては、【こちら】をご覧ください。
また、本画面でご記入いただいた個人情報は、お問い合わせ先の不動産会社でも保管します。 お問い合わせ先の不動産会社が保管する個人情報の取り扱いについては、不動産会社に直接お問い合わせください。
神奈川県知事免許(1)第31847号 |
|---|
- 交通:
- 東急東横線/横浜駅
- 神奈川県横浜市西区北幸2丁目10-42 寺内ビル9F
- TEL:
- 045-322-2552
- FAX:
- 045-322-2553
- 所属団体:
- (公社)神奈川県宅地建物取引業協会会員(公社)首都圏不動産公正取引協議会加盟
取引態様:仲介  - 00273956
|
- スマートフォンで
この不動産会社を見る

|
- 提携サイト等より掲載されている物件情報につきましては、不動産会社詳細情報にリンクされていないものがあります。
- 物件に関するお問合せは、物件詳細ページの「情報提供会社」に表示されている不動産会社へ直接お願いいたします。
- 間取図は、現況を優先させていただきます。
- 映像は物件の一部を撮影したものです。物件の契約にあたっての最終判断はご自身の判断に基づいて行ってください。
- 仲介手数料について

アットホームは物件情報の適正化に努めております。
内容に誤りがある場合にはこちらへご連絡ください。