不動産 賃貸 マンション等の住宅情報:埼玉住まい情報


東京都板橋区南町(要町駅)の賃貸:物件詳細

  • 物件詳細
  • 情報の見方
  • 印刷用画面
交通
所在地
駅徒歩 賃料
管理費等
敷金/保証金
礼金
間取り
面積
物件種目
築年月

東京メトロ有楽町線/要町 新着

東京都板橋区南町

6分

10万円

19,000円

なし / 1ヶ月

2万円

1K

26.15m²

賃貸マンション

2019年8月(築6年8ヶ月)

おすすめPOINTペット相談、分譲タイプ、角部屋、二人入居可、IT重説対応物件

おすすめコメント  スタッフ: M.T

近くにはセブンイレブン 豊島高松1丁目店(徒歩4分)がありちょっとした買い物に便利です。共用部には宅配ボックスが備え付けられているため、好きなタイミングで荷物を受け取ることができます。

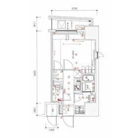
間取図

間取図

外観

外観

その他の画像
  • エントランス
  • 共有部分
  • 病院
    • とりあえず保存
    • お問い合わせ
    交通

    東京メトロ有楽町線 要町駅 徒歩6分

    その他の交通

    JR山手線 池袋駅 徒歩10分

    東京メトロ副都心線 千川駅 徒歩15分

    所在地 東京都板橋区南町
    物件種目 賃貸マンション
    賃料 10万円 管理費等 19,000円
    敷金 / 保証金 なし / 1ヶ月 礼金 2万円
    敷引 保証金償却
    その他一時金 ハウスクリーニング(入居時):59,400円、エアコン分解清掃(入居時):16,500円、契約事務手数料(入居時):11,000円、24時間生活サポート(入居時):19,800円、鍵交換代等:33,000円~ 保険等 要 2年 20,000円
    維持費等 クレジットカード決済 初期費用可
    間取り 1K(洋7.4) 専有面積 26.15m²
    築年月 2019年8月(築6年8ヶ月) 階建 / 階 14階建 / 4階
    建物構造 RC 総戸数
    主要採光面 西 駐車場
    バイク置き場 駐輪場
    建物名・部屋番号 フェルクルールプレスト池袋ウエスト 4F ペット 相談
    リフォーム履歴
    リノベーション履歴
    備考
    賃貸保証等:加入要(初回契約時:50%、月額:800円、初回保証料 保証人有⇒40% 無⇒50% 外国籍⇒100%+月額1000円 契約時緊急連絡先も身分証写し必須)
    管理形態/管理員の勤務形態:-/-
    IT重説対応物件
    最寄りの公園高松二丁目児童遊園(徒歩5分)。留守中に注文した商品が届くので、配送時間を気にせず注文ができる宅配ボックスが共用部に付いています。セキュリティ面は、オートロック・TVインターホンなど充実しているので安心して生活できます。ワクワク、ドキドキの新生活。まずは当社で板橋区や有楽町線要町付近のお部屋探しをしましょう。好みのお部屋がきっと見つかります。
    解約予告2ヶ月前。
    短期解約違約金:2年未満は総賃料の1ヶ月分。
    ペット飼育可能/猫不可、保証金1ヶ月増額、契約時償却。
    契約時ルームクリーニング代、エアコンクリーニング代、税率変更による差額は退去時請求。
    保証金契約時償却、償却に原状回復費用は含みません。
    あ駐輪場、ミニバイク置場(要空確認)。
    BS・CS・CATV・インターネット対応は要確認。


    エネルギー消費性能
    断熱性能
    目安光熱費
    バス・トイレ バス・トイレ別、浴室乾燥機、洗面所独立、洗面所、シャワー、温水洗浄便座、トイレ
    キッチン システムキッチン、2口コンロ
    セキュリティー モニター付オートロック、オートロック、モニター付インターホン、防犯カメラ
    収納 ウォークインクローゼット、収納スペース、クローゼット、シューズボックス
    設備・サービス 室内洗濯機置場、洗濯機置場、都市ガス給湯、給湯、フローリング、都市ガス、エアコン
    TV・通信 インターネット対応、光ファイバー、CS、BS端子
    その他 宅配BOX、バイク置き場、バルコニー、駐輪場、エレベーター
    契約期間 2年 現況 居住中
    条件等 入居可能時期 2026年4月下旬予定
    仲介手数料 1.1ヶ月    
    更新料 新賃料 1.1ヶ月 物件番号 1154157322
    情報公開日 2026年2月27日 次回更新予定日 2026年3月13日
    ケータイ用バーコード

    QRコード

    スマートフォンでこの物件を見る
    スマートフォンからもこの物件をご覧になれます。
    ※「-」と表示されている項目については、情報提供会社にご確認ください。

    この物件の周辺情報

    周辺施設 阿部医院
    距離 542m

    クイックお問い合わせ

    ここから簡単にお問い合わせをすることができます。
    (SSLでの暗号化での送信を希望されるお客さまは こちら よりお問い合わせください)

    お問い合わせ内容(必須)
    お名前(必須) 姓  名 
    メールアドレス(必須)
    ※携帯電話のメールアドレスをご入力される方はこちらをご確認ください
    電話番号(必須)
    - -

    ※入力いただいた電話番号へSMSまたは音声でパスワードをご連絡します。

    携帯電話の番号をご入力の方へ

    携帯電話の番号をご入力の方へ
    確認画面にて送信ボタンをクリックするとSMSが携帯電話に届きます。
    そのSMSに記載のパスワード(認証番号)を入力し、お問い合わせを完了してください。
    尚、SMSの送信者番号は 0005 202 760 となります。
    これはアットホームの固定番号です。

    備考欄 希望条件、物件案内希望日、質問などがございましたらご記入ください。
    お問い合わせを行う前に「個人情報の取り扱いについて」を必ずお読みください。
    「個人情報の取り扱いについて」に同意いただいた場合は「上記にご同意の上 確認画面へ進む」のボタンをクリックしてください。

    個人情報の取り扱いについて

    皆さまが送付された個人情報はアットホーム(株)のサーバを経由し、お問い合わせ先の不動産会社にメールまたはFAXにて転送されるためアットホーム(株)にも保管されます。アットホーム(株)で保管された個人情報の取り扱いについては、【こちら】をご覧ください。
    また、本画面でご記入いただいた個人情報は、お問い合わせ先の不動産会社でも保管します。 お問い合わせ先の不動産会社が保管する個人情報の取り扱いについては、不動産会社に直接お問い合わせください。

    情報提供会社

    情報提供会社

    ハウス・トゥ・ハウス・ネットサービス(株) 巣鴨店

    国土交通大臣免許(4)第7400号

    交通:
    JR山手線/巣鴨駅 徒歩1分
    東京都豊島区巣鴨2丁目3-10 清水ビル6F
    TEL:
    03-3949-7077
    FAX:
    03-3949-8088
    所属団体:
    (公社)全日本不動産協会会員
    (公社)首都圏不動産公正取引協議会加盟

    取引態様:仲介

    • 会社情報
    • 00275413
    スマートフォンで
    この不動産会社を見る
    QRコード
    • とりあえず保存
    • お問い合わせ
    • 提携サイト等より掲載されている物件情報につきましては、不動産会社詳細情報にリンクされていないものがあります。
    • 物件に関するお問合せは、物件詳細ページの「情報提供会社」に表示されている不動産会社へ直接お願いいたします。
    • 間取図は、現況を優先させていただきます。
    • 映像は物件の一部を撮影したものです。物件の契約にあたっての最終判断はご自身の判断に基づいて行ってください。
    • 仲介手数料について仲介手数料

    アットホームは物件情報の適正化に努めております。 内容に誤りがある場合にはこちらへご連絡ください。

    【埼玉住まい情報】では、日本全国の物件から賃貸マンションや賃貸アパート・賃貸一戸建て等の賃貸住宅情報、新築マンション・分譲マンションや中古マンション等の売買マンション情報、新築一戸建てや中古一戸建てなどの戸建住宅、 土地など、総合的な不動産住宅情報検索サービスを提供致します。
    【埼玉住まい情報】から、選りすぐりの不動産物件を探してみましょう。

    【免責事項】
    このコーナーの運営はアットホーム株式会社(https://www.athome.co.jp/)が行っています。
    このコーナーに掲載している物件情報は、「アットホーム不動産情報ネットワーク」に加盟する不動産会社等(情報提供元)から提供されています。信頼性の高い情報提供が行えるよう、最大限の努力をしておりますが、その内容を保証するものではありません。 利用者のみなさまと各情報提供元との取引に起因する損害および情報が掲載されたことに起因する損害等については、株式会社イーシティ埼玉、およびアットホームは一切責任を負いません。
    各物件情報の内容や画像等はすべて現況を優先させていただきます。
    お取引等(お取引の準備、資金調達等を含みます)の際には、内容や契約条件等について、各情報提供元より十分な説明を受け、ご自身でご確認の上、判断してください。
    このコーナーへの物件情報のご掲載、その他不動産業務ソリューション等についての不動産会社様のお問合せはこちらからお願いいたします。

    物件画像: