東京都台東区松が谷2丁目(浅草駅)の賃貸:物件詳細
				
					
					
				
														
	
		
			
				| 交通 所在地
 | 駅徒歩 | 賃料 管理費等
 | 敷金/保証金 礼金
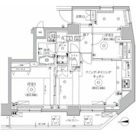
 | 間取り 面積
 | 物件種目 築年月
 | 
		
		
			
								| つくばエクスプレス/浅草
											 東京都台東区松が谷2丁目 | 7分 | 18.3万円 10,000円 | なし / なし 1ヶ月 | 2LDK 52.47m² | 賃貸アパート 2019年7月(築6年5ヶ月)
																				 | 
						
				|  ペット相談、分譲タイプ、常時ゴミ出し可能、角部屋、振分、二人入居可、3面採光、2面採光、24時間換気システム、保証人不要
 | 
					
	
		
		
		
					| 間取図 | 外観 | 
		
		| 
				
										<
										
						>
							 その他の画像 | 
				
 
	
		
			
																			          | 交通 | つくばエクスプレス 浅草駅 徒歩7分 | 
|---|
| その他の交通 | 東京メトロ銀座線 田原町駅 徒歩8分 東京メトロ銀座線 稲荷町駅 徒歩8分 | 
|---|
			
				| 所在地 | 東京都台東区松が谷2丁目 | 
			
				| 物件種目 | 賃貸アパート | 
		
		
			
				| 賃料 | 18.3万円 | 管理費等 | 10,000円 | 
			
				| 敷金 / 保証金 | なし / なし | 礼金 | 1ヶ月 | 
			
				| 敷引 | - | 保証金償却 | - | 
			
				| その他一時金 | 事務手数料:5,500円、除菌消臭費:8,800円、24時間緊急対応費:16,500円、鍵交換代等:27,500円~ | 保険等 | 要 1年 10,000円 | 
						
				| 維持費等 | - | 
					
		
			
				| 間取り | 2LDK(LDK11.6帖 洋室5.9帖 洋室5.3帖) | 専有面積 | 52.47m² | 
			
				| 築年月 | 2019年7月(築6年5ヶ月) | 階建 / 階 | 13階建 / 11階 | 
			
				| 建物構造 | RC | 総戸数 | - | 
			
				| 主要採光面 | 西 | 駐車場 | - | 
			
				| バイク置き場 | - | 駐輪場 | - | 
			
				| 建物名・部屋番号 | レアライズ浅草IV 1101 | ペット | 相談 | 
			
	| アピールポイント | 角部屋!ペット相談可!ネット無料!オートロック・宅配ボックス・浴室乾燥・独立洗面台付き! | 
			
				| リフォーム履歴 | - | 
			
				| リノベーション履歴 | - | 
			
				| 備考 | 
																	賃貸保証等:加入要(賃貸保証料:0.50ヶ月)
											管理形態/管理員の勤務形態:-/日勤
 管理人日勤
 1年未満解約時違約金1ヶ月 更新事務手数料0.275ヶ月(税込み)
 | 
		
				
		
		| エネルギー消費性能 | - | 
	
		| 断熱性能 | - | 
	
		| 目安光熱費 | - | 
	
		
									
				| バス・トイレ | バス・トイレ別、浴室暖房、浴室乾燥機、オートバス、追焚機能、洗面所独立、洗面所、洗面台、シャワー、温水洗浄便座、トイレ | 
						
				| キッチン | システムキッチン、3口以上コンロ、ガスコンロ付、グリル | 
						
				| セキュリティー | モニター付オートロック、オートロック、モニター付インターホン、ディンプルキー、ダブルロックドア、防犯カメラ、火災警報器(報知機) | 
						
				| 収納 | クローゼット、シューズボックス | 
						
				| 設備・サービス | エアコン2台以上、室内洗濯機置場、給湯、全居室フローリング、フローリング、都市ガス、エアコン、暖房、冷房、人感センサー付照明 | 
						
				| TV・通信 | インターネット対応、インターネット使用料無料、光ファイバー、マルチメディアコンセント | 
						
				| その他 | 宅配BOX、バルコニー、エレベーター | 
					
		
			
				| 契約期間 | 1年 | 現況 | 居住中 | 
			
				| 条件等 | - | 入居可能時期 | 2025年12月下旬予定 | 
						
				| 更新料 | 新賃料 0.5ヶ月 | 物件番号 | 1154389415 | 
			
				| 情報公開日 | 2025年10月18日 | 次回更新予定日 | 2025年11月1日 | 
						
				| ケータイ用バーコード | 
					
					
						
							スマートフォンでこの物件を見るスマートフォンからもこの物件をご覧になれます。 | 
					
	 
	 									※「-」と表示されている項目については、情報提供会社にご確認ください。
						
	
			
			
			
				
					
						
							| 周辺施設 | 浅草駅(首都圏新都市鉄道 つくばエクスプレス) | 
						
							| 距離 | 580m | 写真を見る | 
					
				
			 
		 
					
		 
				
				
		 									
												
					
					  ここから簡単にお問い合わせをすることができます。
(SSLでの暗号化での送信を希望されるお客さまは
													こちら
											  よりお問い合わせください)
					  
					
						
						
					
					お問い合わせを行う前に
「個人情報の取り扱いについて」を必ずお読みください。
「個人情報の取り扱いについて」に同意いただいた場合は「上記にご同意の上 確認画面へ進む」のボタンをクリックしてください。 
						個人情報の取り扱いについて
						皆さまが送付された個人情報はアットホーム(株)のサーバを経由し、お問い合わせ先の不動産会社にメールまたはFAXにて転送されるためアットホーム(株)にも保管されます。アットホーム(株)で保管された個人情報の取り扱いについては、【こちら】をご覧ください。
						また、本画面でご記入いただいた個人情報は、お問い合わせ先の不動産会社でも保管します。 お問い合わせ先の不動産会社が保管する個人情報の取り扱いについては、不動産会社に直接お問い合わせください。
					 
				 
				
														
				  
				  
					| 東京都知事免許(6)第76891号 | 
|---|
| 交通:東京メトロ日比谷線/三ノ輪駅 徒歩1分東京都台東区根岸5丁目22-6 ブロッケンビル3FTEL:03-6228-4882FAX:03-6800-6636所属団体:(公社)全日本不動産協会会員(公社)首都圏不動産公正取引協議会加盟
 取引態様:仲介 00275589
 | 
							  
								スマートフォンでこの不動産会社を見る
 | 
					  
					 
				 
							
						
												
			
					
- 提携サイト等より掲載されている物件情報につきましては、不動産会社詳細情報にリンクされていないものがあります。
- 物件に関するお問合せは、物件詳細ページの「情報提供会社」に表示されている不動産会社へ直接お願いいたします。
- 間取図は、現況を優先させていただきます。
- 映像は物件の一部を撮影したものです。物件の契約にあたっての最終判断はご自身の判断に基づいて行ってください。
- 仲介手数料について 
アットホームは物件情報の適正化に努めております。
内容に誤りがある場合にはこちらへご連絡ください。