千葉県松戸市小金きよしケ丘1丁目(北小金駅)の賃貸:物件詳細
交通 所在地 |
駅徒歩 |
賃料 管理費等 |
敷金/保証金 礼金 |
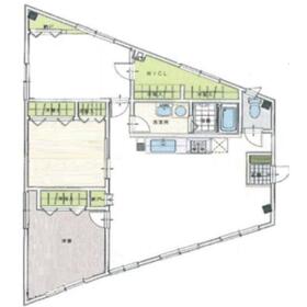
間取り 面積 |
物件種目 築年月 |
|
JR千代田・常磐緩行線/北小金
千葉県松戸市小金きよしケ丘1丁目
|
2分
|
11万円
5,000円
|
1ヶ月 / なし
なし
|
4LDK
73.59m²
|
賃貸マンション
1973年5月(築52年11ヶ月)
|
ペット相談、角部屋、南向き、二人入居可、外観タイル張り
|
|
間取図
|
外観
|
<
その他の画像
>
|
|
|
| 交通 | JR千代田・常磐緩行線 北小金駅 徒歩2分 |
|---|
| その他の交通 | JR武蔵野線 新松戸駅 徒歩22分 流鉄流山線 小金城趾駅 徒歩23分 |
| 所在地 |
千葉県松戸市小金きよしケ丘1丁目
|
| 物件種目 |
賃貸マンション |
| 賃料 |
11万円 |
管理費等 |
5,000円 |
| 敷金 / 保証金 |
1ヶ月 / なし |
礼金 |
なし |
| 敷引 |
- |
保証金償却 |
- |
| その他一時金 |
なし |
保険等 |
要 |
| 維持費等 |
- |
クレジットカード決済 |
初期費用可 |
| 間取り |
4LDK |
専有面積 |
73.59m² |
| 築年月 |
1973年5月(築52年11ヶ月)
|
階建 / 階 |
4階建 / 2階 |
| 建物構造 |
鉄骨造 |
総戸数 |
- |
| 主要採光面 |
南 |
駐車場 |
近有 13,750円/月 |
| バイク置き場 |
- |
駐輪場 |
有 |
| 建物名・部屋番号 |
ひらがビル |
ペット |
相談 |
| アピールポイント |
☆当店の強みをお伝えします☆
①クレジットカードの初期費用分割払いを、喜んでお受けいたします(クレジットカード以外もOK)
②他社様がネットに掲載されている物件は、全てお調べし、【好条件】でご紹介いたします
他社様で「お申込み」された物件でも、【好条件】でご紹介できる場合がございます
③「審査が不安…」「保証人がいない…」「値段交渉をして欲しい…」などなど、
どのようなご条件でも、遠慮なくご相談いただけます
④ご検討されている「エリア」「沿線」が「広範囲」「複数」でも、一度で漏れなくお探しいただけます
ポータルサイトや他社サイトで気になるお部屋がございましたらお気軽にご相談ください
お客様のご来店を心よりお待ちしております |
| リフォーム履歴 |
- |
| リノベーション履歴 |
- |
| 備考 |
管理形態/管理員の勤務形態:-/-
駐車場 無し/但し近隣1万円有り/火災保険 20.000円/鍵交換代借主負担/室内清掃費用借主負担/駐輪場代借主負担(使用時)
|
| エネルギー消費性能 |
- |
| 断熱性能 |
- |
| 目安光熱費 |
- |
| バス・トイレ |
バス・トイレ別、洗面台、温水洗浄便座、トイレ |
| キッチン |
システムキッチン、ガスコンロ可 |
| セキュリティー |
モニター付インターホン、火災警報器(報知機) |
| 収納 |
ウォークインクローゼット |
| 設備・サービス |
給湯、フローリング、都市ガス、エアコン、複層ガラス |
| TV・通信 |
インターネット対応、光ファイバー |
| その他 |
駐輪場 |
| 契約期間 |
2年 |
現況 |
居住中 |
| 条件等 |
- |
入居可能時期 |
2026年4月上旬予定 |
| 更新料 |
- |
物件番号 |
1154486625 |
| 情報公開日 |
2026年3月27日 |
次回更新予定日 |
2026年4月10日 |
| ケータイ用バーコード |
- スマートフォンでこの物件を見る
- スマートフォンからもこの物件をご覧になれます。
|
※「-」と表示されている項目については、情報提供会社にご確認ください。
| 周辺施設 |
ピコティ北小金 東館 |
| 距離 |
160m |
写真を見る |
| 周辺施設 |
イオン北小金店 |
| 距離 |
158m |
写真を見る |
| 周辺施設 |
ファミリーマート 北小金駅前店 |
| 距離 |
184m |
写真を見る |
| 周辺施設 |
薬 マツモトキヨシ 小金店 |
| 距離 |
295m |
写真を見る |
| 周辺施設 |
ドトールコーヒーショップ イオン北小金店 |
| 距離 |
248m |
写真を見る |
| 周辺施設 |
松戸市立小金小学校 |
| 距離 |
659m |
写真を見る |
| 周辺施設 |
北小金グレースこども園 |
| 距離 |
279m |
写真を見る |
| 周辺施設 |
北小金クリニック |
| 距離 |
165m |
写真を見る |
ここから簡単にお問い合わせをすることができます。
(SSLでの暗号化での送信を希望されるお客さまは
こちら
よりお問い合わせください)
お問い合わせを行う前に
「個人情報の取り扱いについて」を必ずお読みください。
「個人情報の取り扱いについて」に同意いただいた場合は「上記にご同意の上 確認画面へ進む」のボタンをクリックしてください。
個人情報の取り扱いについて
皆さまが送付された個人情報はアットホーム(株)のサーバを経由し、お問い合わせ先の不動産会社にメールまたはFAXにて転送されるためアットホーム(株)にも保管されます。アットホーム(株)で保管された個人情報の取り扱いについては、【こちら】をご覧ください。
また、本画面でご記入いただいた個人情報は、お問い合わせ先の不動産会社でも保管します。 お問い合わせ先の不動産会社が保管する個人情報の取り扱いについては、不動産会社に直接お問い合わせください。
国土交通大臣免許(3)第8522号 |
|---|
- 交通:
- JR常磐線/柏駅 徒歩1分
- 千葉県柏市旭町1丁目1-1 K&Kビル 5階
- TEL:
- 04-7141-8131
- FAX:
- 04-7141-8132
- 所属団体:
- (公社)全日本不動産協会会員(公社)首都圏不動産公正取引協議会加盟
取引態様:仲介  - 00785868
|
- スマートフォンで
この不動産会社を見る

|
- 提携サイト等より掲載されている物件情報につきましては、不動産会社詳細情報にリンクされていないものがあります。
- 物件に関するお問合せは、物件詳細ページの「情報提供会社」に表示されている不動産会社へ直接お願いいたします。
- 間取図は、現況を優先させていただきます。
- 映像は物件の一部を撮影したものです。物件の契約にあたっての最終判断はご自身の判断に基づいて行ってください。
- 仲介手数料について

アットホームは物件情報の適正化に努めております。
内容に誤りがある場合にはこちらへご連絡ください。