東京都目黒区下目黒3丁目(不動前駅)の賃貸:物件詳細
交通 所在地 |
駅徒歩 |
賃料 管理費等 |
敷金/保証金 礼金 |
間取り 面積 |
物件種目 築年月 |
|
東急目黒線/不動前
東京都目黒区下目黒3丁目
|
8分
|
10.2万円
12,000円
|
1ヶ月 / なし
1ヶ月
|
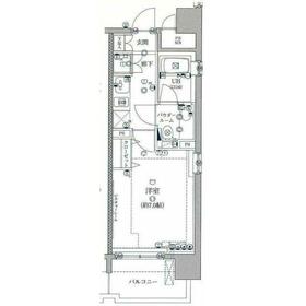
1K
23.83m²
|
賃貸マンション
2003年5月(築22年6ヶ月)
|
分譲タイプ、角部屋、2面採光、保証人不要
|
|
間取図
|
外観
|
その他の画像
|
| 交通 | 東急目黒線 不動前駅 徒歩8分 |
|---|
| その他の交通 | 都営三田線 目黒駅 徒歩9分 東京メトロ南北線 目黒駅 徒歩9分 |
| 所在地 |
東京都目黒区下目黒3丁目
|
| 物件種目 |
賃貸マンション |
| 賃料 |
10.2万円 |
管理費等 |
12,000円 |
| 敷金 / 保証金 |
1ヶ月 / なし |
礼金 |
1ヶ月 |
| 敷引 |
- |
保証金償却 |
- |
| その他一時金 |
24時間緊急対応費:16,500円、事務手数料:16,500円、鍵交換代等:31,900円~ |
保険等 |
要 2年 16,800円 |
| 維持費等 |
- |
| 間取り |
1K(洋室7.0帖) |
専有面積 |
23.83m² |
| 築年月 |
2003年5月(築22年6ヶ月)
|
階建 / 階 |
11階建 / 5階 |
| 建物構造 |
RC |
総戸数 |
- |
| 主要採光面 |
北東 |
駐車場 |
- |
| バイク置き場 |
- |
駐輪場 |
- |
| 建物名・部屋番号 |
アクロス目黒 503 |
ペット |
-
|
| アピールポイント |
インターネット無料 不動前駅徒歩8分 分譲賃貸マンション 角部屋2面採光 オートロック 宅配ボックス |
| リフォーム履歴 |
- |
| リノベーション履歴 |
- |
| 備考 |
賃貸保証等:加入要(50%~)
管理形態/管理員の勤務形態:-/-
バルコニー:3.97m²
▼更新手数料:22000円▼解約予告2ヶ月前▼法人社宅契約相談可▼保証会社未加入の場合、敷金2ヶ月・礼金2ヶ月▼ペット飼育不可▼退去時基本クリーニング費用:1650円/m2▼駐輪場・バイク置場要確認
|
| エネルギー消費性能 |
- |
| 断熱性能 |
- |
| 目安光熱費 |
- |
| バス・トイレ |
バス・トイレ別、浴室乾燥機、洗面所独立、洗面所、洗面台、シャワー、温水洗浄便座、トイレ、浴室に窓あり |
| キッチン |
システムキッチン、2口コンロ |
| セキュリティー |
オートロック、モニター付インターホン、防犯カメラ、火災警報器(報知機) |
| 収納 |
収納スペース、クローゼット、シューズボックス |
| 設備・サービス |
室内洗濯機置場、給湯、全居室フローリング、フローリング、エアコン、暖房、冷房 |
| TV・通信 |
インターネット対応、インターネット使用料無料、光ファイバー |
| その他 |
宅配BOX、バルコニー、エレベーター |
| 契約期間 |
2年 |
現況 |
居住中 |
| 条件等 |
- |
入居可能時期 |
相談 |
| 更新料 |
新賃料 1.5ヶ月 |
物件番号 |
1154510115 |
| 情報公開日 |
2025年10月19日 |
次回更新予定日 |
2025年11月2日 |
| ケータイ用バーコード |
- スマートフォンでこの物件を見る
- スマートフォンからもこの物件をご覧になれます。
|
※「-」と表示されている項目については、情報提供会社にご確認ください。
| 周辺施設 |
不動前駅(東急電鉄 目黒線) |
| 距離 |
570m |
写真を見る |
ここから簡単にお問い合わせをすることができます。
(SSLでの暗号化での送信を希望されるお客さまは
こちら
よりお問い合わせください)
お問い合わせを行う前に
「個人情報の取り扱いについて」を必ずお読みください。
「個人情報の取り扱いについて」に同意いただいた場合は「上記にご同意の上 確認画面へ進む」のボタンをクリックしてください。
個人情報の取り扱いについて
皆さまが送付された個人情報はアットホーム(株)のサーバを経由し、お問い合わせ先の不動産会社にメールまたはFAXにて転送されるためアットホーム(株)にも保管されます。アットホーム(株)で保管された個人情報の取り扱いについては、【こちら】をご覧ください。
また、本画面でご記入いただいた個人情報は、お問い合わせ先の不動産会社でも保管します。 お問い合わせ先の不動産会社が保管する個人情報の取り扱いについては、不動産会社に直接お問い合わせください。
東京都知事免許(6)第76891号 |
|---|
- 交通:
- 東京メトロ南北線/白金高輪駅 徒歩1分
- 東京都港区高輪1丁目3-19
- TEL:
- 03-6228-4882
- FAX:
- 03-6456-2581
- 所属団体:
- (公社)全日本不動産協会会員(公社)首都圏不動産公正取引協議会加盟
取引態様:仲介  - 00275548
|
- スマートフォンで
この不動産会社を見る

|
- 提携サイト等より掲載されている物件情報につきましては、不動産会社詳細情報にリンクされていないものがあります。
- 物件に関するお問合せは、物件詳細ページの「情報提供会社」に表示されている不動産会社へ直接お願いいたします。
- 間取図は、現況を優先させていただきます。
- 映像は物件の一部を撮影したものです。物件の契約にあたっての最終判断はご自身の判断に基づいて行ってください。
- 仲介手数料について

アットホームは物件情報の適正化に努めております。
内容に誤りがある場合にはこちらへご連絡ください。