不動産 賃貸 マンション等の住宅情報:埼玉住まい情報


千葉県松戸市松戸(松戸駅)の賃貸:物件詳細

  • 物件詳細
  • 情報の見方
  • 印刷用画面
交通
所在地
駅徒歩 賃料
管理費等
敷金/保証金
礼金
間取り
面積
物件種目
築年月

JR常磐線/松戸 新着

千葉県松戸市松戸

19分

5.5万円

3,000円

1ヶ月 / なし

1ヶ月

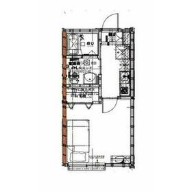
1K

19.37m²

賃貸アパート

2023年8月(築2年3ヶ月)

おすすめPOINT最上階

おすすめコメント

新生活を失敗せず、スタートさせたいならこちらの「グランソフィア松戸」はいかがでしょうか。宅配ボックスがあるので家に不在の場合でも、最短の時間で荷物を受け取ることができます。収納はクロゼット・シューズボ

間取図

間取図

外観

外観

<
その他の画像
  • リビング
  • 室内
  • キッチン
  • バス/シャワー
  • 収納
  • 洗面
  • その他
  • トイレ
  • 設備
  • その他
  • 室内
  • 玄関
  • 眺望
  • エントランス
  • 共有部分
  • 周辺環境
  • 販売店
  • 販売店
  • ショッピング施設
  • コンビニ
  • コンビニ
  • コンビニ
  • 販売店
  • 販売店
>
    • とりあえず保存
    • お問い合わせ
    交通

    JR常磐線 松戸駅 徒歩19分

    その他の交通

    北総線 北国分駅 徒歩28分

    JR千代田・常磐緩行線 松戸駅 徒歩19分

    所在地 千葉県松戸市松戸
    物件種目 賃貸アパート
    賃料 5.5万円 管理費等 3,000円
    敷金 / 保証金 1ヶ月 / なし 礼金 1ヶ月
    敷引 保証金償却
    その他一時金 ホームマイスター24:16,500円、鍵交換代等:27,500円~ 保険等
    維持費等 クレジットカード決済 初期費用可
    間取り 1K(洋6、K1.6) 専有面積 19.37m²
    築年月 2023年8月(築2年3ヶ月) 階建 / 階 2階建 / 2階
    建物構造 木造 総戸数
    主要採光面 南東 駐車場
    バイク置き場 駐輪場 有 無料
    建物名・部屋番号 グランソフィア松戸 202 ペット
    リフォーム履歴
    リノベーション履歴
    備考
    賃貸保証等:加入要(期間:2年 初回保証料:賃料等の50% 継続保証料:1年毎に1万円)
    管理形態/管理員の勤務形態:-/-
    単身者限定
    こだわりポイント満載のグランソフィア松戸。当社には、こだわり条件や特集が満載です。松戸市エリアや常磐線松戸付近できっと素敵なお部屋が見つかることでしょう。
    短期解約違約金有り(1年未満/賃料の1ヶ月分)。町会費発生時、借主の加入と負担有り。退去時ハウスクリーニング費用(25,000円税別)借主負担。
    初期費用のクレジット決済が可能
    エネルギー消費性能
    断熱性能
    目安光熱費
    バス・トイレ バス・トイレ別、浴室乾燥機、洗面所独立、洗面所、洗面台、シャワー、温水洗浄便座、トイレ
    キッチン IHクッキングヒーター
    セキュリティー モニター付インターホン
    収納 収納スペース、クローゼット、シューズボックス
    設備・サービス 室内洗濯機置場、洗濯機置場、フローリング、プロパンガス、エアコン
    TV・通信 インターネット使用料無料
    その他 宅配BOX、駐輪場
    契約期間 2年 現況 居住中
    条件等 入居可能時期 2025年12月中旬予定
    更新料 新賃料 1ヶ月 物件番号 1154718216
    情報公開日 2025年10月25日 次回更新予定日 2025年11月8日
    ケータイ用バーコード

    QRコード

    スマートフォンでこの物件を見る
    スマートフォンからもこの物件をご覧になれます。
    ※「-」と表示されている項目については、情報提供会社にご確認ください。

    この物件の周辺情報

    周辺施設 リブレ京成三矢小台店
    距離 944m
    周辺施設 イトーヨーカドー 松戸店
    距離 1374m
    周辺施設 アトレ松戸
    距離 1489m
    周辺施設 セブン-イレブン松戸小山店
    距離 1002m
    周辺施設 セブン‐イレブン 松戸郵便局前店
    距離 870m
    周辺施設 セブン-イレブン松戸三矢小台店
    距離 1119m
    周辺施設 ドラッグストアスマイル松戸駅東口店
    距離 1362m
    周辺施設 ドラッグストア マツモトキヨシ マミーマート松戸新田店
    距離 1702m

    クイックお問い合わせ

    ここから簡単にお問い合わせをすることができます。
    (SSLでの暗号化での送信を希望されるお客さまは こちら よりお問い合わせください)

    お問い合わせ内容(必須)
    お名前(必須) 姓  名 
    メールアドレス(必須)
    ※携帯電話のメールアドレスをご入力される方はこちらをご確認ください
    電話番号(必須)
    - -

    ※入力いただいた電話番号へSMSまたは音声でパスワードをご連絡します。

    携帯電話の番号をご入力の方へ

    携帯電話の番号をご入力の方へ
    確認画面にて送信ボタンをクリックするとSMSが携帯電話に届きます。
    そのSMSに記載のパスワード(認証番号)を入力し、お問い合わせを完了してください。
    尚、SMSの送信者番号は 0005 202 760 となります。
    これはアットホームの固定番号です。

    備考欄 希望条件、物件案内希望日、質問などがございましたらご記入ください。
    お問い合わせを行う前に「個人情報の取り扱いについて」を必ずお読みください。
    「個人情報の取り扱いについて」に同意いただいた場合は「上記にご同意の上 確認画面へ進む」のボタンをクリックしてください。

    個人情報の取り扱いについて

    皆さまが送付された個人情報はアットホーム(株)のサーバを経由し、お問い合わせ先の不動産会社にメールまたはFAXにて転送されるためアットホーム(株)にも保管されます。アットホーム(株)で保管された個人情報の取り扱いについては、【こちら】をご覧ください。
    また、本画面でご記入いただいた個人情報は、お問い合わせ先の不動産会社でも保管します。 お問い合わせ先の不動産会社が保管する個人情報の取り扱いについては、不動産会社に直接お問い合わせください。

    情報提供会社

    情報提供会社

    アールフィールズ(株)

    千葉県知事免許(3)第16390号

    交通:
    JR千代田・常磐緩行線/馬橋駅 徒歩6分
    千葉県松戸市西馬橋蔵元町183 シティプラザⅡ 1F
    TEL:
    047-701-7935
    FAX:
    047-701-7936
    所属団体:
    (一社)千葉県宅地建物取引業協会会員
    (公社)首都圏不動産公正取引協議会加盟

    取引態様:仲介

    • 会社情報
    • 00265307
    スマートフォンで
    この不動産会社を見る
    QRコード
    • とりあえず保存
    • お問い合わせ
    • 提携サイト等より掲載されている物件情報につきましては、不動産会社詳細情報にリンクされていないものがあります。
    • 物件に関するお問合せは、物件詳細ページの「情報提供会社」に表示されている不動産会社へ直接お願いいたします。
    • 間取図は、現況を優先させていただきます。
    • 映像は物件の一部を撮影したものです。物件の契約にあたっての最終判断はご自身の判断に基づいて行ってください。
    • 仲介手数料について仲介手数料

    アットホームは物件情報の適正化に努めております。 内容に誤りがある場合にはこちらへご連絡ください。

    【埼玉住まい情報】では、日本全国の物件から賃貸マンションや賃貸アパート・賃貸一戸建て等の賃貸住宅情報、新築マンション・分譲マンションや中古マンション等の売買マンション情報、新築一戸建てや中古一戸建てなどの戸建住宅、 土地など、総合的な不動産住宅情報検索サービスを提供致します。
    【埼玉住まい情報】から、選りすぐりの不動産物件を探してみましょう。

    【免責事項】
    このコーナーの運営はアットホーム株式会社(https://www.athome.co.jp/)が行っています。
    このコーナーに掲載している物件情報は、「アットホーム不動産情報ネットワーク」に加盟する不動産会社等(情報提供元)から提供されています。信頼性の高い情報提供が行えるよう、最大限の努力をしておりますが、その内容を保証するものではありません。 利用者のみなさまと各情報提供元との取引に起因する損害および情報が掲載されたことに起因する損害等については、株式会社イーシティ埼玉、およびアットホームは一切責任を負いません。
    各物件情報の内容や画像等はすべて現況を優先させていただきます。
    お取引等(お取引の準備、資金調達等を含みます)の際には、内容や契約条件等について、各情報提供元より十分な説明を受け、ご自身でご確認の上、判断してください。
    このコーナーへの物件情報のご掲載、その他不動産業務ソリューション等についての不動産会社様のお問合せはこちらからお願いいたします。

    物件画像: