神奈川県横浜市港北区新横浜1丁目(新横浜駅)の賃貸:物件詳細
交通 所在地 |
駅徒歩 |
賃料 管理費等 |
敷金/保証金 礼金 |
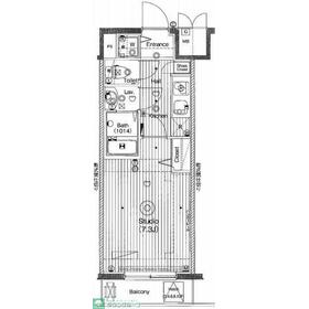
間取り 面積 |
物件種目 築年月 |
ブルーライン/新横浜
神奈川県横浜市港北区新横浜1丁目
|
9分
|
7.2万円
10,000円
|
なし / 1ヶ月
なし
|
ワンルーム
23.68m²
|
賃貸マンション
2010年9月(築15年2ヶ月)
|
分譲タイプ、常時ゴミ出し可能、24時間セキュリティー、24時間換気システム、外観タイル張り、IT重説対応物件
|
間取図
|
外観
|
<
その他の画像
>
|
交通 | ブルーライン 新横浜駅 徒歩9分 |
---|
その他の交通 | JR横浜線 小机駅 徒歩19分 ブルーライン 岸根公園駅 徒歩21分 |
所在地 |
神奈川県横浜市港北区新横浜1丁目
|
物件種目 |
賃貸マンション |
賃料 |
7.2万円 |
管理費等 |
10,000円 |
敷金 / 保証金 |
なし / 1ヶ月 |
礼金 |
なし |
敷引 |
- |
保証金償却 |
- |
その他一時金 |
契約事務手数料:11,000円 |
保険等 |
不要 |
維持費等 |
引落手数料:550円/月、火災保険+24時間緊急対応料:2,200円/月 |
間取り |
ワンルーム(洋室7.3帖) |
専有面積 |
23.68m² |
築年月 |
2010年9月(築15年2ヶ月)
|
階建 / 階 |
11階建 / 6階 |
建物構造 |
RC |
総戸数 |
90戸 |
主要採光面 |
南西 |
駐車場 |
近有 22,000円/月 |
バイク置き場 |
- |
駐輪場 |
- |
建物名・部屋番号 |
グランド・ガーラ新横浜South 606 |
ペット |
-
|
アピールポイント |
★人気のバストイレ別で独立洗面台付き、雨の日に便利な浴室乾燥付きのお部屋です★ |
リフォーム履歴 |
- |
リノベーション履歴 |
- |
備考 |
賃貸保証等:加入要(賃貸保証料:0.50ヶ月 初回保証料:総賃料の50%、月額保証料:総賃料の1%(最低1,000円)、引落手数料:550円/月)
管理形態/管理員の勤務形態:-/巡回
IT重説対応物件、管理人巡回
★お気軽にお問合せください★気になる物件はまとめてご紹介いたします!★他社様の掲載物件もお取り扱い可能です★ZOOMでのご相談も承ります★
|
エネルギー消費性能 |
- |
断熱性能 |
- |
目安光熱費 |
- |
バス・トイレ |
バス・トイレ別、浴室乾燥機、洗面所独立、洗面所、洗面台、シャワー、トイレ |
キッチン |
システムキッチン、2口コンロ、ガスコンロ付 |
セキュリティー |
オートロック、モニター付インターホン、防犯カメラ、火災警報器(報知機) |
収納 |
収納スペース、クローゼット、シューズボックス |
設備・サービス |
全居室エアコン、室内洗濯機置場、都市ガス給湯、給湯、フローリング、都市ガス、エアコン |
TV・通信 |
インターネット対応、インターネット使用料無料 |
その他 |
宅配BOX、バルコニー、エレベーター |
契約期間 |
2年 |
現況 |
居住中 |
条件等 |
- |
入居可能時期 |
2026年1月下旬予定 |
更新料 |
新賃料 1.5ヶ月 |
物件番号 |
1155198615 |
情報公開日 |
2025年10月21日 |
次回更新予定日 |
2025年11月4日 |
ケータイ用バーコード |
- スマートフォンでこの物件を見る
- スマートフォンからもこの物件をご覧になれます。
|
※「-」と表示されている項目については、情報提供会社にご確認ください。
周辺施設 |
まいばすけっと |
距離 |
220m |
写真を見る |
周辺施設 |
ファミリーマート |
距離 |
380m |
写真を見る |
周辺施設 |
セブンイレブン |
距離 |
480m |
写真を見る |
周辺施設 |
Fit Care Express |
距離 |
490m |
写真を見る |
周辺施設 |
キュービックプラザ |
距離 |
780m |
写真を見る |
ここから簡単にお問い合わせをすることができます。
(SSLでの暗号化での送信を希望されるお客さまは
こちら
よりお問い合わせください)
お問い合わせを行う前に
「個人情報の取り扱いについて」を必ずお読みください。
「個人情報の取り扱いについて」に同意いただいた場合は「上記にご同意の上 確認画面へ進む」のボタンをクリックしてください。
個人情報の取り扱いについて
皆さまが送付された個人情報はアットホーム(株)のサーバを経由し、お問い合わせ先の不動産会社にメールまたはFAXにて転送されるためアットホーム(株)にも保管されます。アットホーム(株)で保管された個人情報の取り扱いについては、【こちら】をご覧ください。
また、本画面でご記入いただいた個人情報は、お問い合わせ先の不動産会社でも保管します。 お問い合わせ先の不動産会社が保管する個人情報の取り扱いについては、不動産会社に直接お問い合わせください。
国土交通大臣免許(1)第9928号 |
---|
- 交通:
- ブルーライン/センター北駅 徒歩1分
- 神奈川県横浜市都筑区中川中央1丁目4-2 シャリテ・センター北101号室
- TEL:
- 045-915-5120
- FAX:
- 045-915-5121
取引態様:仲介  - 00263213
|
- スマートフォンで
この不動産会社を見る

|
- 提携サイト等より掲載されている物件情報につきましては、不動産会社詳細情報にリンクされていないものがあります。
- 物件に関するお問合せは、物件詳細ページの「情報提供会社」に表示されている不動産会社へ直接お願いいたします。
- 間取図は、現況を優先させていただきます。
- 映像は物件の一部を撮影したものです。物件の契約にあたっての最終判断はご自身の判断に基づいて行ってください。
- 仲介手数料について

アットホームは物件情報の適正化に努めております。
内容に誤りがある場合にはこちらへご連絡ください。