東京都西東京市保谷町3丁目(西武柳沢駅)の賃貸:物件詳細
交通 所在地 |
駅徒歩 |
賃料 管理費等 |
敷金/保証金 礼金 |
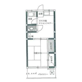
間取り 面積 |
物件種目 築年月 |
|
西武新宿線/西武柳沢
東京都西東京市保谷町3丁目
|
2分
|
5.5万円
なし
|
1ヶ月 / なし
1ヶ月
|
1DK
26.44m²
|
賃貸アパート
1985年9月(築40年2ヶ月)
|
常時ゴミ出し可能、南向き
|
|
間取図
|
外観
|
<
その他の画像
>
|
|
|
| 交通 | 西武新宿線 西武柳沢駅 徒歩2分 |
|---|
| その他の交通 | JR中央線 吉祥寺駅 【バス】 19分 柳沢駅通り 停歩2分 西武池袋線 ひばりヶ丘駅 【バス】 12分 ガード下 停歩8分 |
| 所在地 |
東京都西東京市保谷町3丁目
|
| 物件種目 |
賃貸アパート |
| 賃料 |
5.5万円 |
管理費等 |
なし |
| 敷金 / 保証金 |
1ヶ月 / なし |
礼金 |
1ヶ月 |
| 敷引 |
- |
保証金償却 |
- |
| その他一時金 |
なし |
保険等 |
要 |
| 維持費等 |
- |
クレジットカード決済 |
初期費用可 |
| 間取り |
1DK(和室6) |
専有面積 |
26.44m² |
| 築年月 |
1985年9月(築40年2ヶ月)
|
階建 / 階 |
2階建 / 2階 |
| 建物構造 |
木造 |
総戸数 |
- |
| 主要採光面 |
南 |
駐車場 |
有 18,000円/月 |
| バイク置き場 |
- |
駐輪場 |
- |
| 建物名・部屋番号 |
コーポ保谷 |
ペット |
-
|
| アピールポイント |
☆当店の強みをお伝えします☆
①クレジットカードの初期費用分割払いを、喜んでお受けいたします(クレジットカード以外もOK)
②他社様がネットに掲載されている物件は、全てお調べし、【好条件】でご紹介いたします
他社様で「お申込み」された物件でも、【好条件】でご紹介できる場合がございます
③「審査が不安…」「保証人がいない…」「値段交渉をして欲しい…」などなど、
どのようなご条件でも、遠慮なくご相談いただけます
④ご検討されている「エリア」「沿線」が「広範囲」「複数」でも、一度で漏れなくお探しいただけます
ポータルサイトや他社サイトで気になるお部屋がございましたらお気軽にご相談ください
お客様のご来店を心よりお待ちしております |
| リフォーム履歴 |
- |
| リノベーション履歴 |
- |
| 備考 |
管理形態/管理員の勤務形態:-/-
雑費なし/更新料新賃料の0.5ヶ月分/火災保険家財保険加入要/駐車場あり(舗装18、000円)/解約時ハウスクリーニング費用借主負担あり/鍵交換代借主負担
|
| エネルギー消費性能 |
- |
| 断熱性能 |
- |
| 目安光熱費 |
- |
| バス・トイレ |
バス・トイレ別、オートバス、追焚機能、シャワー、トイレ |
| キッチン |
2口コンロ、ガスコンロ付 |
| セキュリティー |
- |
| 収納 |
- |
| 設備・サービス |
洗濯機置場、都市ガス、エアコン |
| TV・通信 |
インターネット対応、光ファイバー |
| その他 |
バルコニー |
| 契約期間 |
2年 |
現況 |
空家 |
| 条件等 |
- |
入居可能時期 |
即時 |
| 更新料 |
- |
物件番号 |
1155751714 |
| 情報公開日 |
2025年9月29日 |
次回更新予定日 |
2025年11月1日 |
| ケータイ用バーコード |
- スマートフォンでこの物件を見る
- スマートフォンからもこの物件をご覧になれます。
|
※「-」と表示されている項目については、情報提供会社にご確認ください。
| 周辺施設 |
倉喜屋スーパー |
| 距離 |
85m |
写真を見る |
| 周辺施設 |
ローソンストア100 西東京保谷町三丁目店 |
| 距離 |
100m |
写真を見る |
| 周辺施設 |
くすりのダイイチ 西武柳沢北口店 |
| 距離 |
135m |
写真を見る |
| 周辺施設 |
ジョーシン西東京保谷店 |
| 距離 |
616m |
写真を見る |
| 周辺施設 |
リンガーハット 保谷本町店 |
| 距離 |
569m |
写真を見る |
| 周辺施設 |
柳沢駅前郵便局 |
| 距離 |
154m |
写真を見る |
| 周辺施設 |
西東京市柳沢図書館 |
| 距離 |
279m |
写真を見る |
ここから簡単にお問い合わせをすることができます。
(SSLでの暗号化での送信を希望されるお客さまは
こちら
よりお問い合わせください)
お問い合わせを行う前に
「個人情報の取り扱いについて」を必ずお読みください。
「個人情報の取り扱いについて」に同意いただいた場合は「上記にご同意の上 確認画面へ進む」のボタンをクリックしてください。
個人情報の取り扱いについて
皆さまが送付された個人情報はアットホーム(株)のサーバを経由し、お問い合わせ先の不動産会社にメールまたはFAXにて転送されるためアットホーム(株)にも保管されます。アットホーム(株)で保管された個人情報の取り扱いについては、【こちら】をご覧ください。
また、本画面でご記入いただいた個人情報は、お問い合わせ先の不動産会社でも保管します。 お問い合わせ先の不動産会社が保管する個人情報の取り扱いについては、不動産会社に直接お問い合わせください。
国土交通大臣免許(1)第10206号 |
|---|
- 交通:
- 西武池袋線/石神井公園駅 徒歩1分
- 東京都練馬区石神井町3丁目21-10 セリオ石神井公園 1階
- TEL:
- 03-6913-2585
- FAX:
- 03-6913-2686
- 所属団体:
- (公社)全日本不動産協会会員(公社)首都圏不動産公正取引協議会加盟
取引態様:仲介  - 00786317
|
- スマートフォンで
この不動産会社を見る

|
- 提携サイト等より掲載されている物件情報につきましては、不動産会社詳細情報にリンクされていないものがあります。
- 物件に関するお問合せは、物件詳細ページの「情報提供会社」に表示されている不動産会社へ直接お願いいたします。
- 間取図は、現況を優先させていただきます。
- 映像は物件の一部を撮影したものです。物件の契約にあたっての最終判断はご自身の判断に基づいて行ってください。
- 仲介手数料について

アットホームは物件情報の適正化に努めております。
内容に誤りがある場合にはこちらへご連絡ください。