不動産 賃貸 マンション等の住宅情報:埼玉住まい情報


東京都台東区寿3丁目(蔵前駅)の賃貸:物件詳細

  • 物件詳細
  • 情報の見方
  • 印刷用画面
交通
所在地
駅徒歩 賃料
管理費等
敷金/保証金
礼金
間取り
面積
物件種目
築年月

都営大江戸線/蔵前

東京都台東区寿3丁目

3分

5.55万円

10,000円

なし / なし

なし

ワンルーム

14.29m²

賃貸マンション

1973年8月(築52年5ヶ月)

おすすめPOINT角部屋、2面採光、24時間換気システム、外観タイル張り、IT重説対応物件、保証人不要

おすすめコメント

複数駅が徒歩圏内で通勤等に便利な1Rマンションのご紹介です。 お手入れのしやすいフローリングの仕様になっており、インターネットもご対応可能でございます。また、周辺には生活利便施設が多数立地しております

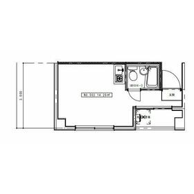
間取図

間取図

外観

外観

<
その他の画像
  • リビング
  • キッチン
  • バス/シャワー
  • 洗面
  • トイレ
  • 設備
  • 室内
  • 玄関
  • バルコニー
  • その他
  • エントランス
  • 共有部分
  • 共有部分
  • 共有部分
  • 共有部分
  • その他
  • その他
  • 外観
  • 販売店
  • コンビニ
  • 販売店
  • 飲食店
  • 飲食店
  • 飲食店
  • 販売店
  • 販売店
>
    • とりあえず保存
    • お問い合わせ
    交通

    都営大江戸線 蔵前駅 徒歩3分

    その他の交通

    東京メトロ銀座線 田原町駅 徒歩7分

    都営浅草線 浅草駅 徒歩11分

    所在地 東京都台東区寿3丁目
    物件種目 賃貸マンション
    賃料 5.55万円 管理費等 10,000円
    敷金 / 保証金 なし / なし 礼金 なし
    敷引 保証金償却
    その他一時金 契約事務手数料:5,500円、室内消毒代:16,500円、鍵交換代等:38,500円~ 保険等
    維持費等 にじいろサポート24(火災保険付):2,200円/月 クレジットカード決済 初期費用可
    間取り ワンルーム(洋6.6) 専有面積 14.29m²
    築年月 1973年8月(築52年5ヶ月) 階建 / 階 6階建 / 5階
    建物構造 RC 総戸数
    主要採光面 北西 駐車場
    バイク置き場 駐輪場
    建物名・部屋番号 吉川ビル 503 ペット
    リフォーム履歴
    リノベーション履歴
    備考
    賃貸保証等:加入要(初回保証料:総賃料の80% 月額保証料:総賃料の1% 決済サービス料:550円/月)
    管理形態/管理員の勤務形態:-/-
    IT重説対応物件
    退去時室内クリーニング費は借主様負担となります。
    短期解約違約金:1年未満の解約の場合、賃料等の1ヶ月分
    本物件は引越業者の指定がございます。
    共用部分の付随設備の詳細(空き状況・料金等)は要確認
    更新事務手数料:5500円
    借主様の瑕疵による汚れ・キズ等は別途ご負担いただきます。
    エネルギー消費性能
    断熱性能
    目安光熱費
    バス・トイレ 洗面台、バス・トイレ同室、シャワー、トイレ
    キッチン ガスコンロ可
    セキュリティー ディンプルキー、防犯カメラ
    収納 収納スペース、シューズボックス
    設備・サービス 洗濯機置場、都市ガス給湯、給湯、フローリング、都市ガス、エアコン、冷房、間接照明、照明器具
    TV・通信 インターネット対応、光ファイバー、ケーブルTV
    その他 バルコニー、エレベーター
    契約期間 2年 現況 空家
    条件等 入居可能時期 2026年1月上旬予定
    仲介手数料 不要    
    更新料 新賃料 1.5ヶ月 物件番号 1155987316
    情報公開日 2025年10月26日 次回更新予定日 2026年1月10日
    ケータイ用バーコード

    QRコード

    スマートフォンでこの物件を見る
    スマートフォンからもこの物件をご覧になれます。
    ※「-」と表示されている項目については、情報提供会社にご確認ください。

    この物件の周辺情報

    周辺施設 まいばすけっと 蔵前駅北店
    距離 220m
    周辺施設 ファミリーマート 台東駒形一丁目店
    距離 164m
    周辺施設 どらっぐぱぱす 浅草雷門店
    距離 606m
    周辺施設 キッチンオリジン 蔵前店
    距離 435m
    周辺施設 マクドナルド 蔵前駅前店
    距離 513m
    周辺施設 ガスト浅草雷門店
    距離 633m
    周辺施設 まいばすけっと 蔵前駅前店
    距離 251m
    周辺施設 まいばすけっと 雷門2丁目店
    距離 478m

    クイックお問い合わせ

    ここから簡単にお問い合わせをすることができます。
    (SSLでの暗号化での送信を希望されるお客さまは こちら よりお問い合わせください)

    お問い合わせ内容(必須)
    お名前(必須) 姓  名 
    メールアドレス(必須)
    ※携帯電話のメールアドレスをご入力される方はこちらをご確認ください
    電話番号(必須)
    - -

    ※入力いただいた電話番号へSMSまたは音声でパスワードをご連絡します。

    携帯電話の番号をご入力の方へ

    携帯電話の番号をご入力の方へ
    確認画面にて送信ボタンをクリックするとSMSが携帯電話に届きます。
    そのSMSに記載のパスワード(認証番号)を入力し、お問い合わせを完了してください。
    尚、SMSの送信者番号は 0005 202 760 となります。
    これはアットホームの固定番号です。

    備考欄 希望条件、物件案内希望日、質問などがございましたらご記入ください。
    お問い合わせを行う前に「個人情報の取り扱いについて」を必ずお読みください。
    「個人情報の取り扱いについて」に同意いただいた場合は「上記にご同意の上 確認画面へ進む」のボタンをクリックしてください。

    個人情報の取り扱いについて

    皆さまが送付された個人情報はアットホーム(株)のサーバを経由し、お問い合わせ先の不動産会社にメールまたはFAXにて転送されるためアットホーム(株)にも保管されます。アットホーム(株)で保管された個人情報の取り扱いについては、【こちら】をご覧ください。
    また、本画面でご記入いただいた個人情報は、お問い合わせ先の不動産会社でも保管します。 お問い合わせ先の不動産会社が保管する個人情報の取り扱いについては、不動産会社に直接お問い合わせください。

    情報提供会社

    情報提供会社

    (株)部屋市場 浅草雷門店

    東京都知事免許(4)第88642号

    交通:
    都営浅草線/浅草駅 徒歩1分
    東京都台東区雷門2丁目4-1 RAID浅草雷門3F
    TEL:
    03-5246-3440
    FAX:
    03-5246-3441
    所属団体:
    (公社)全日本不動産協会会員
    (公社)首都圏不動産公正取引協議会加盟

    取引態様:仲介

    • 会社情報
    • 00278233
    スマートフォンで
    この不動産会社を見る
    QRコード
    • とりあえず保存
    • お問い合わせ
    • 提携サイト等より掲載されている物件情報につきましては、不動産会社詳細情報にリンクされていないものがあります。
    • 物件に関するお問合せは、物件詳細ページの「情報提供会社」に表示されている不動産会社へ直接お願いいたします。
    • 間取図は、現況を優先させていただきます。
    • 映像は物件の一部を撮影したものです。物件の契約にあたっての最終判断はご自身の判断に基づいて行ってください。
    • 仲介手数料について仲介手数料

    アットホームは物件情報の適正化に努めております。 内容に誤りがある場合にはこちらへご連絡ください。

    【埼玉住まい情報】では、日本全国の物件から賃貸マンションや賃貸アパート・賃貸一戸建て等の賃貸住宅情報、新築マンション・分譲マンションや中古マンション等の売買マンション情報、新築一戸建てや中古一戸建てなどの戸建住宅、 土地など、総合的な不動産住宅情報検索サービスを提供致します。
    【埼玉住まい情報】から、選りすぐりの不動産物件を探してみましょう。

    【免責事項】
    このコーナーの運営はアットホーム株式会社(https://www.athome.co.jp/)が行っています。
    このコーナーに掲載している物件情報は、「アットホーム不動産情報ネットワーク」に加盟する不動産会社等(情報提供元)から提供されています。信頼性の高い情報提供が行えるよう、最大限の努力をしておりますが、その内容を保証するものではありません。 利用者のみなさまと各情報提供元との取引に起因する損害および情報が掲載されたことに起因する損害等については、株式会社イーシティ埼玉、およびアットホームは一切責任を負いません。
    各物件情報の内容や画像等はすべて現況を優先させていただきます。
    お取引等(お取引の準備、資金調達等を含みます)の際には、内容や契約条件等について、各情報提供元より十分な説明を受け、ご自身でご確認の上、判断してください。
    このコーナーへの物件情報のご掲載、その他不動産業務ソリューション等についての不動産会社様のお問合せはこちらからお願いいたします。

    物件画像: