神奈川県横浜市都筑区牛久保東1丁目(センター北駅)の賃貸:物件詳細
				
					
					
				
														
	
		
			
				交通 所在地 | 
				駅徒歩 | 
				賃料 管理費等 | 
				敷金/保証金 礼金 | 
				間取り 面積 | 
				物件種目 築年月 | 
			
		
		
			
								| 
					 ブルーライン/センター北
											 
					神奈川県横浜市都筑区牛久保東1丁目 
				 | 
								
					 11分 
				 | 
								
					 22.8万円 
					9,000円 
				 | 
								
					 2ヶ月 / なし 
					なし 
				 | 
								
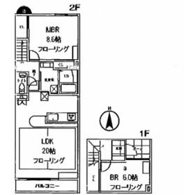
					 2LDK 
					80.00m² 
				 | 
								
					 賃貸マンション 
					2020年10月(築5年2ヶ月)
																				 
				 | 
			
						
				 駐車場2台分、最上階、南向き、二人入居可、閑静な住宅街、メゾネット
  | 
			
					
	
		
		
		
					| 
			 間取図 
			
			
			
			
			間取り図 
		 | 
		
			 外観 
			
			
			
			
			外観 
		 | 
				
		
		
			
				
										<
										
						
							 
							その他の画像
						 
					 
					
										>
									 
				
			 
		 | 
	
				
		| 
			
		 | 
	
		
 
	
		
			
																			          | 交通 | ブルーライン センター北駅 徒歩11分  | 
			
				| 所在地 | 
				
					神奈川県横浜市都筑区牛久保東1丁目
				 | 
			
			
				| 物件種目 | 
				賃貸マンション | 
			
		
		
			
				| 賃料 | 
				22.8万円 | 
				管理費等 | 
				9,000円 | 
			
			
				| 敷金 / 保証金 | 
				2ヶ月 / なし | 
				礼金 | 
				なし | 
			
			
				| 敷引 | 
				- | 
				保証金償却 | 
				- | 
			
			
				| その他一時金 | 
				なし、鍵交換代等:17,380円~ | 
				保険等 | 
				要 | 
			
						
				| 維持費等 | 
				- | 
				クレジットカード決済 | 
				初期費用可 | 
			
					
		
			
				| 間取り | 
				2LDK(洋6、洋8.6、LDK20) | 
				専有面積 | 
				80.00m² | 
			
			
				| 築年月 | 
				2020年10月(築5年2ヶ月)
												 | 
				階建 / 階 | 
				2階建 / メゾネット1階~2階部分 | 
			
			
				| 建物構造 | 
				RC | 
				総戸数 | 
				- | 
			
			
				| 主要採光面 | 
				南 | 
				駐車場 | 
				有 無料 | 
			
			
				| バイク置き場 | 
				有 無料 | 
				駐輪場 | 
				有 無料 | 
			
			
				| 建物名・部屋番号 | 
				OliveGarden(オリーブガーデン) C | 
				ペット | 
				
								-
								 | 
			
			
	| アピールポイント | 
	中川小学校区、中川中学校区、人気のセンター北駅から徒歩11分、駅までほぼ平坦な安心の遊歩道。駐車場2台分のフリースペース付きメゾネットタイプの2LDK。床暖房、2400mmの広々システムキッチン(食器洗い乾燥機設置用台付)、追い焚き、温水洗浄便座、全室エアコン付など設備充実しております。ホームセキュリティ、専用宅配ロッカーなどセキュリティ面も配慮。センター北駅周辺は、阪急モザイクモール港北・ノースポートモール・ショッピングタウンあいたい・港北minamoの4つの大型商業施設に加え、プレミアヨコハマやYOTSUBAKOなど、お買い物や休日のお出かけも楽しめる施設がそろっております。また周辺には公園など緑も多く、落ち着いた街並みと生活に便利な施設が共存した、幅広い世代に人気のエリアとなっております。 | 
			
				| リフォーム履歴 | 
				- | 
			
			
				| リノベーション履歴 | 
				- | 
			
			
				| 備考 | 
				
					 
																	賃貸保証等:加入要(①総賃料の30%/初回、以降2年毎30%又は②総賃料の77%/初回、以降1年毎2,000円※②は別途、新規契約時に審査事務手数料の負担有(個人契約1,100円、法人契約2,200円※どちらも税込))
											 						管理形態/管理員の勤務形態:-/巡回
											 						管理人巡回
											 						以下、おすすめの設備情報となります。 
当社のホームページに未掲載写真あり 写真は別室参考画像となります。駐車場2台分のフリースペース付。床暖房、2400mmの広々システムキッチン(食器洗い乾燥機設置用台付)、追い焚き、温水洗浄便座、全室エアコン付。ホームセキュリティ、専用宅配ロッカー
										 
					
				 | 
			
		
				
		
		| エネルギー消費性能 | 
		- | 
	
	
		| 断熱性能 | 
		- | 
	
	
		| 目安光熱費 | 
		- | 
	
	
		
									
				| バス・トイレ | 
				バス・トイレ別、オートバス、追焚機能、シャワー付洗面化粧台、洗面所独立、洗面所、シャワー、温水洗浄便座、トイレ | 
			
						
				| キッチン | 
				カウンターキッチン、システムキッチン、独立型キッチン、3口以上コンロ、ガスコンロ可 | 
			
						
				| セキュリティー | 
				モニター付インターホン、ダブルロックドア、防犯カメラ | 
			
						
				| 収納 | 
				全居室収納、収納スペース、クローゼット、シューズボックス | 
			
						
				| 設備・サービス | 
				全居室エアコン、エアコン2台以上、床暖房、室内洗濯機置場、洗濯機置場、給湯、全居室フローリング、フローリング、エアコン、暖房、ダウンライト、照明器具、複層ガラス | 
			
						
				| TV・通信 | 
				ケーブルTV | 
			
						
				| その他 | 
				宅配BOX、バイク置き場、バルコニー、駐輪場 | 
			
					
		
			
				| 契約期間 | 
				2年 | 
				現況 | 
				空家 | 
			
			
				| 条件等 | 
				- | 
				入居可能時期 | 
				相談 | 
			
						
				| 更新料 | 
				新賃料 1ヶ月 | 
				物件番号 | 
				1156105316 | 
			
			
				| 情報公開日 | 
				2025年10月27日 | 
				次回更新予定日 | 
				2025年11月10日 | 
			
						
				| ケータイ用バーコード | 
				
				
					
					
						
							- スマートフォンでこの物件を見る
 
							- スマートフォンからもこの物件をご覧になれます。
 
						 
					 
				 
				 | 
			
					
	 
	 									※「-」と表示されている項目については、情報提供会社にご確認ください。
						
	
			
			
			
				
					
						
							| 周辺施設 | 
							YOTSUBAKO | 
						
						
							| 距離 | 
							963m | 
							写真を見る | 						
					
				
			 
		 
					
		 
				
			
			
				
					
						
							| 周辺施設 | 
							フジガーデン | 
						
						
							| 距離 | 
							1028m | 
							写真を見る | 						
					
				
			 
		 
					
			
				
					
						
							| 周辺施設 | 
							ノースポート・モール | 
						
						
							| 距離 | 
							789m | 
							写真を見る | 						
					
				
			 
		 
		 
				
			
			
				
					
						
							| 周辺施設 | 
							セブン-イレブン 横浜牛久保東1丁目店 | 
						
						
							| 距離 | 
							520m | 
							写真を見る | 						
					
				
			 
		 
					
			
				
					
						
							| 周辺施設 | 
							FitCare | 
						
						
							| 距離 | 
							1028m | 
							写真を見る | 						
					
				
			 
		 
		 
				
			
			
				
					
						
							| 周辺施設 | 
							横浜市立中川小学校 | 
						
						
							| 距離 | 
							284m | 
							写真を見る | 						
					
				
			 
		 
					
			
				
					
						
							| 周辺施設 | 
							横浜市立中川中学校 | 
						
						
							| 距離 | 
							790m | 
							写真を見る | 						
					
				
			 
		 
		 
		 									
												
					
					  ここから簡単にお問い合わせをすることができます。
(SSLでの暗号化での送信を希望されるお客さまは
													こちら
											  よりお問い合わせください)
					  
					
						
						
					
					お問い合わせを行う前に
「個人情報の取り扱いについて」を必ずお読みください。
「個人情報の取り扱いについて」に同意いただいた場合は「上記にご同意の上 確認画面へ進む」のボタンをクリックしてください。 
 
					
					
						個人情報の取り扱いについて
						皆さまが送付された個人情報はアットホーム(株)のサーバを経由し、お問い合わせ先の不動産会社にメールまたはFAXにて転送されるためアットホーム(株)にも保管されます。アットホーム(株)で保管された個人情報の取り扱いについては、【こちら】をご覧ください。
						また、本画面でご記入いただいた個人情報は、お問い合わせ先の不動産会社でも保管します。 お問い合わせ先の不動産会社が保管する個人情報の取り扱いについては、不動産会社に直接お問い合わせください。
					 
				 
				
														
				  
				  
					神奈川県知事免許(1)第31573号  | 
|---|
- 交通:
 - 東急田園都市線/宮崎台駅 徒歩1分
 - 神奈川県川崎市宮前区宮崎2丁目12-1 宮崎台プラザビルB103
 - TEL:
 - 044-866-1228
 - FAX:
 - 044-866-1229
 - 所属団体:
 - (公社)神奈川県宅地建物取引業協会会員(公社)首都圏不動産公正取引協議会加盟
 
 取引態様:仲介  - 00272441
 
  | 
						  						  
							
							  
								- スマートフォンで
 この不動産会社を見る 
								    
							   
							 
						   | 
						  						
					  
					 
				   
				 
							
						
												
			
					
- 提携サイト等より掲載されている物件情報につきましては、不動産会社詳細情報にリンクされていないものがあります。
 
- 物件に関するお問合せは、物件詳細ページの「情報提供会社」に表示されている不動産会社へ直接お願いいたします。
 
- 間取図は、現況を優先させていただきます。
 
- 映像は物件の一部を撮影したものです。物件の契約にあたっての最終判断はご自身の判断に基づいて行ってください。
 
- 仲介手数料について

 
アットホームは物件情報の適正化に努めております。
内容に誤りがある場合にはこちらへご連絡ください。