東京都渋谷区大山町(代々木上原駅)の賃貸:物件詳細
交通 所在地 |
駅徒歩 |
賃料 管理費等 |
敷金/保証金 礼金 |
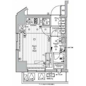
間取り 面積 |
物件種目 築年月 |
|
東京メトロ千代田線/代々木上原
東京都渋谷区大山町
|
3分
|
13.9万円
15,000円
|
1ヶ月 / なし
1ヶ月
|
ワンルーム
23.27m²
|
賃貸マンション
2020年1月(築5年10ヶ月)
|
ペット相談、デザイナーズ、分譲タイプ、常時ゴミ出し可能、角部屋、二人入居可、全室2面採光、2面採光、24時間換気システム、外観タイル張り、保証人不要
|
|
間取図
|
外観
外観も気になるポイント
|
<
その他の画像
>
|
| 交通 | 東京メトロ千代田線 代々木上原駅 徒歩3分 |
|---|
| その他の交通 | 小田急小田原線 東北沢駅 徒歩9分 京王井の頭線 池ノ上駅 徒歩17分 |
| 所在地 |
東京都渋谷区大山町
|
| 物件種目 |
賃貸マンション |
| 賃料 |
13.9万円 |
管理費等 |
15,000円 |
| 敷金 / 保証金 |
1ヶ月 / なし |
礼金 |
1ヶ月 |
| 敷引 |
1ヶ月 |
保証金償却 |
- |
| その他一時金 |
入居中サポート:21,450円、抗菌代:17,600円、事務手数料:11,000円、鍵交換代等:22,000円~ |
保険等 |
要 1年 15,000円 |
| 維持費等 |
- |
| 間取り |
ワンルーム(洋8.6) |
専有面積 |
23.27m² |
| 築年月 |
2020年1月(築5年10ヶ月)
|
階建 / 階 |
8階建 / 3階 |
| 建物構造 |
RC |
総戸数 |
- |
| 主要採光面 |
北 |
駐車場 |
近有 40,000円/月 |
| バイク置き場 |
- |
駐輪場 |
有 |
| 建物名・部屋番号 |
PREMIUM CUBE 代々木上原 |
ペット |
相談 |
| アピールポイント |
セキュリティ面は、TVインターホン・オートロックなど充実しているので、防犯対策もばっちりです。収納はクロゼット・全居室収納など豊富なので、広々と空間を利用することも可能です。共用部にはゴミ出し24時間OK・宅配ボックスなど様々な設備やサービスが揃っているので便利です。室内設備は洗面所独立・浴室乾燥機など豊富に揃っており、過ごしやすいお部屋になっております。防犯カメラ付きマンションなので安心した生活を送れます。徒歩3分に駅がある物件です。こちらのお部屋で新しい生活を始めてみませんか。全居室が扱いやすいフローリングとなっており、掃除も楽々カンタン。いつでも快適空間を味わえる通風良好な気持ちよいマンション。こちらは賃料13.9万円のマンションです。こちらのお部屋は角部屋です。 |
| リフォーム履歴 |
- |
| リノベーション履歴 |
- |
| 備考 |
賃貸保証等:加入要(保証会社必須/~50%)
管理形態/管理員の勤務形態:-/-
セキュリティ面は、TVインターホン・オートロックなどを設置しているので安全面でも優れております。収納はクロゼット・全居室収納など豊富なので、広々と空間を利用することも可能です。室内設備は洗面化粧台・浴室乾燥機など豊富に揃っており、過ごしやすいお部屋になっております。共用部にはゴミ出し24時間OK・宅配ボックスなどが揃っております。ペットが大好きな方にも紹介したい、ペット相談可の物件です。2026年1月という入居期日指定はあるものの、非常に好条件の物件となっております。2020年築の物件です。暗いお部屋でも、照明付きなら明るく照らしてくれます。暮らしやすいワンルームなので一人で住む方にオススメ。バルコニー付きのマンションです。角部屋で人通りが少なく、防犯的にも安心です。
|
| エネルギー消費性能 |
- |
| 断熱性能 |
- |
| 目安光熱費 |
- |
| バス・トイレ |
バス・トイレ別、浴室乾燥機、洗面所独立、洗面所、温水洗浄便座、トイレ |
| キッチン |
オープンキッチン、システムキッチン、2口コンロ、ガスコンロ可 |
| セキュリティー |
モニター付オートロック、オートロック、モニター付インターホン、ディンプルキー、ダブルロックドア、防犯カメラ |
| 収納 |
全居室収納、収納スペース、クローゼット |
| 設備・サービス |
全居室エアコン、室内洗濯機置場、洗濯機置場、全居室フローリング、フローリング、都市ガス、エアコン、冷房、照明器具 |
| TV・通信 |
インターネット対応、インターネット使用料無料、CS、BS端子 |
| その他 |
宅配BOX、バルコニー、駐輪場、エレベーター |
| 契約期間 |
1年 |
現況 |
居住中 |
| 条件等 |
- |
入居可能時期 |
2026年1月下旬予定 |
| 更新料 |
新賃料 1ヶ月 |
物件番号 |
1156129116 |
| 情報公開日 |
2025年10月27日 |
次回更新予定日 |
2025年11月10日 |
| ケータイ用バーコード |
- スマートフォンでこの物件を見る
- スマートフォンからもこの物件をご覧になれます。
|
※「-」と表示されている項目については、情報提供会社にご確認ください。
| 周辺施設 |
まいばすけっと 東北沢駅東口店 |
| 距離 |
678m |
写真を見る |
| 周辺施設 |
肉のハナマサ 富ヶ谷店 |
| 距離 |
1039m |
写真を見る |
| 周辺施設 |
セブンイレブン 渋谷上原3丁目店 |
| 距離 |
601m |
写真を見る |
| 周辺施設 |
フィールド薬局 八幡店 |
| 距離 |
1299m |
写真を見る |
| 周辺施設 |
紀伊國屋書店 笹塚ショッピングモール TWENTY ONE店 |
| 距離 |
1255m |
写真を見る |
ここから簡単にお問い合わせをすることができます。
(SSLでの暗号化での送信を希望されるお客さまは
こちら
よりお問い合わせください)
お問い合わせを行う前に
「個人情報の取り扱いについて」を必ずお読みください。
「個人情報の取り扱いについて」に同意いただいた場合は「上記にご同意の上 確認画面へ進む」のボタンをクリックしてください。
個人情報の取り扱いについて
皆さまが送付された個人情報はアットホーム(株)のサーバを経由し、お問い合わせ先の不動産会社にメールまたはFAXにて転送されるためアットホーム(株)にも保管されます。アットホーム(株)で保管された個人情報の取り扱いについては、【こちら】をご覧ください。
また、本画面でご記入いただいた個人情報は、お問い合わせ先の不動産会社でも保管します。 お問い合わせ先の不動産会社が保管する個人情報の取り扱いについては、不動産会社に直接お問い合わせください。
東京都知事免許(1)第107337号 |
|---|
- 交通:
- JR山手線/新宿駅 徒歩1分
- 東京都新宿区西新宿1丁目3-3 品川ステーションビル新宿5F
- TEL:
- 03-6258-0867
- 所属団体:
- (公社)東京都宅地建物取引業協会会員(公社)首都圏不動産公正取引協議会加盟
取引態様:仲介  - 00278932
|
- スマートフォンで
この不動産会社を見る

|
- 提携サイト等より掲載されている物件情報につきましては、不動産会社詳細情報にリンクされていないものがあります。
- 物件に関するお問合せは、物件詳細ページの「情報提供会社」に表示されている不動産会社へ直接お願いいたします。
- 間取図は、現況を優先させていただきます。
- 映像は物件の一部を撮影したものです。物件の契約にあたっての最終判断はご自身の判断に基づいて行ってください。
- 仲介手数料について

アットホームは物件情報の適正化に努めております。
内容に誤りがある場合にはこちらへご連絡ください。