東京都北区王子本町1丁目(王子駅)の賃貸:物件詳細
交通 所在地 |
駅徒歩 |
賃料 管理費等 |
敷金/保証金 礼金 |
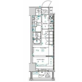
間取り 面積 |
物件種目 築年月 |
|
JR京浜東北線/王子
東京都北区王子本町1丁目
|
10分
|
11.55万円
9,000円
|
なし / なし
なし
|
2K
25.34m²
|
賃貸マンション
2022年3月(築3年10ヶ月)
|
ペット相談、デザイナーズ、二人入居可、24時間換気システム、外観タイル張り、IT重説対応物件、保証人不要
|
|
間取図
|
外観
|
<
その他の画像
>
|
| 交通 | JR京浜東北線 王子駅 徒歩10分 |
|---|
| その他の交通 | 東京メトロ南北線 王子駅 徒歩6分 都電荒川線 飛鳥山駅 徒歩10分 |
| 所在地 |
東京都北区王子本町1丁目
|
| 物件種目 |
賃貸マンション |
| 賃料 |
11.55万円 |
管理費等 |
9,000円 |
| 敷金 / 保証金 |
なし / なし |
礼金 |
なし |
| 敷引 |
- |
保証金償却 |
- |
| その他一時金 |
入居中サポート:16,500円、鍵交換代等:22,000円~ |
保険等 |
要 2年 23,000円 |
| 維持費等 |
- |
| 間取り |
2K |
専有面積 |
25.34m² |
| 築年月 |
2022年3月(築3年10ヶ月)
|
階建 / 階 |
15階建 / 13階 |
| 建物構造 |
RC |
総戸数 |
- |
| 主要採光面 |
北東 |
駐車場 |
- |
| バイク置き場 |
有 無料 |
駐輪場 |
- |
| 建物名・部屋番号 |
アークマーク王子 1302 |
ペット |
相談 |
| アピールポイント |
室内設備は浴室乾燥機・洗面化粧台などが揃っているので、快適に過ごしやすいお部屋になります。収納はシューズボックス・クロゼットなどが備え付けられているので、衣類や日用品の収納に重宝します。セキュリティ面は、オートロック・TVインターホンなどを備え付けているので安心して暮らせます。お風呂に入っていて出られない時でも宅配ボックスがあるので出ることなく荷物を受け取ることができます。駅から徒歩10分に立地する物件です。是非一度ご覧になってみてください。14階にある物件です。エレベーター付き物件です。使って嬉しいCATV対応の物件は、コチラとなっています。インターネット有りのお住まいで、パソコンを使う方にオススメ。天板が一体となっているためコンロとシンクの間に隙間がなく、掃除がしやすいシステムキッチンを備えております。こちらの物件はマンションです。 |
| リフォーム履歴 |
- |
| リノベーション履歴 |
- |
| 備考 |
賃貸保証等:加入要(初回保証料30%または50%)
管理形態/管理員の勤務形態:-/-
IT重説対応物件
ミニストップ 王子本町店まで徒歩2分と近場にコンビニがあるのもポイント。収納はシューズボックス・クロゼットなどが備え付けられているので、衣類や日用品の収納に重宝します。ふたりでの生活は安心感があって快適な生活ができます。住まいに関する情報を数多く提供しております。より自分に適した住まい選びをしていきましょう。私たちもサポート致します。
ペット飼育時条件有
1年未満の解約時、総賃料1ヶ月分の違約金あり
解約予告2か月前
|
| エネルギー消費性能 |
- |
| 断熱性能 |
- |
| 目安光熱費 |
- |
| バス・トイレ |
バス・トイレ別、浴室乾燥機、シャワー付洗面化粧台、洗面所独立、洗面所、洗面台、シャワー、温水洗浄便座、トイレ |
| キッチン |
システムキッチン、2口コンロ、ガスコンロ可 |
| セキュリティー |
モニター付オートロック、オートロック、モニター付インターホン |
| 収納 |
収納スペース、クローゼット、シューズボックス |
| 設備・サービス |
室内洗濯機置場、洗濯機置場、都市ガス給湯、給湯、全居室フローリング、フローリング、都市ガス、エアコン |
| TV・通信 |
インターネット対応、インターネット使用料無料、ケーブルTV、CS、BS端子 |
| その他 |
宅配BOX、バイク置き場、バルコニー、エレベーター |
| 契約期間 |
2年 |
現況 |
居住中 |
| 条件等 |
- |
入居可能時期 |
指定有り2025年12月18日 |
| 仲介手数料 |
1.1ヶ月 |
|
|
| 更新料 |
新賃料 1ヶ月 |
物件番号 |
1156204516 |
| 情報公開日 |
2025年10月27日 |
次回更新予定日 |
2025年12月20日 |
| ケータイ用バーコード |
- スマートフォンでこの物件を見る
- スマートフォンからもこの物件をご覧になれます。
|
※「-」と表示されている項目については、情報提供会社にご確認ください。
| 周辺施設 |
名主の滝公園 |
| 距離 |
556m |
写真を見る |
| 周辺施設 |
ユニクロ 王子神谷店 |
| 距離 |
1355m |
写真を見る |
| 周辺施設 |
ミニストップ 王子本町店 |
| 距離 |
104m |
写真を見る |
| 周辺施設 |
ケーヨーデイツー 東十条店 |
| 距離 |
1916m |
写真を見る |
ここから簡単にお問い合わせをすることができます。
(SSLでの暗号化での送信を希望されるお客さまは
こちら
よりお問い合わせください)
お問い合わせを行う前に
「個人情報の取り扱いについて」を必ずお読みください。
「個人情報の取り扱いについて」に同意いただいた場合は「上記にご同意の上 確認画面へ進む」のボタンをクリックしてください。
個人情報の取り扱いについて
皆さまが送付された個人情報はアットホーム(株)のサーバを経由し、お問い合わせ先の不動産会社にメールまたはFAXにて転送されるためアットホーム(株)にも保管されます。アットホーム(株)で保管された個人情報の取り扱いについては、【こちら】をご覧ください。
また、本画面でご記入いただいた個人情報は、お問い合わせ先の不動産会社でも保管します。 お問い合わせ先の不動産会社が保管する個人情報の取り扱いについては、不動産会社に直接お問い合わせください。
国土交通大臣免許(4)第7400号 |
|---|
- 交通:
- 都営三田線/志村坂上駅 徒歩1分
- 東京都板橋区志村1丁目14-11 1F
- TEL:
- 03-5915-2525
- FAX:
- 03-5915-2555
- 所属団体:
- (公社)全日本不動産協会会員(公社)首都圏不動産公正取引協議会加盟
取引態様:仲介  - 00277087
|
- スマートフォンで
この不動産会社を見る

|
- 提携サイト等より掲載されている物件情報につきましては、不動産会社詳細情報にリンクされていないものがあります。
- 物件に関するお問合せは、物件詳細ページの「情報提供会社」に表示されている不動産会社へ直接お願いいたします。
- 間取図は、現況を優先させていただきます。
- 映像は物件の一部を撮影したものです。物件の契約にあたっての最終判断はご自身の判断に基づいて行ってください。
- 仲介手数料について

アットホームは物件情報の適正化に努めております。
内容に誤りがある場合にはこちらへご連絡ください。