東京都江東区深川2丁目(門前仲町駅)の賃貸:物件詳細
交通 所在地 |
駅徒歩 |
賃料 管理費等 |
敷金/保証金 礼金 |
間取り 面積 |
物件種目 築年月 |
|
東京メトロ東西線/門前仲町
東京都江東区深川2丁目
|
7分
|
16.8万円
12,500円
|
1ヶ月 / なし
1ヶ月
|
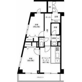
2DK
49.72m²
|
賃貸マンション
1990年1月(築35年10ヶ月)
|
角部屋、振分、二人入居可、24時間セキュリティー、2面採光、24時間換気システム、外観タイル張り、IT重説対応物件、保証人不要
|
|
間取図
☆2LDK☆
|
外観
|
<
その他の画像
>
|
| 交通 | 東京メトロ東西線 門前仲町駅 徒歩7分 |
|---|
| その他の交通 | 東京メトロ半蔵門線 清澄白河駅 徒歩12分 東京メトロ東西線 木場駅 徒歩17分 |
| 所在地 |
東京都江東区深川2丁目
|
| 物件種目 |
賃貸マンション |
| 賃料 |
16.8万円 |
管理費等 |
12,500円 |
| 敷金 / 保証金 |
1ヶ月 / なし |
礼金 |
1ヶ月 |
| 敷引 |
- |
保証金償却 |
- |
| その他一時金 |
なし、鍵交換代等:22,000円~ |
保険等 |
要 2年 20,000円 |
| 維持費等 |
- |
クレジットカード決済 |
初期費用可 賃料可 |
| 間取り |
2DK(DK7.7帖 洋室6.9帖 洋室5.4帖) |
専有面積 |
49.72m² |
| 築年月 |
1990年1月(築35年10ヶ月)
|
階建 / 階 |
5階建 / 3階 |
| 建物構造 |
RC |
総戸数 |
22戸 |
| 主要採光面 |
南西 |
駐車場 |
- |
| バイク置き場 |
- |
駐輪場 |
有 |
| 建物名・部屋番号 |
セゾン深川 301 |
ペット |
-
|
| アピールポイント |
首都圏100店舗以上のネットワークで「礼金無し・ペット可・保証人不要など」ご希望にあわせたお部屋をご紹介させていただきます。その他インターネット上の物件も取り扱い可能です!まとめてご案内可能ですので是非ご利用下さいませ!お部屋探しはタウンハウジングにお任せください。
|
| リフォーム履歴 |
- |
| リノベーション履歴 |
- |
| 備考 |
賃貸保証等:加入要(賃貸保証料:0.35ヶ月 月額1% 毎年1万円)
管理形態/管理員の勤務形態:-/巡回
IT重説対応物件、管理人巡回
お部屋の詳細はどんなことでもお問い合わせください!
【初期費用一部クレジット決済相談可】
|
| エネルギー消費性能 |
- |
| 断熱性能 |
- |
| 目安光熱費 |
- |
| バス・トイレ |
バス・トイレ別、シャワー付洗面化粧台、洗面所独立、洗面所、洗面台、シャワー、トイレ |
| キッチン |
システムキッチン、独立型キッチン、3口以上コンロ、ガスコンロ付、グリル |
| セキュリティー |
オートロック、火災警報器(報知機) |
| 収納 |
全居室収納、収納スペース、クローゼット、シューズボックス |
| 設備・サービス |
室内洗濯機置場、都市ガス給湯、給湯、フローリング、都市ガス、エアコン、暖房、冷房 |
| TV・通信 |
インターネット対応、光ファイバー、ケーブルTV、BS端子 |
| その他 |
バルコニー、駐輪場、エレベーター |
| 契約期間 |
2年 |
現況 |
空家 |
| 条件等 |
- |
入居可能時期 |
即時 |
| 更新料 |
新賃料 1ヶ月 |
物件番号 |
1156237415 |
| 情報公開日 |
2025年10月24日 |
次回更新予定日 |
2025年11月7日 |
| ケータイ用バーコード |
- スマートフォンでこの物件を見る
- スマートフォンからもこの物件をご覧になれます。
|
※「-」と表示されている項目については、情報提供会社にご確認ください。
| 周辺施設 |
まいばすけっと深川2丁目店 |
| 距離 |
135m |
写真を見る |
| 周辺施設 |
アブアブ赤札堂深川店 |
| 距離 |
546m |
写真を見る |
| 周辺施設 |
ミニストップ深川冬木店 |
| 距離 |
151m |
写真を見る |
| 周辺施設 |
ローソン深川一丁目店 |
| 距離 |
356m |
写真を見る |
| 周辺施設 |
ドラッグストアスマイル門前仲町店 |
| 距離 |
543m |
写真を見る |
| 周辺施設 |
セイジョー門前仲町店 |
| 距離 |
640m |
写真を見る |
ここから簡単にお問い合わせをすることができます。
(SSLでの暗号化での送信を希望されるお客さまは
こちら
よりお問い合わせください)
お問い合わせを行う前に
「個人情報の取り扱いについて」を必ずお読みください。
「個人情報の取り扱いについて」に同意いただいた場合は「上記にご同意の上 確認画面へ進む」のボタンをクリックしてください。
個人情報の取り扱いについて
皆さまが送付された個人情報はアットホーム(株)のサーバを経由し、お問い合わせ先の不動産会社にメールまたはFAXにて転送されるためアットホーム(株)にも保管されます。アットホーム(株)で保管された個人情報の取り扱いについては、【こちら】をご覧ください。
また、本画面でご記入いただいた個人情報は、お問い合わせ先の不動産会社でも保管します。 お問い合わせ先の不動産会社が保管する個人情報の取り扱いについては、不動産会社に直接お問い合わせください。
国土交通大臣免許(1)第9926号 |
|---|
- 交通:
- JR総武本線/錦糸町駅 徒歩3分
- 東京都墨田区江東橋2丁目14-6 JU錦糸町駅前ビル1階
- TEL:
- 03-3634-6055
- FAX:
- 03-3634-6056
- 所属団体:
- 所属団体未加入会員
取引態様:仲介  - 00270804
|
- スマートフォンで
この不動産会社を見る

|
- 提携サイト等より掲載されている物件情報につきましては、不動産会社詳細情報にリンクされていないものがあります。
- 物件に関するお問合せは、物件詳細ページの「情報提供会社」に表示されている不動産会社へ直接お願いいたします。
- 間取図は、現況を優先させていただきます。
- 映像は物件の一部を撮影したものです。物件の契約にあたっての最終判断はご自身の判断に基づいて行ってください。
- 仲介手数料について

アットホームは物件情報の適正化に努めております。
内容に誤りがある場合にはこちらへご連絡ください。