埼玉県川越市新富町2丁目(本川越駅)の賃貸:物件詳細
交通 所在地 |
駅徒歩 |
賃料 管理費等 |
敷金/保証金 礼金 |
間取り 面積 |
物件種目 築年月 |
|
西武新宿線/本川越
埼玉県川越市新富町2丁目
|
5分
|
9.9万円
なし
|
なし / なし
なし
|
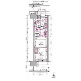
2K
28.71m²
|
賃貸マンション
2024年7月(築1年5ヶ月)
|
分譲タイプ、常時ゴミ出し可能、南向き、24時間セキュリティー、24時間換気システム、閑静な住宅街、外観タイル張り、IT重説対応物件
|
|
間取図
間取図
|
外観
|
<
その他の画像
>
|
| 交通 | 西武新宿線 本川越駅 徒歩5分 |
|---|
| その他の交通 | 東武東上線 川越市駅 徒歩13分 東武東上線 川越駅 徒歩9分 |
| 所在地 |
埼玉県川越市新富町2丁目
|
| 物件種目 |
賃貸マンション |
| 賃料 |
9.9万円 |
管理費等 |
なし |
| 敷金 / 保証金 |
なし / なし |
礼金 |
なし |
| 敷引 |
- |
保証金償却 |
- |
| その他一時金 |
室内清掃費用:44,000円、自治会費 2年毎:3,600円 |
保険等 |
要 2年 20,000円 |
| 維持費等 |
enecoQシステム使用料:1,903円/月、スマートマンションサービス使用料金:528円/月、24時間サポート:500円/月 |
クレジットカード決済 |
初期費用可 |
| 間取り |
2K(洋室4.9帖 洋室4.5帖) |
専有面積 |
28.71m² |
| 築年月 |
2024年7月(築1年5ヶ月)
|
階建 / 階 |
14階建 / 4階 |
| 建物構造 |
RC |
総戸数 |
- |
| 主要採光面 |
南 |
駐車場 |
無 |
| バイク置き場 |
無 |
駐輪場 |
有 300円/月 |
| 建物名・部屋番号 |
プラウド川越 |
ペット |
-
|
| アピールポイント |
他社様の物件もお気軽にご相談ください。当店ならオンライン接客・内見可能です!
|
| リフォーム履歴 |
- |
| リノベーション履歴 |
- |
| 備考 |
賃貸保証等:加入要(基本料:賃料総額50% 、月:賃料総額1% 年間10500円)
管理形態/管理員の勤務形態:-/-
バルコニー:6m²
IT重説対応物件
お部屋探しはタウンハウジングへ!クレジットカード決済が可能なお部屋、お家賃の減額や契約の開始時期などお客様のご希望に合わせた交渉もお気軽にお申し付けください♪親切&丁寧を心がけてご案内!ご見学・ご相談・ご要望なんでもお待ちしております!
|
| エネルギー消費性能 |
- |
| 断熱性能 |
- |
| 目安光熱費 |
- |
| バス・トイレ |
バス・トイレ別、浴室乾燥機、追焚機能、シャワー付洗面化粧台、洗面所独立、洗面所、洗面台、シャワー、温水洗浄便座、トイレ |
| キッチン |
システムキッチン、2口コンロ |
| セキュリティー |
モニター付オートロック、オートロック、モニター付インターホン |
| 収納 |
収納スペース、クローゼット、シューズボックス |
| 設備・サービス |
室内洗濯機置場、給湯、全居室フローリング、フローリング、都市ガス、エアコン |
| TV・通信 |
インターネット対応、インターネット使用料無料、ケーブルTV |
| その他 |
宅配BOX、エレベーター2基以上、バルコニー、駐輪場、エレベーター |
| 契約期間 |
2年 |
現況 |
空家 |
| 条件等 |
定期借家 |
入居可能時期 |
即時 |
| 更新料 |
新賃料 1ヶ月 |
物件番号 |
1156405015 |
| 情報公開日 |
2025年10月24日 |
次回更新予定日 |
2025年11月7日 |
| ケータイ用バーコード |
- スマートフォンでこの物件を見る
- スマートフォンからもこの物件をご覧になれます。
|
※「-」と表示されている項目については、情報提供会社にご確認ください。
| 周辺施設 |
丸広百貨店川越店 |
| 距離 |
40m |
写真を見る |
| 周辺施設 |
ベルク東田町店 |
| 距離 |
900m |
写真を見る |
| 周辺施設 |
ファミリーマート本川越駅前店 |
| 距離 |
350m |
写真を見る |
| 周辺施設 |
ウエルシア川越仙波2号店 |
| 距離 |
830m |
写真を見る |
| 周辺施設 |
ファミリーマート川越駅東店 |
| 距離 |
530m |
写真を見る |
ここから簡単にお問い合わせをすることができます。
(SSLでの暗号化での送信を希望されるお客さまは
こちら
よりお問い合わせください)
お問い合わせを行う前に
「個人情報の取り扱いについて」を必ずお読みください。
「個人情報の取り扱いについて」に同意いただいた場合は「上記にご同意の上 確認画面へ進む」のボタンをクリックしてください。
個人情報の取り扱いについて
皆さまが送付された個人情報はアットホーム(株)のサーバを経由し、お問い合わせ先の不動産会社にメールまたはFAXにて転送されるためアットホーム(株)にも保管されます。アットホーム(株)で保管された個人情報の取り扱いについては、【こちら】をご覧ください。
また、本画面でご記入いただいた個人情報は、お問い合わせ先の不動産会社でも保管します。 お問い合わせ先の不動産会社が保管する個人情報の取り扱いについては、不動産会社に直接お問い合わせください。
国土交通大臣免許(1)第9925号 |
|---|
- 交通:
- 西武池袋線/入間市駅 徒歩3分
- 埼玉県入間市豊岡1丁目3-17 ヨシケンビル1F
- TEL:
- 04-2901-7050
- FAX:
- 04-2901-7051
取引態様:仲介  - 00161774
|
- スマートフォンで
この不動産会社を見る

|
- 提携サイト等より掲載されている物件情報につきましては、不動産会社詳細情報にリンクされていないものがあります。
- 物件に関するお問合せは、物件詳細ページの「情報提供会社」に表示されている不動産会社へ直接お願いいたします。
- 間取図は、現況を優先させていただきます。
- 映像は物件の一部を撮影したものです。物件の契約にあたっての最終判断はご自身の判断に基づいて行ってください。
- 仲介手数料について

アットホームは物件情報の適正化に努めております。
内容に誤りがある場合にはこちらへご連絡ください。