東京都文京区本駒込5丁目(駒込駅)の賃貸:物件詳細
交通 所在地 |
駅徒歩 |
賃料 管理費等 |
敷金/保証金 礼金 |
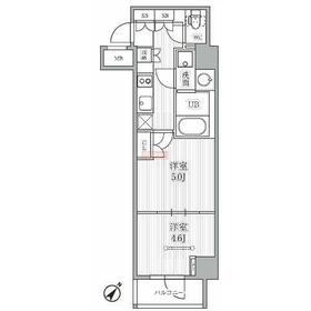
間取り 面積 |
物件種目 築年月 |
|
東京メトロ南北線/駒込
東京都文京区本駒込5丁目
|
6分
|
18万円
10,000円
|
1ヶ月 / なし
なし
|
2K
30.88m²
|
賃貸マンション
2025年8月
|
ペット相談、常時ゴミ出し可能、閑静な住宅街、IT重説対応物件、保証人不要
|
|
間取図
|
外観
外観
|
<
その他の画像
>
|
| 交通 | 東京メトロ南北線 駒込駅 徒歩6分 |
|---|
| その他の交通 | JR山手線 駒込駅 徒歩8分 都営三田線 千石駅 徒歩13分 |
| 所在地 |
東京都文京区本駒込5丁目
|
| 物件種目 |
賃貸マンション |
| 賃料 |
18万円 |
管理費等 |
10,000円 |
| 敷金 / 保証金 |
1ヶ月 / なし |
礼金 |
なし |
| 敷引 |
- |
保証金償却 |
- |
| その他一時金 |
ハウスクリーニング費用(退去時):89,100円 |
保険等 |
要 2年 16,480円 |
| 維持費等 |
- |
クレジットカード決済 |
初期費用可 |
| 間取り |
2K(洋室4.6帖 洋室5.0帖) |
専有面積 |
30.88m² |
| 築年月 |
2025年8月
|
階建 / 階 |
7階建 / 3階 |
| 建物構造 |
RC |
総戸数 |
39戸 |
| 主要採光面 |
南東 |
駐車場 |
無 |
| バイク置き場 |
有 |
駐輪場 |
有 |
| 建物名・部屋番号 |
ジオエント駒込 307 |
ペット |
小型犬可・ 猫可 |
| アピールポイント |
こちらの物件は、来店不要対応物件です。チャットでの相談や、オンラインでの内見に対応しています。また、IT重説を取り入れておりますので、契約までも全て来店不要で完結出来ます。詳細はお問い合わせください。 |
| リフォーム履歴 |
- |
| リノベーション履歴 |
- |
| 備考 |
賃貸保証等:加入要(賃貸保証料:0.50ヶ月 初回保証料50%・月次手数料1%)
管理形態/管理員の勤務形態:-/-
IT重説対応物件
オンライン相談可能・契約時もオンライン・郵送での非接触対応可能です。
|
| エネルギー消費性能 |
- |
| 断熱性能 |
- |
| 目安光熱費 |
- |
| バス・トイレ |
バス・トイレ別、浴室乾燥機、オートバス、追焚機能、シャワー付洗面化粧台、洗面所独立、温水洗浄便座 |
| キッチン |
システムキッチン、2口コンロ、ガスコンロ付 |
| セキュリティー |
モニター付オートロック、オートロック、モニター付インターホン、防犯カメラ |
| 収納 |
トランクルーム、クローゼット、シューズボックス |
| 設備・サービス |
室内洗濯機置場、全居室フローリング、フローリング、都市ガス、エアコン |
| TV・通信 |
インターネット対応、インターネット使用料無料、光ファイバー |
| その他 |
宅配BOX、バイク置き場、バルコニー、駐輪場、エレベーター |
| 契約期間 |
2年 |
現況 |
空家 |
| 条件等 |
- |
入居可能時期 |
即時 |
| 更新料 |
新賃料 1ヶ月 |
物件番号 |
1156525315 |
| 情報公開日 |
2025年10月24日 |
次回更新予定日 |
2025年11月8日 |
| ケータイ用バーコード |
- スマートフォンでこの物件を見る
- スマートフォンからもこの物件をご覧になれます。
|
※「-」と表示されている項目については、情報提供会社にご確認ください。
| 周辺施設 |
セブンイレブン田端3丁目店 |
| 距離 |
440m |
写真を見る |
| 周辺施設 |
マルエツ駒込中里一丁目店 |
| 距離 |
560m |
| 周辺施設 |
ピーコックストア文京グリーンコート店 |
| 距離 |
580m |
| 周辺施設 |
千駄木駅(東京メトロ 千代田線) |
| 距離 |
1640m |
写真を見る |
| 周辺施設 |
わしや 惣菜店 中野店 |
| 距離 |
9090m |
写真を見る |
ここから簡単にお問い合わせをすることができます。
(SSLでの暗号化での送信を希望されるお客さまは
こちら
よりお問い合わせください)
お問い合わせを行う前に
「個人情報の取り扱いについて」を必ずお読みください。
「個人情報の取り扱いについて」に同意いただいた場合は「上記にご同意の上 確認画面へ進む」のボタンをクリックしてください。
個人情報の取り扱いについて
皆さまが送付された個人情報はアットホーム(株)のサーバを経由し、お問い合わせ先の不動産会社にメールまたはFAXにて転送されるためアットホーム(株)にも保管されます。アットホーム(株)で保管された個人情報の取り扱いについては、【こちら】をご覧ください。
また、本画面でご記入いただいた個人情報は、お問い合わせ先の不動産会社でも保管します。 お問い合わせ先の不動産会社が保管する個人情報の取り扱いについては、不動産会社に直接お問い合わせください。
国土交通大臣免許(4)第7352号 |
|---|
- 交通:
- JR中央線/御茶ノ水駅 徒歩1分
- 東京都千代田区神田駿河台2丁目1-19 アルベルゴ御茶ノ水2F
- TEL:
- 0120-51-5432
- FAX:
- 03-5217-0778
- 所属団体:
- (公社)全日本不動産協会会員不動産公正取引協議会加盟
取引態様:仲介  - 00014412
|
- スマートフォンで
この不動産会社を見る

|
- 提携サイト等より掲載されている物件情報につきましては、不動産会社詳細情報にリンクされていないものがあります。
- 物件に関するお問合せは、物件詳細ページの「情報提供会社」に表示されている不動産会社へ直接お願いいたします。
- 間取図は、現況を優先させていただきます。
- 映像は物件の一部を撮影したものです。物件の契約にあたっての最終判断はご自身の判断に基づいて行ってください。
- 仲介手数料について

アットホームは物件情報の適正化に努めております。
内容に誤りがある場合にはこちらへご連絡ください。