東京都豊島区高田2丁目(雑司が谷駅)の賃貸:物件詳細
交通 所在地 |
駅徒歩 |
賃料 管理費等 |
敷金/保証金 礼金 |
間取り 面積 |
物件種目 築年月 |
|
東京メトロ副都心線/雑司が谷
東京都豊島区高田2丁目
|
6分
|
9.05万円
8,000円
|
1ヶ月 / なし
1ヶ月
|
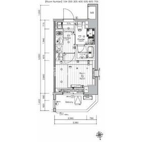
1K
20.29m²
|
賃貸マンション
2014年11月(築11年1ヶ月)
|
ペット相談、分譲タイプ、常時ゴミ出し可能、角部屋、2面採光、24時間換気システム、IT重説対応物件、保証人不要
|
|
間取図
|
外観
|
<
その他の画像
>
|
| 交通 | 東京メトロ副都心線 雑司が谷駅 徒歩6分 |
|---|
| その他の交通 | JR山手線 目白駅 徒歩15分 JR山手線 高田馬場駅 徒歩15分 |
| 所在地 |
東京都豊島区高田2丁目
|
| 物件種目 |
賃貸マンション |
| 賃料 |
9.05万円 |
管理費等 |
8,000円 |
| 敷金 / 保証金 |
1ヶ月 / なし |
礼金 |
1ヶ月 |
| 敷引 |
- |
保証金償却 |
- |
| その他一時金 |
入居者サポート:24,200円、室内清掃費用:52,800円、鍵交換代等:33,000円~ |
保険等 |
要 2年 20,000円 |
| 維持費等 |
- |
| 間取り |
1K(洋6) |
専有面積 |
20.29m² |
| 築年月 |
2014年11月(築11年1ヶ月)
|
階建 / 階 |
9階建 / 5階 |
| 建物構造 |
RC |
総戸数 |
- |
| 主要採光面 |
北 |
駐車場 |
- |
| バイク置き場 |
- |
駐輪場 |
有 |
| 建物名・部屋番号 |
|
ペット |
相談 |
| アピールポイント |
高田公園まで徒歩2分と近いです。室内設備は洗面化粧台・浴室乾燥機などが揃っているので、快適に過ごしやすいお部屋になります。収納はシューズボックス・クロゼットなど豊富なので、広々と空間を利用することも可能です。共用部にはゴミ出し24時間OK・宅配ボックスなどが揃っております。セキュリティ面は、TVインターホン・オートロックなどを備え付けているので安心して暮らせます。シンク下のスペースをより無駄なく利用できるシステムキッチンを採用しております。お洒落な照明付きのマンションなら、洗練された暮らしが送れます。不法投棄やいたずらを防止して入居者が快適に暮らせるように、防犯カメラがあります。間取りは1K。充実した水回りは女性にも好評。同時に料理ができるので忙しい朝でもサッと料理ができる2口コンロを備え付けております。 |
| リフォーム履歴 |
- |
| リノベーション履歴 |
- |
| 備考 |
賃貸保証等:加入要(初回保証料:総賃料の40% 1年毎:10,000円)
管理形態/管理員の勤務形態:-/巡回
IT重説対応物件、管理人巡回
インターネット上で他にも気になるお部屋がございましたら、当社でまとめてご案内可能です。ご不明な点やご質問などございましたら、お気軽に何でもお問い合わせ下さいませ。
収納はクロゼット・シューズボックスなどが備え付けられているので、衣類や日用品の収納に重宝します。セキュリティ面は、オートロック・TVインターホンなどを備え付けているので安心して暮らせます。室内設備は洗面化粧台・浴室乾燥機などが揃っているので、快適に過ごしやすいお部屋になります。共用部にはゴミ出し24時間OK・宅配ボックスなど様々な設備やサービスが揃っているので便利です。周辺に駅が二つあり、交通の利便性が高いです。充実した1人暮らしは1Kのお部屋で始めることができます。何品も作る場合でも同時に料理を進められる、2口コンロを備え付けております。お引っ越しのタイミングはお気軽にご相談ください。照明もついておりますので、買いなおす必要もないですね。こちらは駐輪場付きの物件です。
|
| エネルギー消費性能 |
- |
| 断熱性能 |
- |
| 目安光熱費 |
- |
| バス・トイレ |
バス・トイレ別、浴室乾燥機、洗面所独立、洗面所、洗面台、シャワー、温水洗浄便座、トイレ |
| キッチン |
システムキッチン、2口コンロ、ガスコンロ可 |
| セキュリティー |
モニター付オートロック、オートロック、モニター付インターホン、ディンプルキー、ダブルロックドア、防犯カメラ |
| 収納 |
収納スペース、クローゼット、シューズボックス |
| 設備・サービス |
室内洗濯機置場、洗濯機置場、都市ガス給湯、給湯、フローリング、都市ガス、エアコン、冷房、人感センサー付照明、照明器具 |
| TV・通信 |
インターネット対応、光ファイバー、ケーブルTV、CS、BS端子 |
| その他 |
宅配BOX、バルコニー、駐輪場、エレベーター |
| 契約期間 |
2年 |
現況 |
居住中 |
| 条件等 |
- |
入居可能時期 |
相談 |
| 更新料 |
新賃料 1ヶ月 |
物件番号 |
1156577816 |
| 情報公開日 |
2025年10月27日 |
次回更新予定日 |
2025年11月12日 |
| ケータイ用バーコード |
- スマートフォンでこの物件を見る
- スマートフォンからもこの物件をご覧になれます。
|
※「-」と表示されている項目については、情報提供会社にご確認ください。
| 周辺施設 |
まいばすけっと 面影橋駅東店 |
| 距離 |
526m |
写真を見る |
| 周辺施設 |
ポプラ面影橋店 |
| 距離 |
195m |
写真を見る |
| 周辺施設 |
清水クリニック |
| 距離 |
787m |
写真を見る |
ここから簡単にお問い合わせをすることができます。
(SSLでの暗号化での送信を希望されるお客さまは
こちら
よりお問い合わせください)
お問い合わせを行う前に
「個人情報の取り扱いについて」を必ずお読みください。
「個人情報の取り扱いについて」に同意いただいた場合は「上記にご同意の上 確認画面へ進む」のボタンをクリックしてください。
個人情報の取り扱いについて
皆さまが送付された個人情報はアットホーム(株)のサーバを経由し、お問い合わせ先の不動産会社にメールまたはFAXにて転送されるためアットホーム(株)にも保管されます。アットホーム(株)で保管された個人情報の取り扱いについては、【こちら】をご覧ください。
また、本画面でご記入いただいた個人情報は、お問い合わせ先の不動産会社でも保管します。 お問い合わせ先の不動産会社が保管する個人情報の取り扱いについては、不動産会社に直接お問い合わせください。
東京都知事免許(1)第111656号 |
|---|
- 交通:
- JR山手線/池袋駅
- 東京都豊島区東池袋1丁目42-14 28山京ビル7階8号室
- TEL:
- 03-6820-4263
- 所属団体:
- (公社)全日本不動産協会会員(公社)首都圏不動産公正取引協議会加盟
取引態様:仲介  - 00278775
|
- スマートフォンで
この不動産会社を見る

|
- 提携サイト等より掲載されている物件情報につきましては、不動産会社詳細情報にリンクされていないものがあります。
- 物件に関するお問合せは、物件詳細ページの「情報提供会社」に表示されている不動産会社へ直接お願いいたします。
- 間取図は、現況を優先させていただきます。
- 映像は物件の一部を撮影したものです。物件の契約にあたっての最終判断はご自身の判断に基づいて行ってください。
- 仲介手数料について

アットホームは物件情報の適正化に努めております。
内容に誤りがある場合にはこちらへご連絡ください。