大阪府摂津市千里丘1丁目(千里丘駅)の賃貸:物件詳細
交通 所在地 |
駅徒歩 |
賃料 管理費等 |
敷金/保証金 礼金 |
間取り 面積 |
物件種目 築年月 |
|
JR東海道本線/千里丘
大阪府摂津市千里丘1丁目
|
3分
|
7.5万円
11,000円
|
なし / なし
なし
|
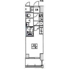
1K
23.78m²
|
賃貸マンション
2021年9月(築4年4ヶ月)
|
ペット相談、保証人不要
|
|
間取図
|
外観
|
<
その他の画像
>
|
| 交通 | JR東海道本線 千里丘駅 徒歩3分 |
|---|
| その他の交通 | 阪急京都線 摂津市駅 徒歩13分 大阪モノレール本線 沢良宜駅 徒歩25分 |
| 所在地 |
大阪府摂津市千里丘1丁目
|
| 物件種目 |
賃貸マンション |
| 賃料 |
7.5万円 |
管理費等 |
11,000円 |
| 敷金 / 保証金 |
なし / なし |
礼金 |
なし |
| 敷引 |
- |
保証金償却 |
- |
| その他一時金 |
室内清掃費用:33,000円、AC清掃代:16,500円、鍵交換代等:27,500円~ |
保険等 |
要 2年 18,000円 |
| 維持費等 |
引落手数料:330円/月 |
クレジットカード決済 |
初期費用可 |
| 間取り |
1K |
専有面積 |
23.78m² |
| 築年月 |
2021年9月(築4年4ヶ月)
|
階建 / 階 |
15階建 / 6階 |
| 建物構造 |
RC |
総戸数 |
- |
| 主要採光面 |
南東 |
駐車場 |
有 16,500円/月 |
| バイク置き場 |
有 2,200円/月 |
駐輪場 |
有 無料 |
| 建物名・部屋番号 |
S-RESIDENCE千里丘 |
ペット |
小型犬可 |
| アピールポイント |
オートロック、宅配ボックス付きの新築マンションです。JR千里丘駅から徒歩3分と好立地です。大通り沿いとなりますので、夜道も安心ですね。エントランスは黒と白を基調としたもので、高級感あふれるものとなっております。お部屋は白のフローリングで清潔感があり、設備も整っております。貴重な犬、猫どちらか1匹が可能な物件となっております。インターネットも無料ですよ。 |
| リフォーム履歴 |
- |
| リノベーション履歴 |
- |
| 備考 |
賃貸保証等:加入要(加入要 / 賃貸保証会社:K-net株式会社【特別コースSA】初回保証料50%、更新料1.2万円/年、口振手数料330円(税込)
管理形態/管理員の勤務形態:-/-
千里丘駅徒歩3分、小型犬・猫どちらか1匹可能です。インターネットも無料です!オートロック、宅配ボックス付きの新築マンションです。
|
| エネルギー消費性能 |
- |
| 断熱性能 |
- |
| 目安光熱費 |
- |
| バス・トイレ |
バス・トイレ別、浴室乾燥機、シャワー付洗面化粧台、洗面所独立、洗面台、温水洗浄便座、トイレ |
| キッチン |
システムキッチン、2口コンロ、ガスコンロ付 |
| セキュリティー |
モニター付オートロック、オートロック、モニター付インターホン、ディンプルキー、防犯カメラ |
| 収納 |
収納スペース、クローゼット、シューズボックス |
| 設備・サービス |
室内洗濯機置場、都市ガス給湯、給湯、フローリング、都市ガス、エアコン |
| TV・通信 |
インターネット対応、インターネット使用料無料、CS、BS端子 |
| その他 |
宅配BOX、バイク置き場、駐輪場、エレベーター |
| 契約期間 |
1年 |
現況 |
空家 |
| 条件等 |
- |
入居可能時期 |
即時 |
| 仲介手数料 |
0.55ヶ月 |
|
|
| 更新料 |
新賃料 1ヶ月 |
物件番号 |
1156807504 |
| 情報公開日 |
2025年11月8日 |
次回更新予定日 |
2026年1月6日 |
| ケータイ用バーコード |
- スマートフォンでこの物件を見る
- スマートフォンからもこの物件をご覧になれます。
|
※「-」と表示されている項目については、情報提供会社にご確認ください。
| 周辺施設 |
千里丘駅(JR 東海道本線) |
| 距離 |
280m |
写真を見る |
| 周辺施設 |
ライフ 正雀店 |
| 距離 |
2340m |
写真を見る |
| 周辺施設 |
セブンイレブン 千里丘4丁目店 |
| 距離 |
920m |
写真を見る |
| 周辺施設 |
ココカラファイン岸辺店 |
| 距離 |
2180m |
写真を見る |
| 周辺施設 |
たかぎこどもクリニック |
| 距離 |
2250m |
写真を見る |
| 周辺施設 |
摂津郵便局 |
| 距離 |
1570m |
写真を見る |
| 周辺施設 |
北おおさか信用金庫富田支店 |
| 距離 |
6880m |
写真を見る |
ここから簡単にお問い合わせをすることができます。
(SSLでの暗号化での送信を希望されるお客さまは
こちら
よりお問い合わせください)
お問い合わせを行う前に
「個人情報の取り扱いについて」を必ずお読みください。
「個人情報の取り扱いについて」に同意いただいた場合は「上記にご同意の上 確認画面へ進む」のボタンをクリックしてください。
個人情報の取り扱いについて
皆さまが送付された個人情報はアットホーム(株)のサーバを経由し、お問い合わせ先の不動産会社にメールまたはFAXにて転送されるためアットホーム(株)にも保管されます。アットホーム(株)で保管された個人情報の取り扱いについては、【こちら】をご覧ください。
また、本画面でご記入いただいた個人情報は、お問い合わせ先の不動産会社でも保管します。 お問い合わせ先の不動産会社が保管する個人情報の取り扱いについては、不動産会社に直接お問い合わせください。
国土交通大臣免許(7)第5206号 |
|---|
- 交通:
- JR東海道本線/茨木駅 徒歩1分
- 大阪府茨木市西駅前町2番8号
- TEL:
- 0120-958-133
- FAX:
- 072-631-3956
- 所属団体:
- (一社)大阪府宅地建物取引業協会会員(公社)近畿地区不動産公正取引協議会加盟
取引態様:仲介  - 50102800
|
- スマートフォンで
この不動産会社を見る

|
- 提携サイト等より掲載されている物件情報につきましては、不動産会社詳細情報にリンクされていないものがあります。
- 物件に関するお問合せは、物件詳細ページの「情報提供会社」に表示されている不動産会社へ直接お願いいたします。
- 間取図は、現況を優先させていただきます。
- 映像は物件の一部を撮影したものです。物件の契約にあたっての最終判断はご自身の判断に基づいて行ってください。
- 仲介手数料について

アットホームは物件情報の適正化に努めております。
内容に誤りがある場合にはこちらへご連絡ください。