東京都墨田区東向島6丁目(八広駅)の賃貸:物件詳細
交通 所在地 |
駅徒歩 |
賃料 管理費等 |
敷金/保証金 礼金 |
間取り 面積 |
物件種目 築年月 |
|
京成押上線/八広
東京都墨田区東向島6丁目
|
5分
|
10.3万円
15,000円
|
なし / なし
1ヶ月
|
1K
27.59m²
|
賃貸マンション
2024年2月(築1年9ヶ月)
|
ペット相談、分譲タイプ、常時ゴミ出し可能、二人入居可、24時間換気システム、閑静な住宅街、外観タイル張り、IT重説対応物件、保証人不要
|
|
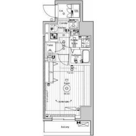
間取図
|
外観
|
その他の画像
|
| 交通 | 京成押上線 八広駅 徒歩5分 |
|---|
| その他の交通 | 東武伊勢崎線 東向島駅 徒歩8分 東武伊勢崎線 鐘ヶ淵駅 徒歩10分 |
| 所在地 |
東京都墨田区東向島6丁目
|
| 物件種目 |
賃貸マンション |
| 賃料 |
10.3万円 |
管理費等 |
15,000円 |
| 敷金 / 保証金 |
なし / なし |
礼金 |
1ヶ月 |
| 敷引 |
- |
保証金償却 |
- |
| その他一時金 |
24時間サポート:13,200円、鍵交換代等:28,600円~ |
保険等 |
要 2年 24,000円 |
| 維持費等 |
- |
クレジットカード決済 |
初期費用可 |
| 間取り |
1K(洋室8.5帖) |
専有面積 |
27.59m² |
| 築年月 |
2024年2月(築1年9ヶ月)
|
階建 / 階 |
12階建 / 10階 |
| 建物構造 |
RC |
総戸数 |
- |
| 主要採光面 |
西 |
駐車場 |
無 |
| バイク置き場 |
- |
駐輪場 |
- |
| 建物名・部屋番号 |
ユリカロゼ東向島 |
ペット |
小型犬可・ 猫可 |
| リフォーム履歴 |
- |
| リノベーション履歴 |
- |
| 備考 |
賃貸保証等:加入要(賃貸保証料:0.60ヶ月 初回保証料:総賃料60%)
管理形態/管理員の勤務形態:-/-
IT重説対応物件
【初期費用一部クレジット決済相談可】お部屋探しはタウンハウジング錦糸町店にお任せ!
|
| エネルギー消費性能 |
- |
| 断熱性能 |
- |
| 目安光熱費 |
- |
| バス・トイレ |
バス・トイレ別、浴室暖房、浴室乾燥機、オートバス、洗面所独立、洗面所、洗面台、シャワー、温水洗浄便座、トイレ |
| キッチン |
システムキッチン、独立型キッチン、2口コンロ、ガスコンロ付 |
| セキュリティー |
オートロック、モニター付インターホン、ディンプルキー、ダブルロックドア、防犯カメラ、火災警報器(報知機) |
| 収納 |
全居室収納、クローゼット、シューズボックス |
| 設備・サービス |
全居室エアコン、室内洗濯機置場、都市ガス給湯、給湯、全居室フローリング、フローリング、都市ガス、エアコン、暖房、冷房、照明器具 |
| TV・通信 |
インターネット対応、インターネット使用料無料、マルチメディアコンセント |
| その他 |
宅配BOX、バルコニー、エレベーター |
| 契約期間 |
2年 |
現況 |
居住中 |
| 条件等 |
- |
入居可能時期 |
相談 |
| 更新料 |
新賃料 1ヶ月 |
物件番号 |
1156879115 |
| 情報公開日 |
2025年10月25日 |
次回更新予定日 |
2025年11月9日 |
| ケータイ用バーコード |
- スマートフォンでこの物件を見る
- スマートフォンからもこの物件をご覧になれます。
|
※「-」と表示されている項目については、情報提供会社にご確認ください。
| 周辺施設 |
まいばすけっと東向島駅北店 |
| 距離 |
530m |
写真を見る |
| 周辺施設 |
アコレ東向島店 |
| 距離 |
630m |
写真を見る |
| 周辺施設 |
ビッグエー墨田八広 |
| 距離 |
680m |
写真を見る |
| 周辺施設 |
アコレ八広5丁目店 |
| 距離 |
360m |
写真を見る |
| 周辺施設 |
セブンイレブン |
| 距離 |
680m |
写真を見る |
| 周辺施設 |
くすりの福太郎八広駅前店 |
| 距離 |
370m |
写真を見る |
ここから簡単にお問い合わせをすることができます。
(SSLでの暗号化での送信を希望されるお客さまは
こちら
よりお問い合わせください)
お問い合わせを行う前に
「個人情報の取り扱いについて」を必ずお読みください。
「個人情報の取り扱いについて」に同意いただいた場合は「上記にご同意の上 確認画面へ進む」のボタンをクリックしてください。
個人情報の取り扱いについて
皆さまが送付された個人情報はアットホーム(株)のサーバを経由し、お問い合わせ先の不動産会社にメールまたはFAXにて転送されるためアットホーム(株)にも保管されます。アットホーム(株)で保管された個人情報の取り扱いについては、【こちら】をご覧ください。
また、本画面でご記入いただいた個人情報は、お問い合わせ先の不動産会社でも保管します。 お問い合わせ先の不動産会社が保管する個人情報の取り扱いについては、不動産会社に直接お問い合わせください。
国土交通大臣免許(1)第9926号 |
|---|
- 交通:
- JR総武本線/錦糸町駅 徒歩3分
- 東京都墨田区江東橋2丁目14-6 JU錦糸町駅前ビル1階
- TEL:
- 03-3634-6055
- FAX:
- 03-3634-6056
- 所属団体:
- 所属団体未加入会員
取引態様:仲介  - 00270804
|
- スマートフォンで
この不動産会社を見る

|
- 提携サイト等より掲載されている物件情報につきましては、不動産会社詳細情報にリンクされていないものがあります。
- 物件に関するお問合せは、物件詳細ページの「情報提供会社」に表示されている不動産会社へ直接お願いいたします。
- 間取図は、現況を優先させていただきます。
- 映像は物件の一部を撮影したものです。物件の契約にあたっての最終判断はご自身の判断に基づいて行ってください。
- 仲介手数料について

アットホームは物件情報の適正化に努めております。
内容に誤りがある場合にはこちらへご連絡ください。