東京都台東区元浅草3丁目(田原町駅)の賃貸:物件詳細
交通 所在地 |
駅徒歩 |
賃料 管理費等 |
敷金/保証金 礼金 |
間取り 面積 |
物件種目 築年月 |
|
東京メトロ銀座線/田原町
東京都台東区元浅草3丁目
|
6分
|
14.4万円
15,000円
|
1ヶ月 / なし
なし
|
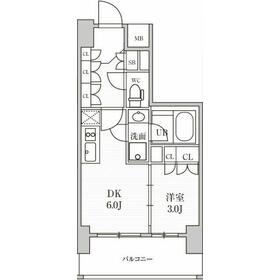
1DK
27.03m²
|
賃貸マンション
2025年1月(築1年)
|
フリーレント、常時ゴミ出し可能、二人入居可、24時間換気システム、外観タイル張り、保証人不要
|
|
間取図
インターネット無料、エアコン2台付、室内廊下一面に収納付きです
|
外観
|
<
その他の画像
>
|
| 交通 | 東京メトロ銀座線 田原町駅 徒歩6分 |
|---|
| その他の交通 | 都営大江戸線 新御徒町駅 徒歩7分 JR山手線 上野駅 徒歩15分 |
| 所在地 |
東京都台東区元浅草3丁目
|
| 物件種目 |
賃貸マンション |
| 賃料 |
14.4万円 |
管理費等 |
15,000円 |
| 敷金 / 保証金 |
1ヶ月 / なし |
礼金 |
なし |
| 敷引 |
- |
保証金償却 |
- |
| その他一時金 |
なし、鍵交換代等:33,000円~ |
保険等 |
要 |
| 維持費等 |
- |
| 間取り |
1DK(DK6、洋3) |
専有面積 |
27.03m² |
| 築年月 |
2025年1月(築1年)
|
階建 / 階 |
13階建 / 5階 |
| 建物構造 |
RC |
総戸数 |
- |
| 主要採光面 |
北 |
駐車場 |
無 |
| バイク置き場 |
空無 |
駐輪場 |
有 550円/月 |
| 建物名・部屋番号 |
SEASON FLATS上野稲荷町 502 |
ペット |
-
|
| アピールポイント |
2人入居可
上野の不動産会社邦興商事なら仲介手数料無料のお部屋です
シーズンフラッツ上野稲荷町
東京都台東区元浅草3-19-11
礼金0
賃料1ヶ月分フリーレント、1年未満解約時賃料1ヶ月分の違約金有
インターネット無料
初回保証料25%
エアコン2台付
室内廊下一面に収納付です
キッチンに料理がしやすくシンクカバー付です
洗面台下にヘルスメーターストックスペースあります
トイレのペーパーホルダーにスマホストレージ付です
内装奇数階ブラウン基調、偶数階ナチュラル基調
退去時にルームクリーニング代38,500円、エアコン清掃代11,000円/1台 |
| リフォーム履歴 |
- |
| リノベーション履歴 |
- |
| 備考 |
賃貸保証等:加入要(クレディセゾン 25%,2年目以降(個人)1万円,(法人)3万円/1年)
管理形態/管理員の勤務形態:-/-
フリーレント:1ヶ月
2人入居可
シーズンフラッツ上野稲荷町
東京都台東区元浅草3-19-11
礼金0
賃料1ヶ月分フリーレント、1年未満解約時賃料1ヶ月分の違約金有
インターネット無料
初回保証料25%
エアコン2台付
室内廊下一面に収納付です
キッチンに料理がしやすくシンクカバー付です
洗面台下にヘルスメーターストックスペースあります
トイレのペーパーホルダーにスマホストレージ付です
内装奇数階ブラウン基調、偶数階ナチュラル基調
退去時にルームクリーニング代38,500円、エアコン清掃代11,000円/1台
室内設備は浴室乾燥機・洗面所独立など豊富に揃っており、過ごしやすいお部屋になっております。セキュリティ面は、TVインターホン・オートロックなど充実しているので、防犯対策もばっちりです。収納はシューズボックス・クロゼットなど豊富なので、広々と空間を利用することも可能です。共用部には宅配ボックス・ゴミ出し24時間OKなどが備わっておりとても充実しています。毎日テレビ鑑賞を楽しみたい方はこちらのBS/CS対応の物件はいかがでしょうか。犯罪を抑制する効果がある防犯カメラ付きのマン
|
| エネルギー消費性能 |
- |
| 断熱性能 |
- |
| 目安光熱費 |
- |
| バス・トイレ |
バス・トイレ別、浴室乾燥機、オートバス、追焚機能、シャワー付洗面化粧台、洗面所独立、洗面所、洗面台、シャワー、温水洗浄便座、トイレ |
| キッチン |
システムキッチン、2口コンロ、ガスコンロ可 |
| セキュリティー |
モニター付オートロック、オートロック、モニター付インターホン、非接触型ICカードキー、ディンプルキー、ダブルロックドア、防犯カメラ |
| 収納 |
収納スペース、クローゼット、シューズボックス |
| 設備・サービス |
全居室エアコン、エアコン2台以上、室内洗濯機置場、洗濯機置場、都市ガス給湯、給湯、フローリング、都市ガス、エアコン、人感センサー付照明、複層ガラス |
| TV・通信 |
インターネット対応、インターネット使用料無料、光ファイバー、CS、BS端子 |
| その他 |
宅配BOX、バイク置き場、バルコニー、駐輪場、エレベーター |
| 契約期間 |
2年 |
現況 |
空家 |
| 条件等 |
- |
入居可能時期 |
即時 |
| 仲介手数料 |
不要 |
|
|
| 更新料 |
新賃料 1ヶ月 |
物件番号 |
1156898006 |
| 情報公開日 |
2025年12月13日 |
次回更新予定日 |
2025年12月27日 |
| ケータイ用バーコード |
- スマートフォンでこの物件を見る
- スマートフォンからもこの物件をご覧になれます。
|
※「-」と表示されている項目については、情報提供会社にご確認ください。
| 周辺施設 |
セブンイレブン台東元浅草店 |
| 距離 |
240m |
写真を見る |
| 周辺施設 |
薬マツモトキヨシ新御徒町店 |
| 距離 |
437m |
写真を見る |
| 周辺施設 |
マルイ上野 |
| 距離 |
1285m |
写真を見る |
| 周辺施設 |
上野の森美術館 |
| 距離 |
1467m |
写真を見る |
| 周辺施設 |
アメヤ横丁 |
| 距離 |
1413m |
写真を見る |
| 周辺施設 |
松坂屋上野店 |
| 距離 |
1564m |
写真を見る |
ここから簡単にお問い合わせをすることができます。
(SSLでの暗号化での送信を希望されるお客さまは
こちら
よりお問い合わせください)
お問い合わせを行う前に
「個人情報の取り扱いについて」を必ずお読みください。
「個人情報の取り扱いについて」に同意いただいた場合は「上記にご同意の上 確認画面へ進む」のボタンをクリックしてください。
個人情報の取り扱いについて
皆さまが送付された個人情報はアットホーム(株)のサーバを経由し、お問い合わせ先の不動産会社にメールまたはFAXにて転送されるためアットホーム(株)にも保管されます。アットホーム(株)で保管された個人情報の取り扱いについては、【こちら】をご覧ください。
また、本画面でご記入いただいた個人情報は、お問い合わせ先の不動産会社でも保管します。 お問い合わせ先の不動産会社が保管する個人情報の取り扱いについては、不動産会社に直接お問い合わせください。
東京都知事免許(8)第61038号 |
|---|
- 交通:
- JR山手線/上野駅 徒歩1分
- 東京都台東区上野7丁目4-9 細田ビル1階
- TEL:
- 03-5828-0081
- FAX:
- 03-5828-0048
- 所属団体:
- (公社)東京都宅地建物取引業協会会員(公社)首都圏不動産公正取引協議会加盟
取引態様:仲介  - 00550557
|
- スマートフォンで
この不動産会社を見る

|
- 提携サイト等より掲載されている物件情報につきましては、不動産会社詳細情報にリンクされていないものがあります。
- 物件に関するお問合せは、物件詳細ページの「情報提供会社」に表示されている不動産会社へ直接お願いいたします。
- 間取図は、現況を優先させていただきます。
- 映像は物件の一部を撮影したものです。物件の契約にあたっての最終判断はご自身の判断に基づいて行ってください。
- 仲介手数料について

アットホームは物件情報の適正化に努めております。
内容に誤りがある場合にはこちらへご連絡ください。