福岡県福岡市東区箱崎1丁目(箱崎駅)の賃貸:物件詳細
交通 所在地 |
駅徒歩 |
賃料 管理費等 |
敷金/保証金 礼金 |
間取り 面積 |
物件種目 築年月 |
|
JR鹿児島本線/箱崎
福岡県福岡市東区箱崎1丁目
|
6分
|
6.7万円
3,000円
|
1ヶ月 / なし
2ヶ月
|
1LDK
29.62m²
|
賃貸マンション
2017年2月(築8年10ヶ月)
|
ペット相談、分譲タイプ、角部屋、高齢者相談、二人入居可、2面採光、24時間換気システム、IT重説対応物件
|
|
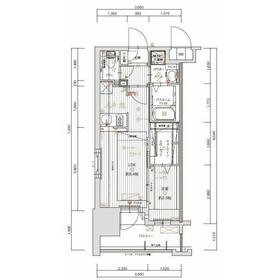
間取図
|
外観
|
その他の画像
|
| 交通 | JR鹿児島本線 箱崎駅 徒歩6分 |
|---|
| その他の交通 | 地下鉄箱崎線 箱崎宮前駅 徒歩7分 地下鉄箱崎線 箱崎九大前駅 徒歩11分 |
| 所在地 |
福岡県福岡市東区箱崎1丁目
|
| 物件種目 |
賃貸マンション |
| 賃料 |
6.7万円 |
管理費等 |
3,000円 |
| 敷金 / 保証金 |
1ヶ月 / なし |
礼金 |
2ヶ月 |
| 敷引 |
- |
保証金償却 |
- |
| その他一時金 |
鍵交換代:27,500円、消毒代:11,000円 |
保険等 |
要 |
| 維持費等 |
町費:300円/月、24時間サポート代:990円/月 |
クレジットカード決済 |
初期費用可 |
| 間取り |
1LDK(LDK8.3、洋2.5) |
専有面積 |
29.62m² |
| 築年月 |
2017年2月(築8年10ヶ月)
|
階建 / 階 |
14階建 / 4階 |
| 建物構造 |
RC |
総戸数 |
- |
| 主要採光面 |
東 |
駐車場 |
近有 18,000円/月 |
| バイク置き場 |
- |
駐輪場 |
有 |
| 建物名・部屋番号 |
グランフォーレ箱崎プレミア |
ペット |
相談 |
| アピールポイント |
「グランフォーレ箱崎プレミア」のここがイチオシ。歩いて徒歩6分の場所にタカラ薬局箱崎もあります。室内設備は洗面所独立・浴室乾燥機などが揃っているので、快適に過ごしやすいお部屋になります。収納はウォークインクロゼット・シューズボックスなど豊富なので、広々と空間を利用することも可能です。宅配ボックスがあるので再配達依頼をする手間が省けます。セキュリティ面は、TVインターホン・オートロックなどを設置しているので安全面でも優れております。ニーズの高い、平成29年築の物件で、オシャレな室内が魅力的。近くにパーキングがあるので長い距離を歩く心配がないのが魅力です。ペットに対する愛情が感じられるペット飼育可能物件です。こだわりの条件として多い、駅徒歩6分の物件です。角部屋は他の住戸との接地面が少ないため、自身の生活音によって隣人トラブルのリスクも減ります。 |
| リフォーム履歴 |
- |
| リノベーション履歴 |
- |
| 備考 |
賃貸保証等:加入要(月額合計の70% 更新料 13,000/年 口座振替手数料500円+税)
管理形態/管理員の勤務形態:-/-
IT重説対応物件、外壁コンクリート
物件のお問い合わせはSumoSumoまで♪♪
共用部には宅配ボックスが備え付けられているため、日々忙しくて家にいる時間が少なくても荷物を受け取れます。室内設備は浴室乾燥機・洗面化粧台などが揃っており、とても充実しています。収納はシューズボックス・ウォークインクロゼットなどが備え付けられているので、衣類や日用品の収納に重宝します。セキュリティ面は、TVインターホン・オートロックなどを備え付けているので安心して暮らせます。2口コンロが付いているので、料理を複数作りたい時でも同時に進めることができて時短になります。駐輪場付きのマンションです。築8年のマンション。お掃除も楽々な、フローリングが嬉しいマンションとなっています。転居先に住み心地も良いこちらの賃貸物件。充実した新生活を過ごしましょう。外装もおしゃれで快適な生活をおくることができるマンションです。BS、CSはチャンネルが多いので飽きないのが魅力です。
|
| エネルギー消費性能 |
- |
| 断熱性能 |
- |
| 目安光熱費 |
- |
| バス・トイレ |
バス・トイレ別、浴室乾燥機、シャワー付洗面化粧台、洗面所独立、洗面所、洗面台、シャワー、温水洗浄便座、トイレ |
| キッチン |
カウンターキッチン、システムキッチン、2口コンロ、ガスコンロ可 |
| セキュリティー |
モニター付オートロック、オートロック、モニター付インターホン、防犯カメラ |
| 収納 |
ウォークインクローゼット、収納スペース、クローゼット、シューズボックス |
| 設備・サービス |
室内洗濯機置場、洗濯機置場、プロパンガス給湯、給湯、フローリング、プロパンガス、エアコン、冷房 |
| TV・通信 |
インターネット対応、インターネット使用料無料、光ファイバー、CATVインターネット、ケーブルTV、CS、BS端子 |
| その他 |
宅配BOX、バルコニー、駐輪場、エレベーター |
| 契約期間 |
1年 |
現況 |
居住中 |
| 条件等 |
- |
入居可能時期 |
相談 |
| 更新料 |
- |
物件番号 |
1157018216 |
| 情報公開日 |
2025年10月28日 |
次回更新予定日 |
2025年11月11日 |
| ケータイ用バーコード |
- スマートフォンでこの物件を見る
- スマートフォンからもこの物件をご覧になれます。
|
※「-」と表示されている項目については、情報提供会社にご確認ください。
| 周辺施設 |
セブンイレブン 福岡箱崎1丁目店 |
| 距離 |
150m |
写真を見る |
| 周辺施設 |
ローソン 箱崎宮前店 |
| 距離 |
254m |
写真を見る |
| 周辺施設 |
タカラ薬局箱崎 |
| 距離 |
417m |
写真を見る |
| 周辺施設 |
福岡筥松郵便局 |
| 距離 |
412m |
写真を見る |
| 周辺施設 |
にしてつストア レガネット筥松店 |
| 距離 |
536m |
写真を見る |
ここから簡単にお問い合わせをすることができます。
(SSLでの暗号化での送信を希望されるお客さまは
こちら
よりお問い合わせください)
お問い合わせを行う前に
「個人情報の取り扱いについて」を必ずお読みください。
「個人情報の取り扱いについて」に同意いただいた場合は「上記にご同意の上 確認画面へ進む」のボタンをクリックしてください。
個人情報の取り扱いについて
皆さまが送付された個人情報はアットホーム(株)のサーバを経由し、お問い合わせ先の不動産会社にメールまたはFAXにて転送されるためアットホーム(株)にも保管されます。アットホーム(株)で保管された個人情報の取り扱いについては、【こちら】をご覧ください。
また、本画面でご記入いただいた個人情報は、お問い合わせ先の不動産会社でも保管します。 お問い合わせ先の不動産会社が保管する個人情報の取り扱いについては、不動産会社に直接お問い合わせください。
国土交通大臣免許(2)第9550号 |
|---|
- 交通:
- JR鹿児島本線/博多駅 徒歩5分
- 福岡県福岡市博多区博多駅前2丁目13-13 シャンソンビル博多4F
- TEL:
- 092-600-0801
- 所属団体:
- (公社)全日本不動産協会会員(公社)近畿地区不動産公正取引協議会加盟
取引態様:仲介  - 80507507
|
- スマートフォンで
この不動産会社を見る

|
- 提携サイト等より掲載されている物件情報につきましては、不動産会社詳細情報にリンクされていないものがあります。
- 物件に関するお問合せは、物件詳細ページの「情報提供会社」に表示されている不動産会社へ直接お願いいたします。
- 間取図は、現況を優先させていただきます。
- 映像は物件の一部を撮影したものです。物件の契約にあたっての最終判断はご自身の判断に基づいて行ってください。
- 仲介手数料について

アットホームは物件情報の適正化に努めております。
内容に誤りがある場合にはこちらへご連絡ください。