大阪府大阪市西淀川区大和田4丁目(千船駅)の賃貸:物件詳細
交通 所在地 |
駅徒歩 |
賃料 管理費等 |
敷金/保証金 礼金 |
間取り 面積 |
物件種目 築年月 |
|
阪神本線/千船
大阪府大阪市西淀川区大和田4丁目
|
5分
|
5.8万円
7,490円
|
なし / なし
5.8万円
|
1K
21.60m²
|
賃貸マンション
2022年3月(築4年1ヶ月)
|
ペット相談、デザイナーズ、高齢者相談、二人入居可、24時間換気システム、IT重説対応物件
|
|
間取図
|
外観
|
<
その他の画像
>
|
| 交通 | 阪神本線 千船駅 徒歩5分 |
|---|
| その他の交通 | 阪神なんば線 出来島駅 徒歩14分 JR東西線 御幣島駅 徒歩17分 |
| 所在地 |
大阪府大阪市西淀川区大和田4丁目
|
| 物件種目 |
賃貸マンション |
| 賃料 |
5.8万円 |
管理費等 |
7,490円 |
| 敷金 / 保証金 |
なし / なし |
礼金 |
5.8万円 |
| 敷引 |
- |
保証金償却 |
- |
| その他一時金 |
【安心クラブ】 入会金:5,500円、鍵交換代等:33,000円~ |
保険等 |
要 2年 20,000円 |
| 維持費等 |
【安心クラブ】:990円/月 |
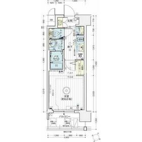
| 間取り |
1K(洋6) |
専有面積 |
21.60m² |
| 築年月 |
2022年3月(築4年1ヶ月)
|
階建 / 階 |
9階建 / 3階 |
| 建物構造 |
RC |
総戸数 |
- |
| 主要採光面 |
西 |
駐車場 |
近有 16,000円/月 |
| バイク置き場 |
- |
駐輪場 |
有 |
| 建物名・部屋番号 |
エステムコート大阪シティサイト |
ペット |
相談 |
| アピールポイント |
室内設備は洗面所独立・浴室乾燥機など豊富に揃っており、過ごしやすいお部屋になっております。共用部には宅配ボックスが付いているため、好きなタイミングで荷物を受け取ることができます。セキュリティ面は、オートロック・TVインターホンなど充実しているので安心して生活できます。収納はクロゼット・シューズボックスなどが備え付けられているので、衣類や日用品の収納に重宝します。犯罪抑止力を高める防犯カメラの付いたマンションです。駐輪場付きのマンションです。駅まで歩いてアクセスできる、徒歩5分の距離に立地する物件です。空気の入れ替えも簡単におこなえる通風良好のマンションです。調理を同時に進めることで忙しい朝でも短い時間で料理ができる2口コンロがあります。ワンルームとはちがった素敵なキッチンがあるお住まいです。敷地内には使いやすいごみ置き場もございます。 |
| リフォーム履歴 |
- |
| リノベーション履歴 |
- |
| 備考 |
賃貸保証等:加入要(エステム保証 初回 総賃料50% 月額 1.5%エステム保証 初回 総賃料50% 月額 1.5%)
管理形態/管理員の勤務形態:-/-
IT重説対応物件、外壁コンクリート
物件のお問い合わせはSumoSumoまで♪♪
収納はクロゼット・シューズボックスなど豊富なので、衣類や履き物の整理がしやすく便利です。共用部には宅配ボックスを設置しているため、家で何時間も待機する必要がありません。セキュリティ面は、TVインターホン・オートロックなどを備え付けているので安心して暮らせます。室内設備は洗面化粧台・浴室乾燥機など大変充実しております。駐輪場付きのマンションです。共用設備の充実している、楽しく生活できるマンションです。フローリングのみが良い方に嬉しい、こちらの物件で暮らしてみませんか。安全のために、防犯カメラが設置されているマンションです。雨が続いてジメジメしていてもエアコンが付いていれば快適に過ごせます。2口コンロが付いているので、料理を複数作りたい時でも同時に進めることができて時短になります。収納力と掃除のしやすさを同時に備えているシステムキッチンがあります。
|
| エネルギー消費性能 |
- |
| 断熱性能 |
- |
| 目安光熱費 |
- |
| バス・トイレ |
バス・トイレ別、浴室乾燥機、シャワー付洗面化粧台、洗面所独立、洗面所、洗面台、シャワー、温水洗浄便座、トイレ |
| キッチン |
システムキッチン、2口コンロ、ガスコンロ可 |
| セキュリティー |
モニター付オートロック、オートロック、モニター付インターホン、防犯カメラ |
| 収納 |
収納スペース、クローゼット、シューズボックス |
| 設備・サービス |
室内洗濯機置場、洗濯機置場、都市ガス給湯、給湯、フローリング、都市ガス、エアコン、冷房 |
| TV・通信 |
インターネット使用料無料、ケーブルTV、CS、BS端子 |
| その他 |
宅配BOX、バルコニー、駐輪場、エレベーター |
| 契約期間 |
1年 |
現況 |
居住中 |
| 条件等 |
- |
入居可能時期 |
相談 |
| 更新料 |
- |
物件番号 |
1157116122 |
| 情報公開日 |
2026年3月1日 |
次回更新予定日 |
2026年3月27日 |
| ケータイ用バーコード |
- スマートフォンでこの物件を見る
- スマートフォンからもこの物件をご覧になれます。
|
※「-」と表示されている項目については、情報提供会社にご確認ください。
| 周辺施設 |
ファミリーマート 大和田四丁目店 |
| 距離 |
356m |
写真を見る |
| 周辺施設 |
西淀川警察署大和田交番 |
| 距離 |
378m |
写真を見る |
| 周辺施設 |
関西スーパー 大和田店 |
| 距離 |
464m |
写真を見る |
| 周辺施設 |
ドラッグセガミ 大和田店 |
| 距離 |
504m |
写真を見る |
| 周辺施設 |
セブンイレブン 大阪大和田1丁目店 |
| 距離 |
409m |
写真を見る |
| 周辺施設 |
西淀川出来島郵便局 |
| 距離 |
1128m |
写真を見る |
ここから簡単にお問い合わせをすることができます。
(SSLでの暗号化での送信を希望されるお客さまは
こちら
よりお問い合わせください)
お問い合わせを行う前に
「個人情報の取り扱いについて」を必ずお読みください。
「個人情報の取り扱いについて」に同意いただいた場合は「上記にご同意の上 確認画面へ進む」のボタンをクリックしてください。
個人情報の取り扱いについて
皆さまが送付された個人情報はアットホーム(株)のサーバを経由し、お問い合わせ先の不動産会社にメールまたはFAXにて転送されるためアットホーム(株)にも保管されます。アットホーム(株)で保管された個人情報の取り扱いについては、【こちら】をご覧ください。
また、本画面でご記入いただいた個人情報は、お問い合わせ先の不動産会社でも保管します。 お問い合わせ先の不動産会社が保管する個人情報の取り扱いについては、不動産会社に直接お問い合わせください。
国土交通大臣免許(2)第9550号 |
|---|
- 交通:
- JR東海道本線/尼崎駅 徒歩3分
- 兵庫県尼崎市潮江1丁目7-1
- TEL:
- 06-4400-6315
- 所属団体:
- (公社)全日本不動産協会会員(公社)近畿地区不動産公正取引協議会加盟
取引態様:仲介  - 50102791
|
- スマートフォンで
この不動産会社を見る

|
- 提携サイト等より掲載されている物件情報につきましては、不動産会社詳細情報にリンクされていないものがあります。
- 物件に関するお問合せは、物件詳細ページの「情報提供会社」に表示されている不動産会社へ直接お願いいたします。
- 間取図は、現況を優先させていただきます。
- 映像は物件の一部を撮影したものです。物件の契約にあたっての最終判断はご自身の判断に基づいて行ってください。
- 仲介手数料について

アットホームは物件情報の適正化に努めております。
内容に誤りがある場合にはこちらへご連絡ください。