東京都足立区谷中3丁目(北綾瀬駅)の賃貸:物件詳細
交通 所在地 |
駅徒歩 |
賃料 管理費等 |
敷金/保証金 礼金 |
間取り 面積 |
物件種目 築年月 |
|
東京メトロ千代田線/北綾瀬
東京都足立区谷中3丁目
|
8分
|
11.5万円
20,000円
|
なし / なし
なし
|
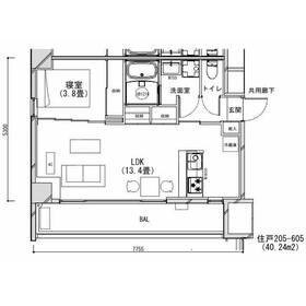
1LDK
40.18m²
|
賃貸マンション
2017年3月(築8年9ヶ月)
|
角部屋、二人入居可、外観タイル張り、IT重説対応物件、保証人不要
|
|
間取図
|
外観
|
<
その他の画像
>
|
| 交通 | 東京メトロ千代田線 北綾瀬駅 徒歩8分 |
|---|
| その他の交通 | つくばエクスプレス 六町駅 徒歩20分 つくばエクスプレス 青井駅 徒歩26分 |
| 所在地 |
東京都足立区谷中3丁目
|
| 物件種目 |
賃貸マンション |
| 賃料 |
11.5万円 |
管理費等 |
20,000円 |
| 敷金 / 保証金 |
なし / なし |
礼金 |
なし |
| 敷引 |
- |
保証金償却 |
- |
| その他一時金 |
なし |
保険等 |
要 |
| 維持費等 |
- |
クレジットカード決済 |
初期費用可 |
| 間取り |
1LDK(LDK13.4帖 洋室3.8帖) |
専有面積 |
40.18m² |
| 築年月 |
2017年3月(築8年9ヶ月)
|
階建 / 階 |
6階建 / 3階 |
| 建物構造 |
RC |
総戸数 |
28戸 |
| 主要採光面 |
北 |
駐車場 |
無 |
| バイク置き場 |
無 |
駐輪場 |
有 |
| 建物名・部屋番号 |
Grande Maison Kita-Ayase 305 |
ペット |
-
|
| アピールポイント |
この度は物件詳細をご覧いただきまして誠にありがとうございます。ハウスパートナー亀有店では、葛飾区・足立区を中心に、江戸川区・荒川区・墨田区・台東区の物件を幅広くご紹介しております。また、積水ハウスのシャーメゾン、旭化成のシャーメゾン、大和ハウスのD-room、そして・大東建託・セキスイハイム等のハウスメーカーの代理店でもありますので、数多くのお部屋をご紹介できます。賃料交渉や初期費用の相談などもお気軽にご相談下さいませ。 |
| リフォーム履歴 |
- |
| リノベーション履歴 |
- |
| 備考 |
賃貸保証等:加入要(初回総賃料の50% 更新時1万円/年or800円/月 口座振替手数料550円/月)
管理形態/管理員の勤務形態:-/-
IT重説対応物件
パートナーサポート1650円/月。クリーニング代77000円、エアコンクリーニング代16500円。解約予告2ヶ月前。更新事務手数料:新賃料の0.5ヶ月。1年未満の解約は違約金として総賃料の2ヶ月、1年以上2年未満の解約は違約金として総賃料の1ヶ月。電力会社指定。
|
| エネルギー消費性能 |
- |
| 断熱性能 |
- |
| 目安光熱費 |
- |
| バス・トイレ |
バス・トイレ別、浴室乾燥機、オートバス、追焚機能、シャワー付洗面化粧台、洗面所独立、洗面台、シャワー、温水洗浄便座、トイレ |
| キッチン |
カウンターキッチン、システムキッチン、3口以上コンロ、ガスコンロ付 |
| セキュリティー |
モニター付オートロック、オートロック、モニター付インターホン、防犯カメラ |
| 収納 |
収納スペース、クローゼット、シューズボックス |
| 設備・サービス |
室内洗濯機置場、給湯、フローリング、都市ガス、エアコン |
| TV・通信 |
インターネット使用料無料、BS端子 |
| その他 |
宅配BOX、バルコニー、駐輪場、エレベーター |
| 契約期間 |
2年 |
現況 |
居住中 |
| 条件等 |
- |
入居可能時期 |
2025年11月下旬予定 |
| 更新料 |
なし |
物件番号 |
1157163315 |
| 情報公開日 |
2025年10月26日 |
次回更新予定日 |
2025年11月9日 |
| ケータイ用バーコード |
- スマートフォンでこの物件を見る
- スマートフォンからもこの物件をご覧になれます。
|
※「-」と表示されている項目については、情報提供会社にご確認ください。
| 周辺施設 |
ビッグ・エー 足立谷中店 |
| 距離 |
340m |
写真を見る |
| 周辺施設 |
ローソン足立谷中五丁目店 |
| 距離 |
100m |
写真を見る |
| 周辺施設 |
足立区立辰沼小学校 |
| 距離 |
510m |
写真を見る |
| 周辺施設 |
医療法人社団大坪会東和病院 |
| 距離 |
1720m |
写真を見る |
| 周辺施設 |
黒川幼稚園 |
| 距離 |
1000m |
写真を見る |
| 周辺施設 |
三井ショッピングパーク ららテラス北綾瀬 |
| 距離 |
700m |
写真を見る |
| 周辺施設 |
加平第二公園 |
| 距離 |
1120m |
写真を見る |
ここから簡単にお問い合わせをすることができます。
(SSLでの暗号化での送信を希望されるお客さまは
こちら
よりお問い合わせください)
お問い合わせを行う前に
「個人情報の取り扱いについて」を必ずお読みください。
「個人情報の取り扱いについて」に同意いただいた場合は「上記にご同意の上 確認画面へ進む」のボタンをクリックしてください。
個人情報の取り扱いについて
皆さまが送付された個人情報はアットホーム(株)のサーバを経由し、お問い合わせ先の不動産会社にメールまたはFAXにて転送されるためアットホーム(株)にも保管されます。アットホーム(株)で保管された個人情報の取り扱いについては、【こちら】をご覧ください。
また、本画面でご記入いただいた個人情報は、お問い合わせ先の不動産会社でも保管します。 お問い合わせ先の不動産会社が保管する個人情報の取り扱いについては、不動産会社に直接お問い合わせください。
国土交通大臣免許(2)第9556号 |
|---|
- 交通:
- JR千代田・常磐緩行線/亀有駅 徒歩1分
- 東京都葛飾区亀有5丁目33-7 平田屋駅前ビル
- TEL:
- 03-5849-7800
- FAX:
- 03-5849-7801
- 所属団体:
- (公社)全日本不動産協会会員(公社)首都圏不動産公正取引協議会加盟
取引態様:仲介  - 00275925
|
- スマートフォンで
この不動産会社を見る

|
- 提携サイト等より掲載されている物件情報につきましては、不動産会社詳細情報にリンクされていないものがあります。
- 物件に関するお問合せは、物件詳細ページの「情報提供会社」に表示されている不動産会社へ直接お願いいたします。
- 間取図は、現況を優先させていただきます。
- 映像は物件の一部を撮影したものです。物件の契約にあたっての最終判断はご自身の判断に基づいて行ってください。
- 仲介手数料について

アットホームは物件情報の適正化に努めております。
内容に誤りがある場合にはこちらへご連絡ください。